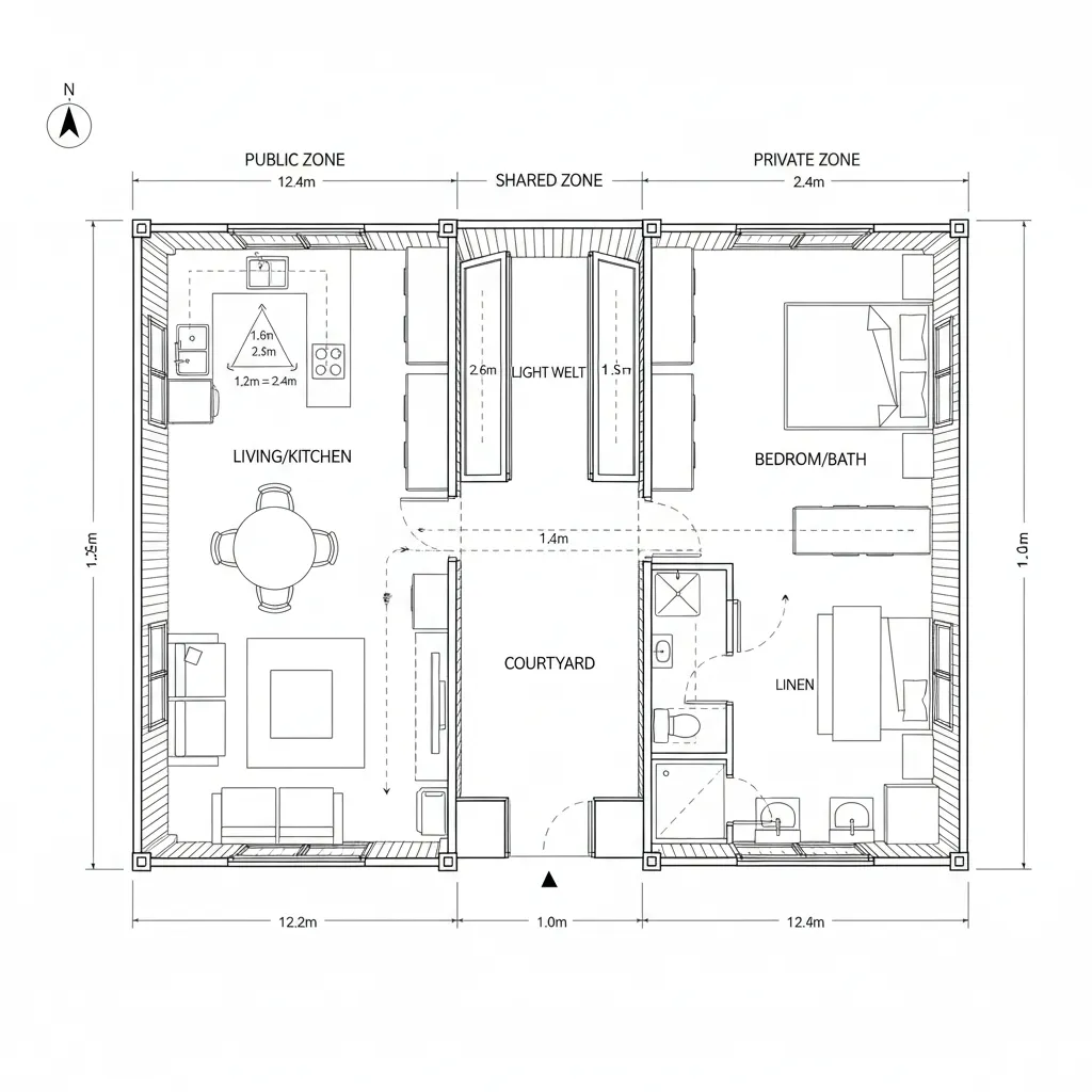
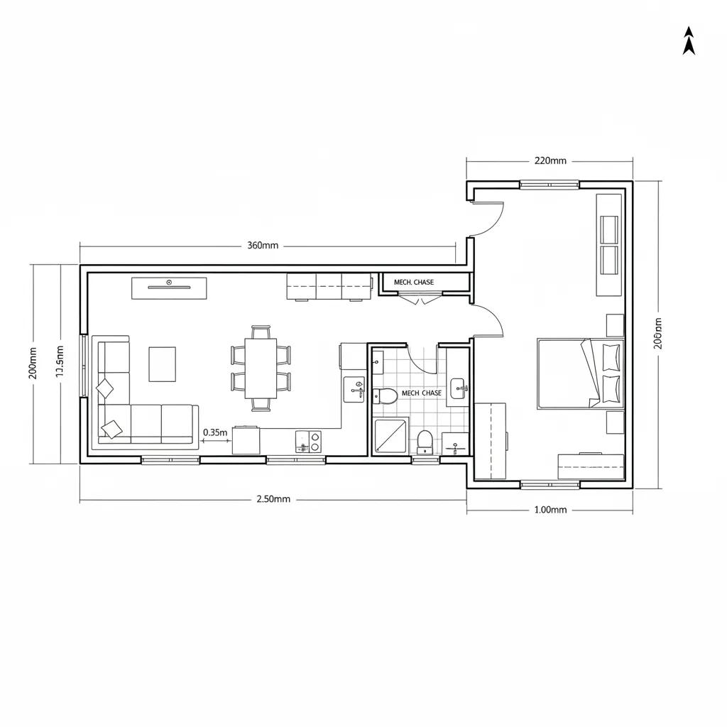
1-Bedroom Container Home as Future Interface: Floor plans that treat space like a living operating systemEvan North—Residential FuturistDec 13, 2025Table of ContentsLinear Rail: Single-Container SpineOffset L: Two-Module with Quiet WingCourtyard Stitch: Split Modules with Light WellFinal TakeawayTable of ContentsLinear Rail Single-Container SpineOffset L Two-Module with Quiet WingCourtyard Stitch Split Modules with Light WellFinal TakeawayFree floor plannerEasily turn your PDF floor plans into 3D with AI-generated home layouts.Convert Now – Free & InstantThe future presses in through tight footprints and high-cost land, while today’s residents wrestle with noise, clutter, and rigid layouts. According to NAHB, smaller new homes have grown in share since 2018 as buyers trade square footage for performance. In that tension, 1 bedroom shipping container home floor plans become a discreet operating system for tomorrow’s routines—an early codebase I can already read. spatial reasoning toolkit feels essential when a single module must host a full life without lag.Linear Rail: Single-Container SpineDesign Logic: A 40’x8’ module becomes a linear spine: entry, kitchen, living, bath, bedroom—sequential, like a compiled script for daily rituals.Flow: Entry at one short end, then a galley kitchen pulls you forward; living sits midstream, bath as a buffered node, bedroom at the quiet terminus.Sightlines: Long axial view from door to window sets a clean UI; glazed pocket near living offers status feedback—light equals readiness.Storage: Tall pantry, toe-kick drawers, bed platform cache; overheads act as fast-access memory, wall niches as deep archive.Furniture Fit: 72” sofa, 30” dining drop-leaf, queen bed with 24” egress lanes—API constraints respect container width.Verdict: Minimal, legible, future-proof; the spine accepts modular upgrades—solar, battery, greywater—without refactoring.save pinOffset L: Two-Module with Quiet WingDesign Logic: A primary container for public functions, a half-offset second for bedroom privacy—like a sandboxed process.Flow: Entry to living hub, pivot through a pocket door to the bedroom wing; bath sits at the junction as a secure gateway.Sightlines: Diagonal cut through living to the offset window creates layered UI—foreground task, background calm.Storage: Shared utility wall consolidates mechanicals; linen tower and wardrobe run parallel, minimizing seek time.Furniture Fit: 84” sectional anchors the hub; 36” console as command bar; bedroom supports a queen with integrated 18” night shelves.Verdict: The L’s geometry lowers cognitive load and noise bleed; it reads as a home with zones, not a box.save pinCourtyard Stitch: Split Modules with Light WellDesign Logic: Two containers flanking a micro-courtyard turn light and air into primary features—bandwidth upgraded at the core.Flow: Enter via the court, branch left to living/kitchen, right to bedroom/bath; circulation feels like parallel threads with a shared cache.Sightlines: Framed courtyard becomes the UI home screen; cross-views keep orientation stable and mood regulated.Storage: Exterior bench boxes, interior wall rails, and a bed headboard system provide tiered memory—hot, warm, cold.Furniture Fit: 30” deep kitchen run, 60” round table for flexible hosting, low-profile lounge pieces to protect sightlines.Verdict: A small, resilient campus; climate moments (shade, breeze, winter sun) become scheduled features of daily life.save pinFinal Takeaway1 bedroom shipping container home floor plans reward precision: every inch behaves like code that either compiles a calm day or throws errors. Their modular nature invites future add-ons—battery walls, water reuse, flexible partitions—without breaking the interface. In my experience, the smartest compact dwellings aren’t bigger; they’re clearer, and I keep designing them like living software with human-friendly defaults.Convert Now – Free & InstantPlease check with customer service before testing new feature.Free floor plannerEasily turn your PDF floor plans into 3D with AI-generated home layouts.Convert Now – Free & Instant