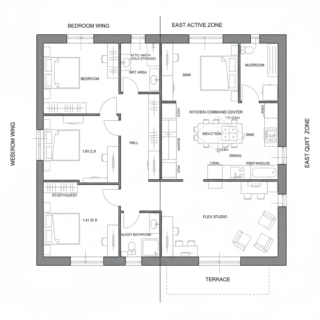
1-Floor Bungalow Plans, Composed Like a Calm Operating System: A single-level interface for future living, written in human-scale codeRae Mercer, Residential FuturistDec 10, 2025Table of ContentsCourtyard Spine BungalowSplit-Zone Quiet/Active PlanDiagonal Flow Bungalow## Final TakeawayTable of ContentsCourtyard Spine BungalowSplit-Zone Quiet/Active PlanDiagonal Flow Bungalow## Final TakeawayFree floor plannerEasily turn your PDF floor plans into 3D with AI-generated home layouts.Convert Now – Free & InstantFuture living keeps compressing complexity into quieter forms while current homes fight clutter, glare, and fragmented routines—this is where single-level logic becomes mercy. I keep returning to a spatial reasoning toolkit because the market data says the need is real: NAHB notes a steady preference for single-story homes among aging-in-place buyers, and my clients read 1 floor bungalow house plans like a clean UI.Courtyard Spine BungalowDesign Logic: A central outdoor void becomes the memory bus—light, air, and social signal route through it, stabilizing daily rhythm for multi-generational living.Flow: Entry → gallery hall → living/kitchen → courtyard → bedrooms; a looped path that reduces decision fatigue and supports accessible movement.Sightlines: Low sills and framed portals stack layers: front garden → hearth → green court, giving a calm hierarchy of cues.Storage: Perimeter built-ins act as cache; 24-inch deep runs at hall, concealed pantry, and bench niches keep bandwidth clear.Furniture Fit: Sofas at 84" align to window bays; a 36" deep dining table centers on the courtyard axis; beds float with 30" clearance minimum as API rules.Verdict: Five years out, this layout reads like resilient firmware—easy upgrades, seasonal toggles, and a social core that never lags.save pinSplit-Zone Quiet/Active PlanDesign Logic: Active programs stack east; quiet programs drift west—circadian routing turns the plan into a daily scheduler for hybrid work cycles.Flow: Mudroom → kitchen command → flex studio → terrace; parallel track to bedroom wing ensures noise doesn’t crash the system.Sightlines: Cross-views terminate on trees or art walls, not appliances; UI layers move foreground task to background calm.Storage: Tiered cache: 12" shallow task walls, 18" wardrobe banks, attic hatch for cold storage, keeping latency low in small footprints.Furniture Fit: 96" island with integrated 24" prep modules; modular desks at 60" fit niche; lounge chairs at 32" width avoid packet collisions.Verdict: This feels like a home that anticipates remote work’s persistence—quiet threads run uninterrupted while the active lane stays nimble.save pinDiagonal Flow BungalowDesign Logic: A gentle diagonal cuts the rectangle, prioritizing sight and breeze—design as adaptive routing for energy and attention.Flow: Corner entry → diagonal gallery → living hub → deck; bedrooms branch off like subroutines with predictable exits.Sightlines: Diagonal axis gives long, slow reveals; glazing aligns to trees, not streets, so information feels curated not noisy.Storage: Corner-pivot closets, under-bench cache, and a 30" deep utility wall; order persists because retrieval is single-gesture.Furniture Fit: Sectional at 108" anchors the diagonal; round table Ø48" resolves angular tension; platform beds at 80" ride the quiet edge.Verdict: The diagonal reads like future-proof syntax—less square, more intention—inviting micro-adaptations without rework.save pin## Final TakeawaySingle-level living isn’t nostalgia; it’s a streamlined interface, and 1 floor bungalow house plans are the human-scale compiler. From accessible flow to energy-smart sightlines, the smartest single-story homes use minimal bandwidth to deliver maximum daily clarity. In my experience, the future favors intentional, low-latency layouts that feel inevitable once lived.Convert Now – Free & InstantPlease check with customer service before testing new feature.Free floor plannerEasily turn your PDF floor plans into 3D with AI-generated home layouts.Convert Now – Free & Instant