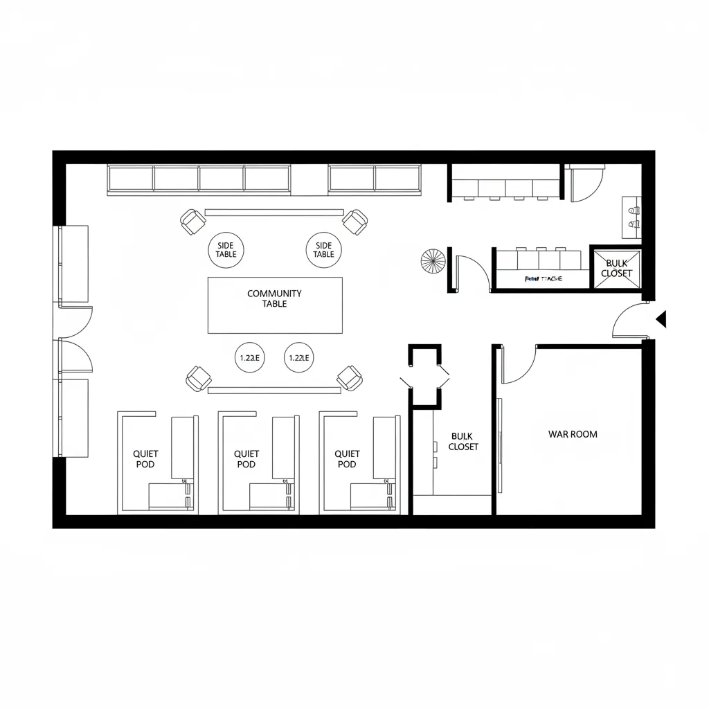
1200 sq ft Office Floor Plans: Designing a 1200-square-foot workspace as a future-ready interface for focused work, fluid collaboration, and human bandwidthMarin ValeDec 10, 2025Table of ContentsFocus Spine + Collaboration BaysPerimeter Light Loop + Central LabShared Commons with Quiet PodsFinal TakeawayTable of ContentsFocus Spine + Collaboration BaysPerimeter Light Loop + Central LabShared Commons with Quiet PodsFinal TakeawayFree floor plannerEasily turn your PDF floor plans into 3D with AI-generated home layouts.Convert Now – Free & InstantFuture lifestyles are compressing commute, collaboration, and focus into tighter, more intentional interfaces, while today’s offices struggle with distraction and inefficient zoning. As AIA tracking shows, firms report a sustained shift toward flexible programming in small commercial footprints—right where 1200 sq ft office floor plans live. The future is closing in, and I can already see the layout code forming inside this scale. spatial reasoning toolkitFocus Spine + Collaboration BaysDesign Logic: A central acoustic spine hosts private focus rooms, with open collaboration bays branching like modular nodes—built for hybrid rhythms and future autonomy.Flow: Entry → resource wall → focus spine → side bays → shared project table → back-of-house; a clear execution path minimizing context switching.Sightlines: Low partitions protect deep work, while diagonal views reveal the team table—status visible without noise.Storage: Wall-mounted lockers and a shared archive rack act as cache; fast-retrieval near bays, cold storage at the tail.Furniture Fit: 24–30 in worktops, 48–60 in table modules, task chairs with slim arms; precise API limits for movement and posture.Verdict: In five years, this spine-and-node structure scales to changing team sizes without rewriting the entire interface.save pinPerimeter Light Loop + Central LabDesign Logic: Perimeter desks harvest daylight; a central maker/strategy lab becomes the engine—future work demands variable fidelity from screen to prototype.Flow: Arrival bench → ring of desks → lab core → quick huddle alcove → materials pantry; a circular instruction set that shortens feedback loops.Sightlines: Peripheral sightlines stay calm; the lab’s glass creates a UI layer—signal exposure without glare.Storage: Under-desk drawers for hot data, vertical pegboard for tools, deep cabinet for seasonal kits—tiered cache for speed versus capacity.Furniture Fit: 30x60 in desks around the loop, 72x36 in lab benches, mobile stools; tight radii ensure circulation bandwidth stays open.Verdict: This loop keeps human energy synchronized; it’s a resilient topology for mixed digital-physical cycles.save pinShared Commons with Quiet PodsDesign Logic: One generous commons acts as the social OS; four quiet pods provide protected compute—balancing presence with privacy is the future baseline.Flow: Threshold → commons → pods → resource niche → war-room; a branching path that respects attention as finite currency.Sightlines: Layered views: soft edge to commons, opaque pod doors, transparent resource niche; UI hierarchy reduces cognitive drag.Storage: Commons credenza for fast cache, pod shelving for personal buffers, concealed closet for bulk inventory—order without friction.Furniture Fit: 96 in community table, 48 in round side tables, pod footprints at 5x7 ft; every dimension aligns to acoustics and meeting cadence.Verdict: Over time, this mix protects deep work while keeping culture visible—the office becomes a humane algorithm.save pinFinal TakeawayIn compact footprints like 1200 sq ft office floor plans, the future favors systems that choreograph attention, movement, and storage as code. Variants such as hybrid workspace layouts and open-plan with quiet pods show how a small envelope can carry large intent, including long-tail choices like acoustic focus rooms and mobile collaboration carts. The smartest workspaces won’t be bigger—only more intentional; in my experience, precise spatial APIs quietly upgrade how teams think and build.Convert Now – Free & InstantPlease check with customer service before testing new feature.Free floor plannerEasily turn your PDF floor plans into 3D with AI-generated home layouts.Convert Now – Free & Instant