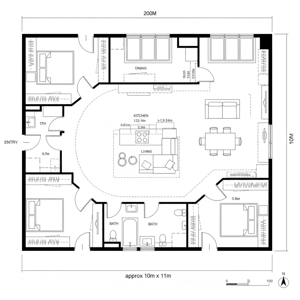
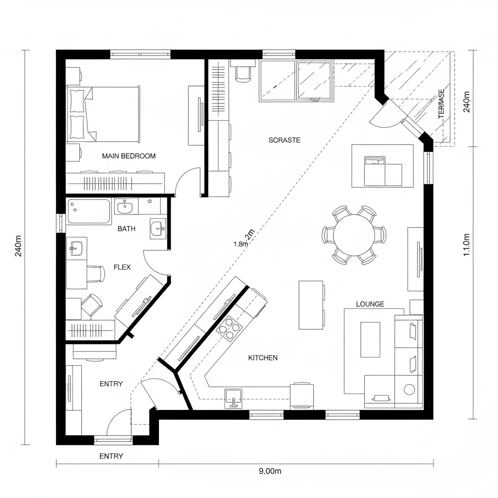
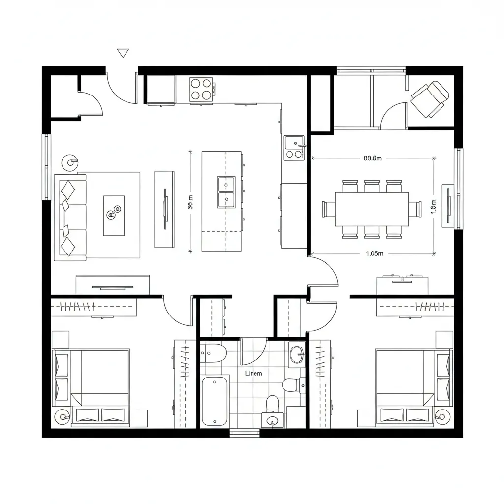
2-Bed, 1-Bath Open Concept as a Future Interface: Layered sightlines, programmatic flow, and cache-like storage for the next five years of livingMarin ValeDec 13, 2025Table of ContentsSplit-Core Gallery + Pocket BedroomsDiagonal Spine with Flex RoomPerimeter Loop + Center HearthFinal TakeawayTable of ContentsSplit-Core Gallery + Pocket BedroomsDiagonal Spine with Flex RoomPerimeter Loop + Center HearthFinal TakeawayFree floor plannerEasily turn your PDF floor plans into 3D with AI-generated home layouts.Convert Now – Free & InstantFuture living is tightening its feedback loops while today’s homes still lag in flexibility and bandwidth. According to NAHB, open concept preferences remain strong across U.S. buyers, yet noise and storage fragmentation persist in real life. I’ve been sketching 2 bedroom 1 bath open concept floor plans as early code for a lifestyle that pivots quickly—work, wellness, and downtime on one clean bus. spatial reasoning toolkit sits quietly behind every choice, because future comfort is a systems problem.Split-Core Gallery + Pocket BedroomsDesign Logic:Center the kitchen as the compute core; living and dining radiate, bedrooms pocket into quiet nodes. Open concept stays intact while acoustic edges protect focus.Flow:Entry → kitchen island → dining arc → lounge bay → bedroom pods → bath near linen; a low-latency loop for daily routines.Sightlines:Island to window wall, then angled reveals to bedroom doors; hierarchy keeps public UI on display, private UI oblique.Storage:Full-height pantry, island drawers, corridor linen, under-bed modules—cache close to use to prevent memory thrash.Furniture Fit:84–96" sofa, 30" deep island, 42" dining clearances, queen beds; every dimension respects the API of human movement.Verdict:This layout balances openness with selective opacity; over five years it adapts to hybrid work without bleeding into rest.save pinDiagonal Spine with Flex RoomDesign Logic:A gentle diagonal from entry to glazing unifies zones and stretches perceived bandwidth; one bedroom doubles as flex studio.Flow:Entry bench → angled kitchen spine → dining wedge → lounge → flex bedroom → bath; decisions route like conditional statements.Sightlines:Diagonal spine offers long throws to light, short throws to doors; information density drops at sleep nodes.Storage:Built-in wall run along the diagonal, shallow media shelf, closet with double hang, overheads in bath—tiered cache for fast recall.Furniture Fit:Round 42" table softens crossings, modular sectional under 9', adjustable desk in flex room; specs prevent collisions.Verdict:The diagonal acts as a conductor; as life scripts change, the flex room absorbs new functions without fragmenting the open field.save pinPerimeter Loop + Center HearthDesign Logic:Keep circulation at the edges; a central hearth (island + media wall) becomes the processing unit, bedrooms anchor opposite corners.Flow:Perimeter loop → island hub → dining niche → lounge → corner bedrooms → bath mid-line; no dead ends, just clear routes.Sightlines:From entry, a layered stack: island, art plane, window; bedrooms masked by perpendiculars so private UI stays off the main feed.Storage:Perimeter millwork, toe-kick drawers, bath tall cabinet, window-seat bins—hierarchical cache, high-capacity and legible.Furniture Fit:30" pathways minimum, 24" stools clearance, media wall at 9–10' viewing distance, queens with 24" bedside margins.Verdict:With the core centralized and the loop calm, the plan stays open yet disciplined; five years in, it still feels composed under load.save pinFinal Takeaway2 bedroom 1 bath open concept floor plans succeed when flow behaves like clean code and storage acts like intelligent cache. Variations—split-core, diagonal spine, perimeter loop—are just different compilers for the same lifestyle operating system. The smartest two-bed layouts won’t be larger, only more intentional—and in my experience, the interface is what quietly determines how people live.Convert Now – Free & InstantPlease check with customer service before testing new feature.Free floor plannerEasily turn your PDF floor plans into 3D with AI-generated home layouts.Convert Now – Free & Instant