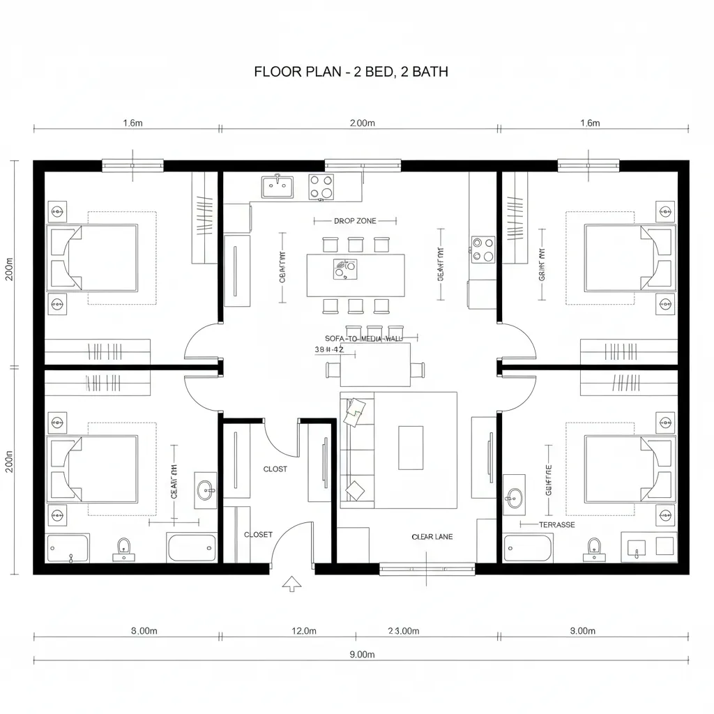
2-Bedroom 2-Bath Open Concept, Composed for Near-Future Living: A spatial interface where flow, sightlines, and storage behave like code for the next five yearsMorgan ValeDec 13, 2025Table of ContentsDual-Core Great Room with Split BedroomsEnfilade Spine with Pocketed FlexCorner Window Hub with Wet-Core EfficiencyFinal TakeawayTable of ContentsDual-Core Great Room with Split BedroomsEnfilade Spine with Pocketed FlexCorner Window Hub with Wet-Core EfficiencyFinal TakeawayFree floor plannerEasily turn your PDF floor plans into 3D with AI-generated home layouts.Convert Now – Free & InstantThe future is pressing in while today’s homes still juggle noise, clutter, and fragmented routines—so I tune floor plans like operating systems. NAHB data shows rising demand for layouts that merge kitchen, dining, and living zones without sacrificing privacy, which is why 2 bedroom 2 bath open concept floor plans are my current language. I see households needing a space that updates in real time—work, wellness, guests—under a single yet legible interface. spatial reasoning toolkitDual-Core Great Room with Split BedroomsDesign Logic:Primary suite on one side, guest/office suite opposite; shared open great room acts as the processor, balancing social bandwidth with private threads.Flow:Entry → drop zone → kitchen island → living zone → terrace, while bedrooms branch like secure subroutines, minimizing cross-traffic.Sightlines:Island to living focal wall to glazing; bedrooms are visually muted, keeping public UI clean and calm.Storage:Wall pantry + linen cabinets + under-bed drawers—cache near nodes, not in dead zones.Furniture Fit:96" sofa, 36" circulation behind seating, 10–12' dining clearances; island at 36" height anchors multitasking.Verdict:This split-core plan anticipates hybrid schedules: shared energy in the middle, privacy compiled at the edges.save pinEnfilade Spine with Pocketed FlexDesign Logic:A linear spine runs kitchen–dining–living, with a pocketable flex room off-axis that becomes study, nursery, or guest buffer as life iterates.Flow:Spine path behaves like a command line; flex pocket opens/closes via sliders to scale social load without breaking sequence.Sightlines:Long axial view to windows; sliding panels act like UI toggles, modulating exposure and focus.Storage:Full-height appliance wall, corridor closets, built-in bench with hidden cache—latency reduced by proximity.Furniture Fit:72–84" table centered on axis; sectional depth 38–40" to keep lanes at 42"; modular shelves behave like plug-ins.Verdict:An adaptable ribbon that future-proofs unpredictable weeks—space changes state without changing address.save pinCorner Window Hub with Wet-Core EfficiencyDesign Logic:Open hub occupies the brightest corner; baths cluster as a wet-core to compress plumbing runs and free perimeter for living bandwidth.Flow:Hub → bedrooms on dual diagonals → baths tucked behind service wall; terrace acts as an external thread for resets.Sightlines:Corner glazing establishes a wide UI horizon; wet-core keeps service functions visually quiet.Storage:Laundry tower with overhead cabinets, niche shelving near baths, media wall with concealed cache—ordered like version control.Furniture Fit:Corner L-sofa frames view; 30" deep media wall; queen beds with 24–30" side clearances; island seats four without packet loss.Verdict:Light-led hub plus efficient core: a plan that feels bigger because attention is architected, not just square footage.save pinFinal TakeawayOpen concept two-bedroom living is less about removing walls and more about instructing flow, sightlines, and storage to behave like software. These 2-bedroom layouts—whether split-core or enfilade—operate as a responsive interface for work, rest, and guests. Long-tail needs like “work-from-home ready zones” and “acoustic buffering” fold into the plan without breaking openness. In my experience, the smartest homes of the future won’t be larger—only more intentional.Convert Now – Free & InstantPlease check with customer service before testing new feature.Free floor plannerEasily turn your PDF floor plans into 3D with AI-generated home layouts.Convert Now – Free & Instant