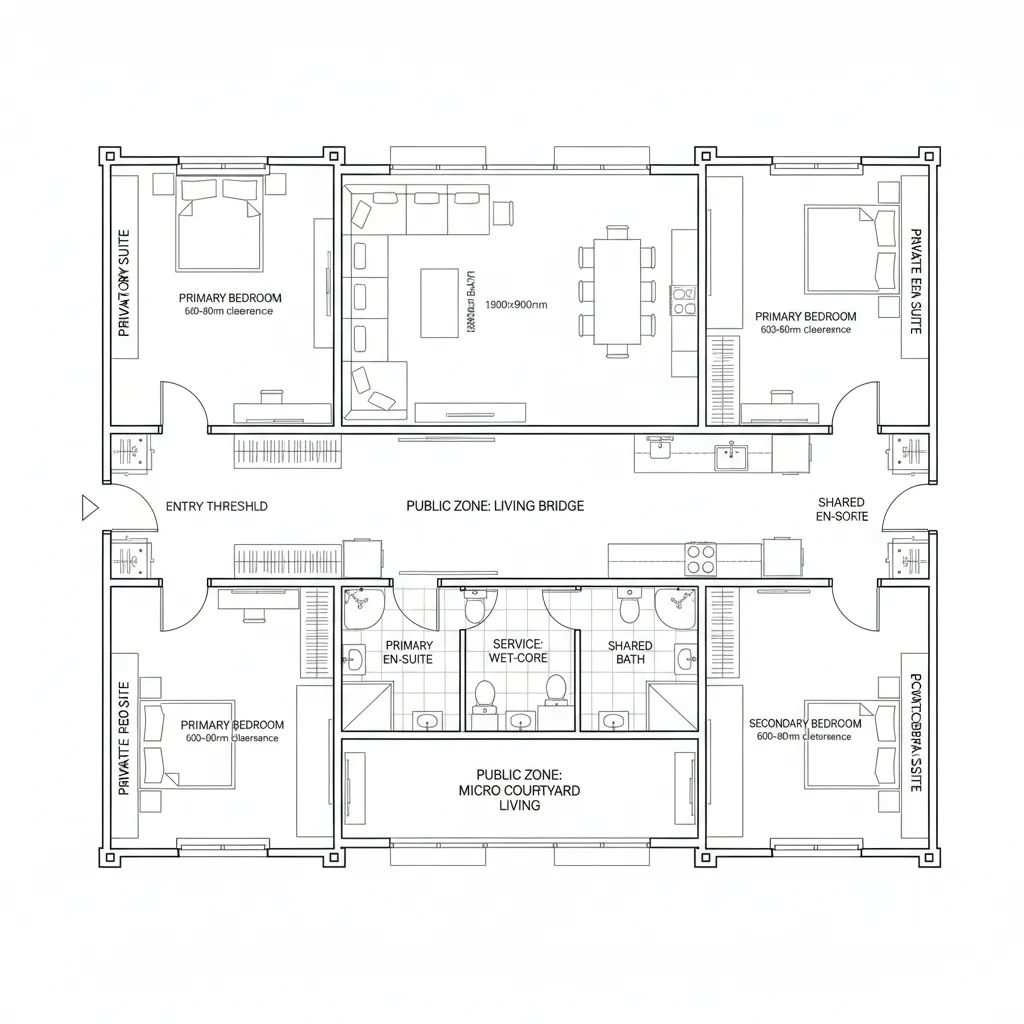
2 Bedroom 3 Bath Container Home Plans: A futurist designer’s read on modular living as a lifestyle interfaceMiles K.Dec 13, 2025Table of ContentsSplit-Core Duo with En Suite StackCourtyard Bridge with Wet-CoreRail Stack with Flex Bath and Studio NicheFinal TakeawayTable of ContentsSplit-Core Duo with En Suite StackCourtyard Bridge with Wet-CoreRail Stack with Flex Bath and Studio NicheFinal TakeawayFree floor plannerEasily turn your PDF floor plans into 3D with AI-generated home layouts.Convert Now – Free & InstantThe future presses in while today’s homes struggle with time, storage, and adaptability; I design like the interface is the real product. Recent NAHB data shows owners prioritizing flexible layouts and efficient footprints, and that aligns with 2 bedroom 3 bath shipping container home floor plans as early code for modular lives. spatial reasoning toolkit sits quietly behind my process, translating constraints into clarity. The next decade will prize rooms that recompile daily routines, not just add square feet.Split-Core Duo with En Suite StackDesign Logic:Two 40’ containers offset create private bedroom wings, with three baths stacked along the shared spine for efficient plumbing and future serviceability.Flow:Entry → open living/kitchen → branch left/right to suites → micro hall loops to third bath; a clean instruction sequence minimizing cross-traffic.Sightlines:Longitudinal views anchor at the kitchen island, with glazed ends framing horizon; privacy gradients deepen toward each suite like UI layers.Storage:Built-in wall bays and under-bed drawers act as cache; a vertical pantry and linen tower near the bath stack boost retrieval speed.Furniture Fit:Sofa 84”, table 72”, queen frames 60” × 80”; every API-sized piece respects container width, leaving 36” clearance corridors.Verdict:This layout anticipates hybrid work and guests—three baths keep bandwidth high while wings protect quiet; five years on, it still feels intentional.save pinCourtyard Bridge with Wet-CoreDesign Logic:Three containers form a U around a micro courtyard; the wet-core bath trio sits in the bridge for short runs and future greywater options.Flow:Threshold → living bridge → left to primary suite → right to secondary suite → outward to courtyard; a loop that compiles indoor-outdoor routines.Sightlines:Glass sliders turn the courtyard into the home’s HUD, with side views tiered from social to intimate; baths stay off-axis to keep visual calm.Storage:Perimeter millwork wraps like a ring buffer; outdoor bench boxes store gear, keeping the living area unburdened.Furniture Fit:Modular sectional 110” in L, low credenza 15” deep, platform beds with 12” toe-kick; dimensions negotiate container ribs without friction.Verdict:The courtyard increases psychological bandwidth; three baths distribute morning load evenly. My clients use it like a lifestyle router, season after season.save pinRail Stack with Flex Bath and Studio NicheDesign Logic:Two containers in parallel, third on short axis for studio/guest; three baths include one flex with pocket doors, serving studio and public zones.Flow:Front entry → living rail → kitchen node → flex bath → branch to bedrooms → studio; a deterministic path that tolerates simultaneous tasks.Sightlines:Aligned apertures create a clean datum; studio niche pulls daylight like a status bar, while bedroom views are throttled for rest.Storage:Ceiling-height wardrobes, toe-kick drawers, and a 24” deep kitchen wall as a constant-time cache—everything findable, nothing loud.Furniture Fit:Desk 60” × 30” in studio, dining 36” × 72”, twin nightstands 18” each; clearances keep 34” passages, avoiding container pinch points.Verdict:This scheme predicts side hustles and micro-hosting; the third bath stabilizes flow during peak times. It ages well as routines diversify.save pinFinal Takeaway2 bedroom 3 bath shipping container home floor plans turn constraints into a precise interface for daily bandwidth, proving modular isn’t a compromise but a strategy. Variants like modular container layouts and compact family units show how plumbing stacks, sightlines, and storage caches become the real operating system of home. In my experience, the smartest homes of the future won’t be larger—only more intentional, and what I keep seeing in my projects is that small spatial decisions quietly rewrite how people live.Convert Now – Free & InstantPlease check with customer service before testing new feature.Free floor plannerEasily turn your PDF floor plans into 3D with AI-generated home layouts.Convert Now – Free & Instant