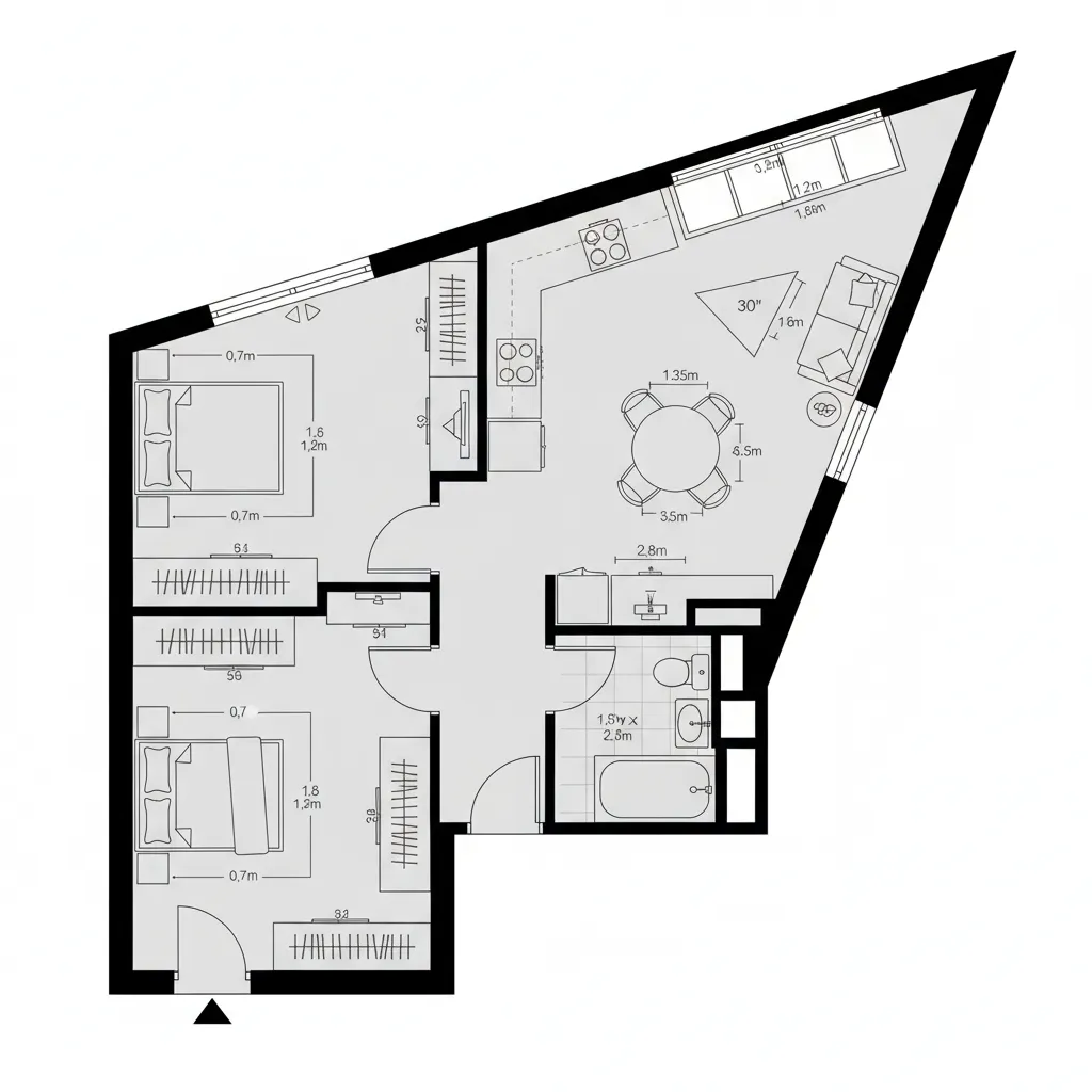
2 BHK Floor Plan, 6 Units—Future Interface Thinking: Six-pack urban housing where movement, sightlines, and storage act like code for tomorrow’s livingA Future-Forward Housing PlannerDec 10, 2025Table of ContentsUnit A: Split-Core Two Bedroom for Cross-Zone LivingUnit B: Gallery Spine with Corner LivingUnit C: Parallel Bars—Kitchen and Living in TandemUnit D: Pocket-Core with Flex RoomUnit E: Diagonal Drift with Angled LivingUnit F: Courtyard Light Well (Mid-Block Edition)Final TakeawayTable of ContentsUnit A Split-Core Two Bedroom for Cross-Zone LivingUnit B Gallery Spine with Corner LivingUnit C Parallel Bars—Kitchen and Living in TandemUnit D Pocket-Core with Flex RoomUnit E Diagonal Drift with Angled LivingUnit F Courtyard Light Well (Mid-Block Edition)Final TakeawayFree floor plannerEasily turn your PDF floor plans into 3D with AI-generated home layouts.Convert Now – Free & InstantFuture living pushes closer while current apartment pain points—noisy adjacencies, storage drift, and fragmented routines—keep tripping my clients. Market signals say it’s real: Zillow’s recent reports note smaller households demanding smarter layouts over larger footprints, and that’s exactly where a 2 bhk floor plan begins to perform. The interface matters; the unit becomes an OS for life, and I read these six units like early code. spatial reasoning toolkit sits behind how I stitch flow and sightlines.Unit A: Split-Core Two Bedroom for Cross-Zone LivingDesign Logic:Primary and secondary bedrooms bookend a compact core—kitchen and bath—so privacy stays intact while shared systems remain centralized, aligning with the future’s multi-modal routines.Flow:Entry → drop zone → kitchen spine → living node → bedrooms left/right; a clean instruction set that minimizes cross-traffic.Sightlines:Living frames a long axis to a window; kitchen remains semi-obscured to keep visual bandwidth calm.Storage:Wall-depth pantry + bed-base drawers act as cache; a hallway closet becomes the quick-access buffer.Furniture Fit:Sofa 84"; table 60" x 36"; queen 60" x 80"; clear 36" circulation lanes—API limits that keep future devices and habits in sync.Verdict:In five years, split-core keeps hybrid work and sleep schedules stable while shrinking decision friction.save pinUnit B: Gallery Spine with Corner LivingDesign Logic:A straight gallery connects entry to corner living, letting light carry through and turning circulation into a legible command line.Flow:Entry → gallery → bedrooms branch → living corner → balcony; each node sequenced for low-interrupt motion.Sightlines:Gallery reads like a UI ribbon; corner glazing elevates priority content—sky, trees, street—over kitchen utility.Storage:Full-height wardrobes with 24" depth; built-in media niche as fast cache; overhead kitchen rails for vertical efficiency.Furniture Fit:L-shaped sofa 96" x 96"; compact island 48" x 24"; twin beds convertible to daybeds for dual-mode use.Verdict:Corner living amplifies light meters, and the gallery spine keeps routines compiled and stable.save pinUnit C: Parallel Bars—Kitchen and Living in TandemDesign Logic:Two parallel bars—kitchen on one side, living on the other—create mirrored functionality, a pattern future households use to run concurrent tasks.Flow:Entry → utility bar → living bar → bedroom nodes; loops stay short, latency low.Sightlines:Longitudinal view with peripheral hints of prep; the main viewport is out to the street or garden, not the sink.Storage:Toe-kick drawers and tall utility tower; bed walls with shallow 12" book ledges for lightweight cache.Furniture Fit:Sectional depth 38"; dining bench 54"; work desk 48" fits into bar rhythm without jam.Verdict:Parallel bars scale gracefully as devices diversify, maintaining clarity across weekday and weekend modes.save pinUnit D: Pocket-Core with Flex RoomDesign Logic:A compact service pocket holds bath, laundry, and HVAC, freeing a flex room to pivot between studio, nursery, or gym—future-proofing embedded.Flow:Entry → pocket-core → living hub → flex room → primary bed; choices branch without collision.Sightlines:Living stays the primary viewport; flex room gets translucent panels—information visible, mess muted.Storage:Over-pocket overheads; sliding wall cabinet as slow cache; bench storage at entry for rapid access.Furniture Fit:Murphy desk 30"; mini-sofa 72"; queen plus 24" nightstands—tolerances that preserve 34–36" paths.Verdict:Pocket-core hardens the infrastructure while the flex room absorbs life’s changing scripts.save pinUnit E: Diagonal Drift with Angled LivingDesign Logic:An angled living wall pulls circulation diagonally, diffusing congestion and giving small spaces larger psychological bandwidth.Flow:Entry → diagonal path → living wedge → kitchen set-back → bedrooms; movement feels like a dynamic UI gesture.Sightlines:Angled planes layer content: cooking secondary, horizon primary; glare managed by oblique incidence.Storage:Corner wardrobes with carousel inserts; angled media credenza as quick cache; ceiling racks for seasonal overflow.Furniture Fit:Triangular coffee table 30" per side; dining round 42"; modular shelves follow the angle without waste.Verdict:Diagonal drift converts tight grids into fluid narratives, ideal for creative routines and variable schedules.save pinUnit F: Courtyard Light Well (Mid-Block Edition)Design Logic:A shared light well centers micro-nature; units ring the void, so each 2-bedroom gains distributed daylight and calm.Flow:Entry → living toward light well → kitchen offset → bedrooms buffering edges; the program pulses around the core.Sightlines:Primary view anchors on sky and planting; service views recede, prioritizing mental bandwidth.Storage:Perimeter built-ins as slow cache; window-seat drawers for medium-speed items; pantry pull-outs for fast cycles.Furniture Fit:Straight sofa 90"; island 56" x 28"; wardrobes at 30" depth—clearances respect the shared light geometry.Verdict:The well orchestrates circadian rhythms and lowers visual noise, a subtle health protocol for dense living.save pinFinal TakeawaySix coordinated 2 bhk floor plan units behave like a micro-OS: flow, sightlines, and storage compiling the future day. Variants like two-bedroom apartment layouts and compact urban plans show that the smartest homes optimize sequence, not size. In my experience, long-tail thinking—from corner living strategies to light-well geometries—turns small spatial decisions into lifestyle upgrades. And in my work, I keep seeing how precision in furniture and circulation quietly rewires routines.Convert Now – Free & InstantPlease check with customer service before testing new feature.Free floor plannerEasily turn your PDF floor plans into 3D with AI-generated home layouts.Convert Now – Free & Instant