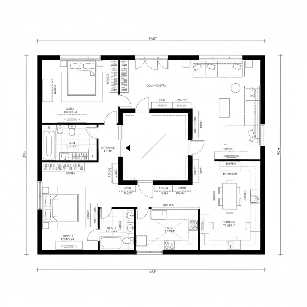
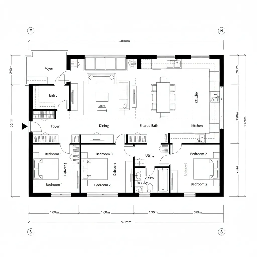
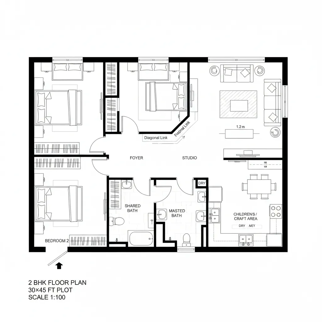
2 BHK on a 30×45 East-Facing Plot: A future-forward interface for everyday living, compiled in a compact urban footprintField Notes by a Future-Facing PlannerDec 10, 2025Table of ContentsSun-Stacked Linear SpineCourt-Core with Split BedroomsDiagonal Link with Flexible Studio## Final TakeawayTable of ContentsSun-Stacked Linear SpineCourt-Core with Split BedroomsDiagonal Link with Flexible Studio## Final TakeawayFree floor plannerEasily turn your PDF floor plans into 3D with AI-generated home layouts.Convert Now – Free & InstantThe future presses in as our clients juggle hybrid work, multigenerational rhythms, and rising utility costs; the interface is the home itself, and we need it to compute life with grace. Recent NAHB data notes a continued preference for efficient two-bedroom arrangements over expansion, and I read that as a design prompt for 2 bhk floor plans of 30 45 east face. I keep treating compact plots like early prototypes of tomorrow’s living protocols—tuned for light, thermal logic, and ritual.Sun-Stacked Linear SpineDesign Logic: East-facing entry gathers morning light; rooms stack along a linear spine so routine compiles clockwise from arrival to rest. Flow: Entry foyer → living → dining-kitchen → utility → shared bath → bedrooms; a single directive reduces branch logic and glitches. Sightlines: From the door, a low horizon reveals living and a framed garden; diagonals are capped to prevent visual noise, like UI priority layers. Storage: Continuous wall rails act as cache—pantry pull-outs near kitchen, linen towers between beds, concealed bench at foyer. Furniture Fit: Sofa at 84" with 36" circulation, dining 60"x36", queen beds with 30" clear each side—APIs set for human bandwidth. Verdict: A calm, east-lit stream that will age well as schedules atomize; five years in, it still boots the day cleanly.save pinCourt-Core with Split BedroomsDesign Logic: A central micro-courtyard becomes the thermal and social core; bedrooms split to opposite nodes for privacy and latency control. Flow: Entry → living wrapped to court → kitchen on south edge → guest bed near front → primary bed rear; service loop stays silent. Sightlines: Court reads first as a bright notification; lateral views stitch rooms, while private axes fade like dimmed settings. Storage: Perimeter niches around the court act as ring buffer; overheads near south wall keep heat loads disciplined. Furniture Fit: Modular sectional 96" in L, island 72"x36" with 42" clear, platform beds 78"x60"; each node respects throughput. Verdict: With light as the kernel, this plan supports hybrid work and staggered sleep cycles; future upgrades plug into the core.save pinDiagonal Link with Flexible StudioDesign Logic: A gentle diagonal connects living to a flex studio, anticipating remote work as a permanent instruction set. Flow: Foyer → living → diagonal to studio → kitchen-dining → bath cluster → two bedrooms; tasks route without collisions. Sightlines: Diagonal reads like a progress bar across the plan; privacy gradients step down from public to sleep. Storage: Studio wall system doubles as cache for gear; bedhead niches and under-bench drawers keep latency minimal. Furniture Fit: Worktable 60"x30" with 48" circulation, galley runs at 24"+42" aisles, wardrobes 24" deep—precise endpoints for clean calls. Verdict: This layout future-proofs the 2-bedroom unit by dedicating an adaptable node; in five years, it will host both craft and calm.save pin## Final TakeawayOn a 30×45 east-facing plot, the 2 BHK becomes a disciplined interface where light, privacy, and throughput meet. Variants like split-bedroom, courtyard core, and diagonal studio translate tomorrow’s routines into today’s 2-bedroom unit geometry. The smartest homes won’t be larger, only more intentional—bandwidth over bulk. In my experience, small spatial decisions recompile the whole day.Convert Now – Free & InstantPlease check with customer service before testing new feature.Free floor plannerEasily turn your PDF floor plans into 3D with AI-generated home layouts.Convert Now – Free & Instant