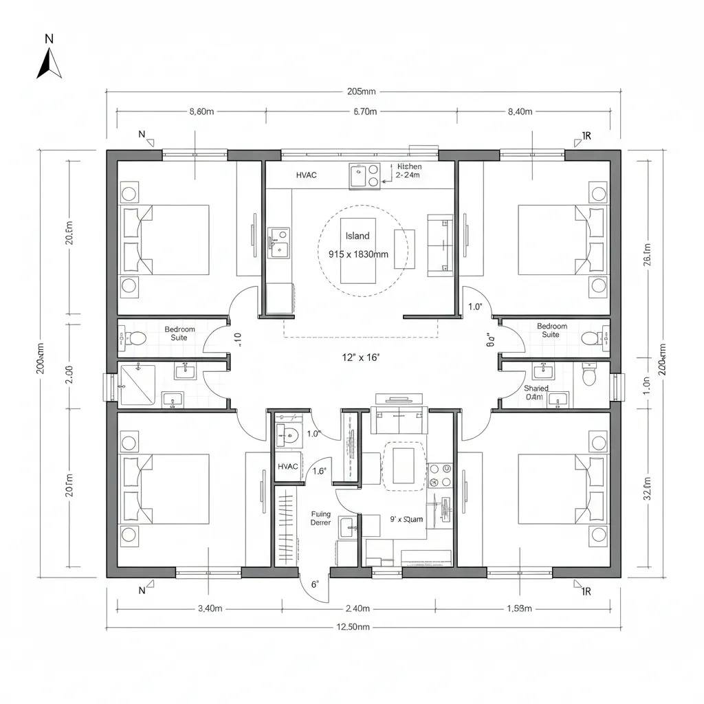
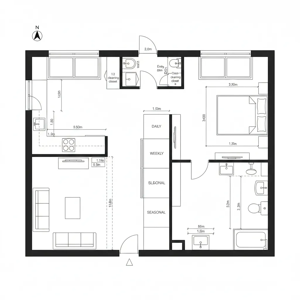
2D Floor Plan Software, Seen From Tomorrow: How I translate future lifestyles into present-day 2D layoutsNoah Vale, Residential FuturistDec 03, 2025Table of ContentsStudio Node: The Looping Spine1-Bed Hybrid: The Gradient Corridor2-Bed Flex Grid: Rooms as ServicesFinal TakeawayTable of ContentsStudio Node The Looping Spine1-Bed Hybrid The Gradient Corridor2-Bed Flex Grid Rooms as ServicesFinal TakeawayFree floor plannerEasily turn your PDF floor plans into 3D with AI-generated home layouts.Convert Now – Free & InstantThe future keeps leaning in while today’s homes still stumble over storage, flow, and noise bleed. AIA and NAHB trends show smaller footprints and multi-use rooms rising, while Zillow’s buyers keep prioritizing flexible layouts. I open my 2D floor plan software like a diagnostic scope for near-future living—space as interface, constraints as code. And here, I start mapping habits before walls set.We already sense the shift: remote work as default, wellness baked into daily paths, kitchens running like micro-infrastructures. With Houzz data tracking the home office surge, the main keyword—2D floor plan software—becomes my substrate, and this spatial reasoning toolkit helps me compile tomorrow into today’s square footage.Studio Node: The Looping SpineDesign Logic: A central storage-wall spine splits sleep and social zones, future-proofing for work/live fusion and acoustic sanity.Flow: Entry → utility niche → kitchen strip → desk bay → lounge → sleep pod; a loop with no dead-ends, like a clean event loop.Sightlines: From door, diagonal to balcony; spine keeps bed out of the first scan, UI triage: public first, private later.Storage: 24–30 inches deep along the spine; modular bays act as cache tiers: daily, weekly, seasonal.Furniture Fit: 72–78 inch sofa, 24 inch worktop, full XL bed in a 7' niche; API clearances at 36 inches for traffic.Verdict: A studio that behaves like software: updates without refactoring walls, ready for the next five-year work rhythm.save pin1-Bed Hybrid: The Gradient CorridorDesign Logic: A soft corridor becomes a programmable gradient—public at the kitchen edge, private at the bedroom dock.Flow: Foyer with drop zone → galley kitchen → flex table → pocket office → bedroom; instructions execute left to right.Sightlines: Sight arrows stack: entry sees light, not mess; desk tucks in a sideband, screen glare minimized.Storage: Corridor closets as L1 cache, bed drawers as L2, overhead bins as cold storage; labeled, shallow, retrievable.Furniture Fit: 60x30 table flips between dining and dual-monitor station; 84 inch media wall anchors wires like a bus.Verdict: The apartment reads like a readable codebase—clear modules, fewer interrupts, ready for mixed schedules.save pin2-Bed Flex Grid: Rooms as ServicesDesign Logic: Two equalized bedrooms flank a shared core; parity supports roommates, guests, or a nursery without rewrites.Flow: Entry → utility hub → island kitchen → living square → symmetrical suites; packets routed predictably.Sightlines: Cross-vent and cross-view through aligned windows; doors offset to keep private frames off the main UI.Storage: Split pantries, twin wardrobes, bench cabinets under windows; cache nearest to use to cut seek time.Furniture Fit: 9' sofa fits a 12'x16' living bay; queen beds with 30 inch side aisles; island at 36x72 with 42 inch rings.Verdict: A resilient grid that can host co-living, aging-in-place, or a studio-plus-suite scenario without friction.save pinFinal Takeaway2D floor plan software is how I pre-compile lifestyles before drywall freezes intent. Its semantic variants—digital floor planner, apartment layout tool, and space planning software—let me choreograph flow, storage, and sightlines like system logic. With long-tail moves such as “interactive apartment planner” and “online room layout designer,” we translate needs into coordinates, then into calm. In my experience, the smartest homes of the future won’t be larger—only more intentional, and what I keep seeing in my projects is that small spatial decisions quietly rewrite the way people live.Convert Now – Free & InstantPlease check with customer service before testing new feature.Free floor plannerEasily turn your PDF floor plans into 3D with AI-generated home layouts.Convert Now – Free & Instant