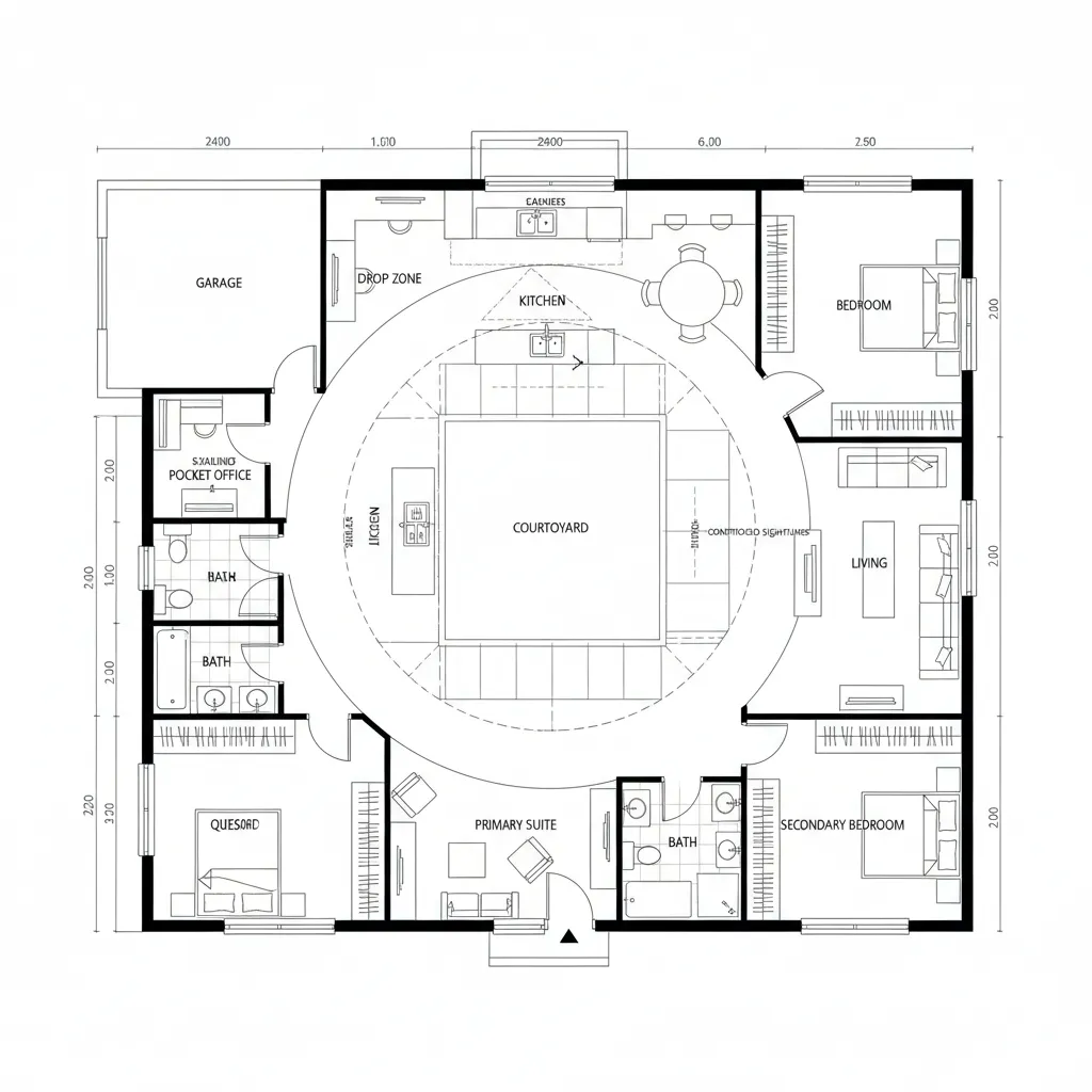
3-Bed Ranch: A Future-Ready Interface: A single-level compilation where circulation, sightlines, and storage form a living operating systemMiles North—Residential FuturistDec 03, 2025Table of ContentsSplit-Core Spine with Quiet WingCourtyard Loop with Daylight BusFlex Grid with Convertible Third## Final TakeawayTable of ContentsSplit-Core Spine with Quiet WingCourtyard Loop with Daylight BusFlex Grid with Convertible Third## Final TakeawayFree floor plannerEasily turn your PDF floor plans into 3D with AI-generated home layouts.Convert Now – Free & InstantThe future is compressing into the present, and the single-level home is quietly becoming a protocol for calmer bandwidth. AIA data shows demand for flexible, open-kitchen living and work niches keeps rising across remodels, an echo I feel daily in my clients’ requests. In this context, a 3 bedroom ranch floor plan isn’t nostalgia; it’s a low-latency interface for evolving households—multigenerational, hybrid work, and wellness-first—built to scale. I see it as the early code of how we’ll inhabit time, not just space. spatial reasoning toolkitSplit-Core Spine with Quiet WingDesign Logic:Primary suite and secondary bedrooms split across a central great-room spine, because future routines need parallel processing—sleep, work, and social can run without thread conflicts.Flow:Entry → mud/laundry buffer → kitchen hub → living → primary retreat; kids/guest wing branches laterally, minimizing cross-traffic.Sightlines:Front-to-back axial view anchors calm; kitchen to yard transparency functions like a dashboard, quick-scanning for activity states.Storage:Perimeter pantry walls, bench cubbies as cache, linen stacks at junctions; everything within two steps of its use-node.Furniture Fit:9–10 ft sofa lane, 42-inch island clearance, queen-ready rooms with 30-inch flank margins—tight APIs, no UI lag.Verdict:This split-core anticipates hybrid work and teen schedules; it will age well as a low-friction operating system for five-plus years.save pinCourtyard Loop with Daylight BusDesign Logic:Wrap main spaces around a micro-courtyard so light becomes the central bus, distributing mood and circadian rhythm across rooms.Flow:Garage drop → pocket office node → kitchen → dining → courtyard → living; bedrooms form a quiet loop off the bright ring.Sightlines:Lateral views stitch kitchen to green void; controlled reveals keep privacy like layered UI panes.Storage:Shallow wall cabinets along the loop act as continuous cache; primary gets double-depth wardrobes for seasonal overflow.Furniture Fit:Round table (54–60 inches) to keep the loop fluid, modular sofa segments that pivot toward fire or garden scenes.Verdict:The courtyard loop future-proofs mood and energy costs—daylight as a renewable interface that stabilizes daily code.save pinFlex Grid with Convertible ThirdDesign Logic:Two fixed bedrooms plus a flex third that compiles into studio, ADA-ready suite, or library—because lifestyles version quickly.Flow:Front flex with double sliders → shared bath core → great room; primary sits rear for acoustic isolation and night-shift tolerance.Sightlines:Diagonal view from entry to back patio sets hierarchy; flex room partially veiled, a semi-transparent UI for work/life swap.Storage:Pocketed wall bed with integrated closets, tool wall in garage, attic-lite truss bay for seasonal archives—structured cache tiers.Furniture Fit:Flex room accepts a 72-inch workbench or queen + 24-inch nightstands; island supports dual 24-inch stools without elbow collisions.Verdict:This convertible node is a hedge against uncertainty—renter income, elder care, maker space—ready for the next five-year patch.save pin## Final TakeawayA 3 bedroom ranch floor plan is less a shape than an operating logic: single-level latency, clear sightlines, and caches placed like code near the point of use. Its semantic variants—single-story family layout, three-bed single-level home—show how the same interface can be compiled for work, aging, and play. In my experience, the smartest homes of the future won’t be larger—only more intentional; what I keep seeing in my projects is that precise flow choices quietly rewrite daily life.Convert Now – Free & InstantPlease check with customer service before testing new feature.Free floor plannerEasily turn your PDF floor plans into 3D with AI-generated home layouts.Convert Now – Free & Instant