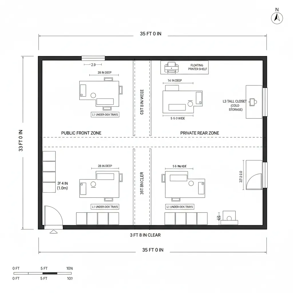
35×13 Office: A Narrow Bandwidth That Performs: Programming a slim workspace where flow, focus, and storage act like future-ready codeAvery LumenDec 15, 2025Table of ContentsLong Axis Studio: Spine with NodesBay-and-Buffer: Alternating Work and ResetDistributed Desk: Two Nodes, One SignalFinal TakeawayTable of ContentsLong Axis Studio Spine with NodesBay-and-Buffer Alternating Work and ResetDistributed Desk Two Nodes, One SignalFinal TakeawayFree floor plannerEasily turn your PDF floor plans into 3D with AI-generated home layouts.Convert Now – Free & InstantThe future lifestyle keeps compressing footprints while expanding bandwidth for deep work, and the current pain point is linear offices that feel like corridors instead of interfaces. According to AIA’s latest surveys, firms report rising demand for adaptable work zones—small footprints, higher functionality—mirroring how a 35 sq ft by 13 sq ft office floor plan must perform. The future is closing in, and I already see its outlines forming in this slim rectangle: a workspace compiled like software. spatial reasoning toolkitLong Axis Studio: Spine with NodesDesign Logic: A central spine runs the 13 ft length, with work nodes branching like modules, translating future hybrid work into a linear codebase.Flow: Entry → quick-drop shelf → main desk → collaboration perch → focus alcove → archive endcap; a sequence that reads left to right like a script.Sightlines: Clear sight down the corridor; side glances hit writable walls and a window at the terminus, prioritizing signal over noise.Storage: Slim wall rails, overhead bins, and under-desk drawers act as cache—fast access up front, deep archive at the far end.Furniture Fit: 24–30" deep desks, 18" wall shelves, and a 36" standing perch respect the API limits of a 35×13 envelope.Verdict: This linear studio anticipates five years of hybrid rhythms: quick handoffs up front, deep focus downfield, like a well-optimized pipeline.save pinBay-and-Buffer: Alternating Work and ResetDesign Logic: The plan tiles work bays with buffer zones—production then recovery—because the future values cognitive pacing as much as output.Flow: Door → soft buffer bench → primary workstation → materials bay → micro lounge → whiteboard tail; a cadence that breathes.Sightlines: Diagonal reads across alternating bays create visual scansion; attention lands on the task, then releases to the buffer.Storage: Vertical tambour units and pegboard panels cache tools; buffer zones hold concealed bins to keep the bus unclogged.Furniture Fit: 48" workstation, 30" tambours, 20" bench depth; every inch negotiates throughput without latency.Verdict: Alternation becomes wellness infrastructure, future-proofing the narrow office with humane intervals that sustain long projects.save pinDistributed Desk: Two Nodes, One SignalDesign Logic: Split the office into two synchronized desks—front for synchronous calls, rear for asynchronous focus—reflecting a dual-channel future.Flow: Entry node for meetings → mid-run printer shelf → rear deep-focus desk → end cap storage; a compiled sequence that reduces context switching.Sightlines: Front node faces the door for fast response; rear node faces a controlled wall, isolating signal for deep work.Storage: Mid-run cabinets as L2 cache; end cap tall closet as cold storage; under-desk trays as L1 for daily assets.Furniture Fit: Two 24–30" desks, 12–16" printer shelf, 24" closet; dimensioning is the API that keeps collisions to zero.Verdict: Two-node logic anticipates the next five years: meetings and making coexisting without interference, like parallel threads sharing one bus.save pinFinal TakeawayA 35 sq ft by 13 sq ft office floor plan is a slim interface where work styles compile into space: narrow doesn’t mean limited, only more precise. Variants like long-axis studios and distributed desks show how small office layout choices become the operating system for hybrid life. The most resilient offices of tomorrow will tune flow, sightlines, and cache to reduce cognitive latency; in my experience, intentional constraints make the smartest rooms.Convert Now – Free & InstantPlease check with customer service before testing new feature.Free floor plannerEasily turn your PDF floor plans into 3D with AI-generated home layouts.Convert Now – Free & Instant