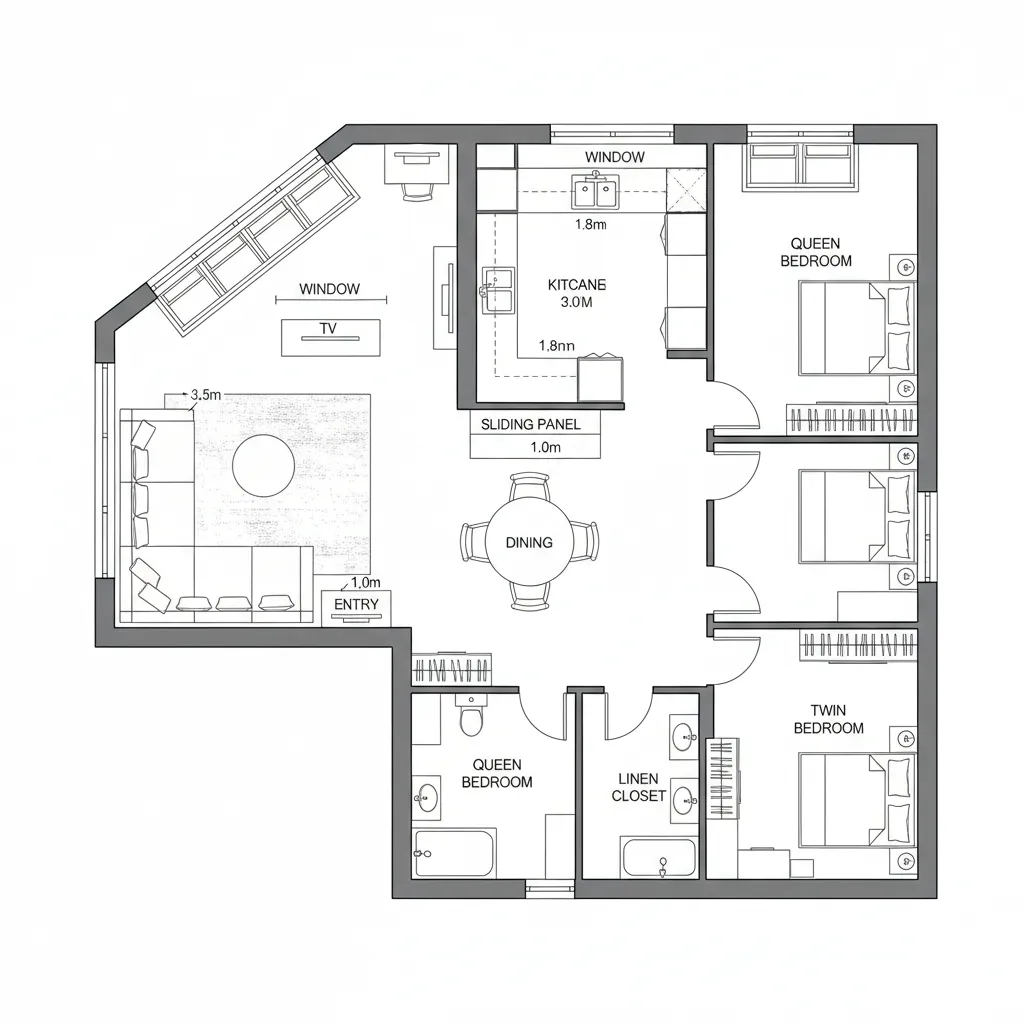
3BHK Ground Floor Plan with Drawing Room: Interface-thinking for a three-bedroom home that anticipates near-future livingField Notes of a Future-Minded PlannerDec 11, 2025Table of ContentsLayout A: Courtyard Spine with Split Public-Private BandsLayout B: Axial Gallery with Pocketable Flex RoomLayout C: Corner Drawing Room with Semi-Open KitchenFinal TakeawayTable of ContentsLayout A Courtyard Spine with Split Public-Private BandsLayout B Axial Gallery with Pocketable Flex RoomLayout C Corner Drawing Room with Semi-Open KitchenFinal TakeawayFree floor plannerEasily turn your PDF floor plans into 3D with AI-generated home layouts.Convert Now – Free & InstantThe future presses in, while today’s households juggle multi-generational routines, hybrid work, and storage anxiety. According to NAHB surveys, buyers increasingly prioritize flexible living spaces over sheer square footage—an early signal that a 3 bhk with drawing room becomes a lifestyle interface rather than a static container. I treat this plan as code for evolving habits, compiled for the ground level where thresholds matter. spatial reasoning toolkit lives quietly behind my choices, guiding sightlines and flow so the home feels inevitable, not improvised.Layout A: Courtyard Spine with Split Public-Private BandsDesign Logic:Public band (drawing + dining + kitchen) faces a light well; private band (three beds) pulls quiet to the rear—future-proofing hybrid work and aging-in-place.Flow:Entry → drawing room welcome node → dining hub → kitchen service loop → corridor to bedrooms; guests never breach private routines.Sightlines:Front door to courtyard glow, then layered views to dining; bedrooms remain off the UI, revealing only when needed.Storage:Wall-depth pantry as cache near kitchen; corridor wardrobes as long-term archive; bed bays get modular bins.Furniture Fit:Drawing room anchor sofa at 96–108 inches; dining 72-inch table; beds sized to API limits: queen/queen/twin with 30-inch clearances.Verdict:This split-band geometry reads like stable firmware—ready for guests, Zoom, and quiet nights without cross-interference.save pinLayout B: Axial Gallery with Pocketable Flex RoomDesign Logic:An axial gallery links entry to garden; a sliding-panel flex zone adjacent to drawing room acts as study or child play node—future swing space.Flow:Entry → gallery → drawing room → flex pocket → kitchen/dining → bedrooms; conditional branches let the house adapt daily.Sightlines:Long axis supplies visual bandwidth; pocket doors act as privacy toggles, throttling exposure during work hours.Storage:Gallery consoles as quick-access cache; under-bench dining storage; overheads only where circulation won’t throttle headroom.Furniture Fit:Modular sofa with 36-inch egress; flex room desk at 60 inches; dining bench fits 18-inch seat depth; beds maintain 24–30-inch walkways.Verdict:The axial gallery behaves like a router: traffic clean, options plentiful, and the flex room becomes your dynamic subroutine.save pinLayout C: Corner Drawing Room with Semi-Open KitchenDesign Logic:Corner drawing room captures dual exposures; semi-open kitchen balances social energy with acoustic control—future living needs both.Flow:Entry → corner drawing node → semi-open kitchen → dining buffer → hall to three bedrooms; routines separate like threads with shared memory.Sightlines:Diagonal views extend perceived depth; kitchen pass-through acts like a UI widget—information without full reveal.Storage:L-shaped kitchen with tall appliance garage; linen closet near bath; bed niches as personal caches to reduce drift.Furniture Fit:Corner seating at 100–120 inches across; round dining 54 inches to ease circulation; wardrobes flush within 24-inch depths.Verdict:This corner-led composition scales gracefully: convivial at the edges, calm at the core—stable for five years of shifting patterns.save pinFinal TakeawayA 3 bhk with drawing room on the ground floor is less about rooms and more about orchestrating interfaces—thresholds, flows, and buffers. Variants like three-bedroom layouts, ground-level living, and flexible family zones show how tomorrow’s habits already shape today’s walls. In my experience, the smartest homes of the future won’t be larger—only more intentional, and what I keep seeing in my projects is that small spatial decisions quietly rewrite the way people live.Convert Now – Free & InstantPlease check with customer service before testing new feature.Free floor plannerEasily turn your PDF floor plans into 3D with AI-generated home layouts.Convert Now – Free & Instant