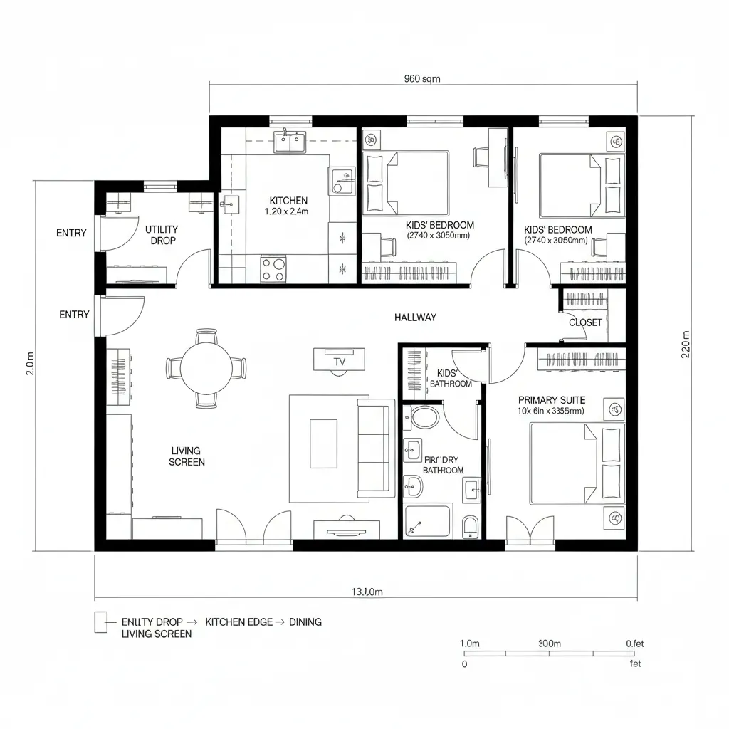
3BHK in 960 sq ft: Interface for a Compressed Future: A compact 3-bedroom compiled like code—flow, sightlines, storage, and furniture as the APIs of daily lifeField Notes of a Future-Facing PlannerDec 15, 2025Table of ContentsLinear Spine with Split Social CoreRing Loop with Pocket Flex RoomCross-Axis Zoning with Quiet EdgeFinal TakeawayTable of ContentsLinear Spine with Split Social CoreRing Loop with Pocket Flex RoomCross-Axis Zoning with Quiet EdgeFinal TakeawayFree floor plannerEasily turn your PDF floor plans into 3D with AI-generated home layouts.Convert Now – Free & InstantFuture lifestyles demand a denser interface while current residents struggle with noise, storage debt, and fractured routines; the squeeze is real and design must act. AIA notes ongoing shifts toward flexible, multi-use residential zones, and I see it most clearly in a 3bhk floor plan in 960 sq ft—tight, but programmable. The future is nearing, and I’m already reading its early syntax in these compressed rooms. spatial reasoning toolkitLinear Spine with Split Social CoreDesign Logic:Bedrooms anchor the ends; a central living–dining node threads daily functions, reducing conflict between sleep and social bandwidth.Flow:Entry→utility drop→kitchen edge→dining hub→living screen→two kids’ rooms→primary suite; a sequence like a clean instruction chain.Sightlines:Kitchen to dining to living aligns as a calm UI; doors stagger so private views don’t collide, keeping visual latency low.Storage:Full-height corridor walls act as cache; toe-kick drawers, over-door lofts, and bed-base bins maintain stable throughput.Furniture Fit:9' x 10' kids’ rooms accept bunk + 24" desk; living holds a 72" sofa and 36" modular table; king in 10'6" x 11' primary fits with 18" clear edges.Verdict:This spine lets family signals travel without jitter; five years out, the central node will flex for hybrid work and quiet study without packet loss.save pinRing Loop with Pocket Flex RoomDesign Logic:A continuous loop encircles a compact core, allowing micro-adjustments as life updates—work, care, guests—without rewriting the plan.Flow:Entry→ring corridor→pocket room→kitchen alcove→living bay→bedroom triad; movement is circular, avoiding dead ends and backlog.Sightlines:Diagonal glimpses from living to pocket room give presence without exposure; glazing ribs filter info like layered UI panes.Storage:Ring walls host shallow 12" modules; pocket room gets wall bed + tall utility tower, acting as burst cache for events.Furniture Fit:Living bay supports 80" media wall; dining niche fits 30" round drop-leaf; pocket room holds a 60" fold-down desk and sleeper.Verdict:The loop architecture absorbs variability; in near-future cycles, this pocket becomes the family’s adaptive kernel for work and care.save pinCross-Axis Zoning with Quiet EdgeDesign Logic:Day and night split along an orthogonal cross, quarantining noise while preserving shared density—efficiency without entropy.Flow:Entry→mud-strip→galley kitchen→cross node→living east→bedrooms west; flows segregate like parallel threads, minimizing race conditions.Sightlines:Primary views run along the bright axis; secondary views are capped with partial screens, creating readable information tiers.Storage:Deep pantry (24") near node; linen ladder in hall; integrated headboard niches and wall rails control micro-objects like metadata.Furniture Fit:Galley at 7' x 10' with 24" runs; living accepts a 2.5-seat sofa and slim armchair; kids’ rooms fit 48" wardrobes and loft beds.Verdict:The cross-axis keeps chaos off the sleeping edge; looking forward, this plan sustains hybrid living without signal bleed.save pinFinal TakeawayA 3bhk floor plan in 960 sq ft is less a compromise than a coded interface for contemporary family life. Compact three-bedroom layouts, micro-zoning, and adaptive pocket rooms are how we future-proof small homes without bloat. In my experience, the smartest homes of the future won’t be larger—only more intentional, and what I keep seeing in my projects is that precise flow and storage decisions quietly rewrite how people live.Convert Now – Free & InstantPlease check with customer service before testing new feature.Free floor plannerEasily turn your PDF floor plans into 3D with AI-generated home layouts.Convert Now – Free & Instant