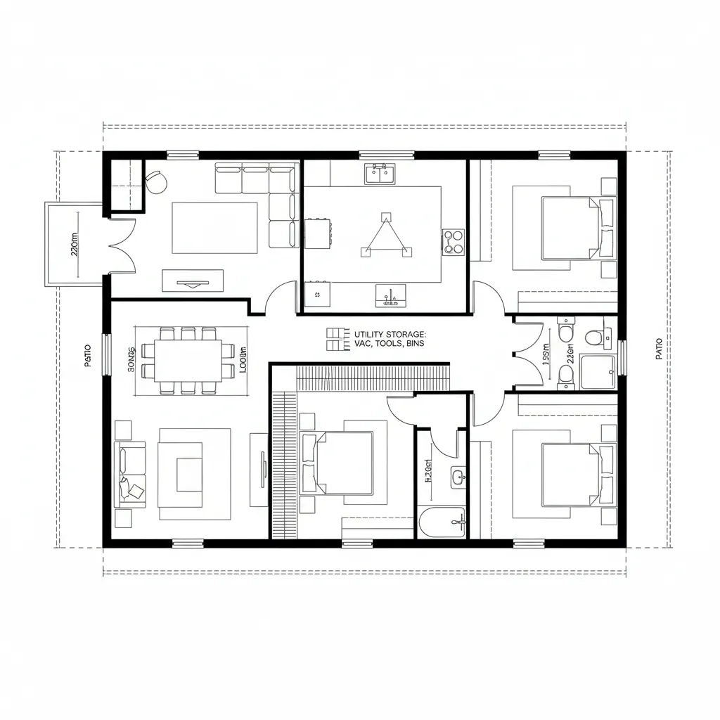
4-Bedroom Double Wide: A Future-Ready Blueprint: Designing a double-wide as a living interface for multi-threaded family lifeOrion HaleDec 15, 2025Table of ContentsPerimeter-Stacked Quartet + Central CommonsSplit-Primary with Flex LabGallery Spine + Pocket Courtyard IllusionFinal TakeawayTable of ContentsPerimeter-Stacked Quartet + Central CommonsSplit-Primary with Flex LabGallery Spine + Pocket Courtyard IllusionFinal TakeawayFree floor plannerEasily turn your PDF floor plans into 3D with AI-generated home layouts.Convert Now – Free & InstantThe future keeps pressing closer, while today’s households juggle remote work, caregiving, and rising costs inside rigid shells. Data from NAHB shows multi-generational and flex-space demand steadily climbing, and I read that as a signal: compile homes like software. In that spirit, I frame 4 bedroom double wide mobile home floor plans as early code for tomorrow’s routines—optimized, not oversized—powered by a spatial reasoning toolkit that treats every wall as an instruction.Perimeter-Stacked Quartet + Central CommonsDesign Logic:Four bedrooms pin the perimeter like corner nodes, insulating a luminous center that becomes the operating system: kitchen-dining-living as one adaptive kernel.Flow:Entry → drop zone → open kitchen island → dining rail → lounge; bedrooms branch like subroutines off the main thread, minimizing collisions.Sightlines:From the entry you read horizon lines through glazing; island to TV wall is primary, with cross-views to kids’ rooms for passive supervision.Storage:Continuous pantry wall, seat-height credenza, and two deep hallway closets act as tiered cache—hot, warm, cold data.Furniture Fit:13'–14' living bay supports a 96" sofa + 2 chairs; 42" island clearances run like API limits for motion without lag.Verdict:This plan stabilizes daily bandwidth: noise stays at edges, collaboration in the core, future appliances and screens slot in without refactoring.save pinSplit-Primary with Flex LabDesign Logic:Primary suite anchors one endcap; three bedrooms plus a flex room form the other, creating privacy parity for multi-gen or hybrid work.Flow:Side entry → mud bench → flex lab → kitchen spine; guests route to public zones, night paths tunnel quietly to suites.Sightlines:Oblique kitchen-to-flex visibility allows soft monitoring; primary suite severs direct lines for calm, like a muted UI layer.Storage:Dual-entry laundry with linen tower, bed-to-ceiling wardrobes, and under-window drawers keep surfaces de-fragmented.Furniture Fit:Primary takes a king + 24" nightstands; flex lab fits a 60" desk + fold-down panel bed, toggling modes in seconds.Verdict:The split logic anticipates shifting roles—office today, nursery tomorrow—without migrating walls or breaking the build.save pinGallery Spine + Pocket Courtyard IllusionDesign Logic:A daylight gallery runs midline, flanked by four rooms; slender side patios mirror a pocket courtyard effect within double-wide limits.Flow:Front porch → gallery → nodes: kitchen, lounge, bedrooms; circulation is linear like a command line—no dead branches.Sightlines:Clerestories along the gallery stack layers of depth; door alignments create UX-like breadcrumbs that calm navigation.Storage:Gallery millwork wall with sliding panels hides a household server: vac dock, utility tools, seasonal bins—high-capacity cache.Furniture Fit:Dining niche clears 8-seat table (36" x 84"); living accepts a sectional within a 12' module, leaving 36" walk contours.Verdict:This spine lends museum quiet to family chaos, scaling from weekday sprint to weekend hosting without visual noise.save pinFinal Takeaway4 bedroom double wide mobile home floor plans aren’t just layouts; they’re firmware for domestic bandwidth, compressing noise while unlocking collaboration. Variants like split-primary configurations and gallery spines show how a manufactured footprint can act like adaptive code. In my experience, the smartest homes of the future won’t be larger—only more intentional, and I keep designing them that way.Convert Now – Free & InstantPlease check with customer service before testing new feature.Free floor plannerEasily turn your PDF floor plans into 3D with AI-generated home layouts.Convert Now – Free & Instant