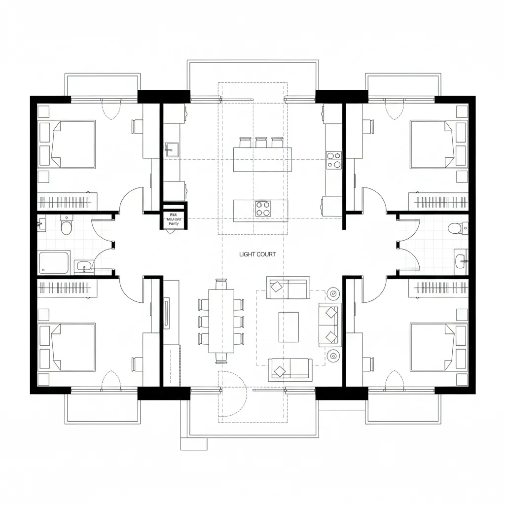
4-Bedroom Split Floor Plan, Composed for Future Living: A designer’s view of separation, flow, and quiet bandwidth in family lifeEchelon Field ArchitectDec 10, 2025Table of ContentsFront–Back Split with Central SpinePrimary–Secondary Wings with Courtyard BufferSplit Plan with Flex Lab and Dual EntriesFinal TakeawayTable of ContentsFront–Back Split with Central SpinePrimary–Secondary Wings with Courtyard BufferSplit Plan with Flex Lab and Dual EntriesFinal TakeawayFree floor plannerEasily turn your PDF floor plans into 3D with AI-generated home layouts.Convert Now – Free & InstantFuture living is starting to demand more autonomy and softer thresholds, while today’s households wrestle with noise, privacy, and the constant collision of routines. According to NAHB data, buyers continue to favor layouts that buffer primary suites from secondary bedrooms—signals that a split configuration isn’t a trend but an interface. I read the 4 bedroom split floor plan as a near-future operating system for domestic bandwidth, where rooms negotiate attention like apps in parallel threads. spatial reasoning toolkit feels relevant here: I use it mentally when composing separations that still behave as a whole.Front–Back Split with Central SpineDesign Logic:Primary suite anchors the quiet rear; children/guests live forward, buffered by a central circulation spine. This matches future needs for asynchronous schedules.Flow:Entry → shared hub → branching corridors; like a command sequence routing packets to secure domains without cross-talk.Sightlines:Diagonal views from kitchen to living keep cohesion, while corridors bend sight to protect sleep nodes.Storage:Hall linen banks, mudroom lockers, rear wall wardrobes—cache layers sized for daily throughput and seasonal archives.Furniture Fit:Living room at 14'×18' accepts sectional + media wall; primary at 12'×15' keeps king bed clearances; kids’ rooms at 10'×11' respect desk API.Verdict:This spine-based split sustains multi-rhythm families; five years on, it will still temper noise while preserving shared bandwidth.save pinPrimary–Secondary Wings with Courtyard BufferDesign Logic:Two wings separated by a light court give psychological distance without emotional disconnection—a future-forward privacy pattern.Flow:Kitchen as router; outdoor court is the latency break; movement arcs around light, not walls, reducing friction in daily sequences.Sightlines:Glazing frames long axial views to greenery; bedrooms hold short, controlled vistas, layering UI from public to intimate.Storage:Wing-level utility rooms, deep pantry, built-in bench caches; hierarchy mirrors RAM (quick) and cold storage (slow).Furniture Fit:Dining at 10'×14' holds extendable table; courtyard supports 10'×10' lounge; bedrooms maintain 30" clearances as protocol.Verdict:The court mediates sound and mood; I expect calmer mornings and a steady evening cadence as the layout trains behavior.save pinSplit Plan with Flex Lab and Dual EntriesDesign Logic:Two entries segment public reception from family traffic; a flex room near center is the adaptable lab for work, study, or care cycles.Flow:Guest entry → formal living; family entry → mudroom → kitchen core; threads stay parallel yet sync at the hub.Sightlines:Controlled cross-view from hub to flex room allows supervision without surveillance; long views terminate at art or light, not doors.Storage:Double-coat caches, wall-integrated shelving in flex, garage mezzanine for bulk; clean data layers prevent visual overload.Furniture Fit:Flex at 11'×12' supports height-adjustable desk + sleeper; living holds 9' sofa + reading alcove; primary suite fits king + lounge node.Verdict:This split feels like a resilient protocol; over the next five years, it absorbs lifestyle updates without refactoring the whole plan.save pinFinal TakeawayThe 4 bedroom split floor plan is less about walls and more about calibrating attention across parallel lives. Its variations—wing separation, central spine, dual-entry logic—offer privacy without isolation, a necessary condition for the near-future home. In my experience, the smartest layouts act like well-written code: lean, intentional, and able to scale as family complexity grows. And in my work, I keep seeing how small spatial decisions quietly rewrite the way people live.Convert Now – Free & InstantPlease check with customer service before testing new feature.Free floor plannerEasily turn your PDF floor plans into 3D with AI-generated home layouts.Convert Now – Free & Instant