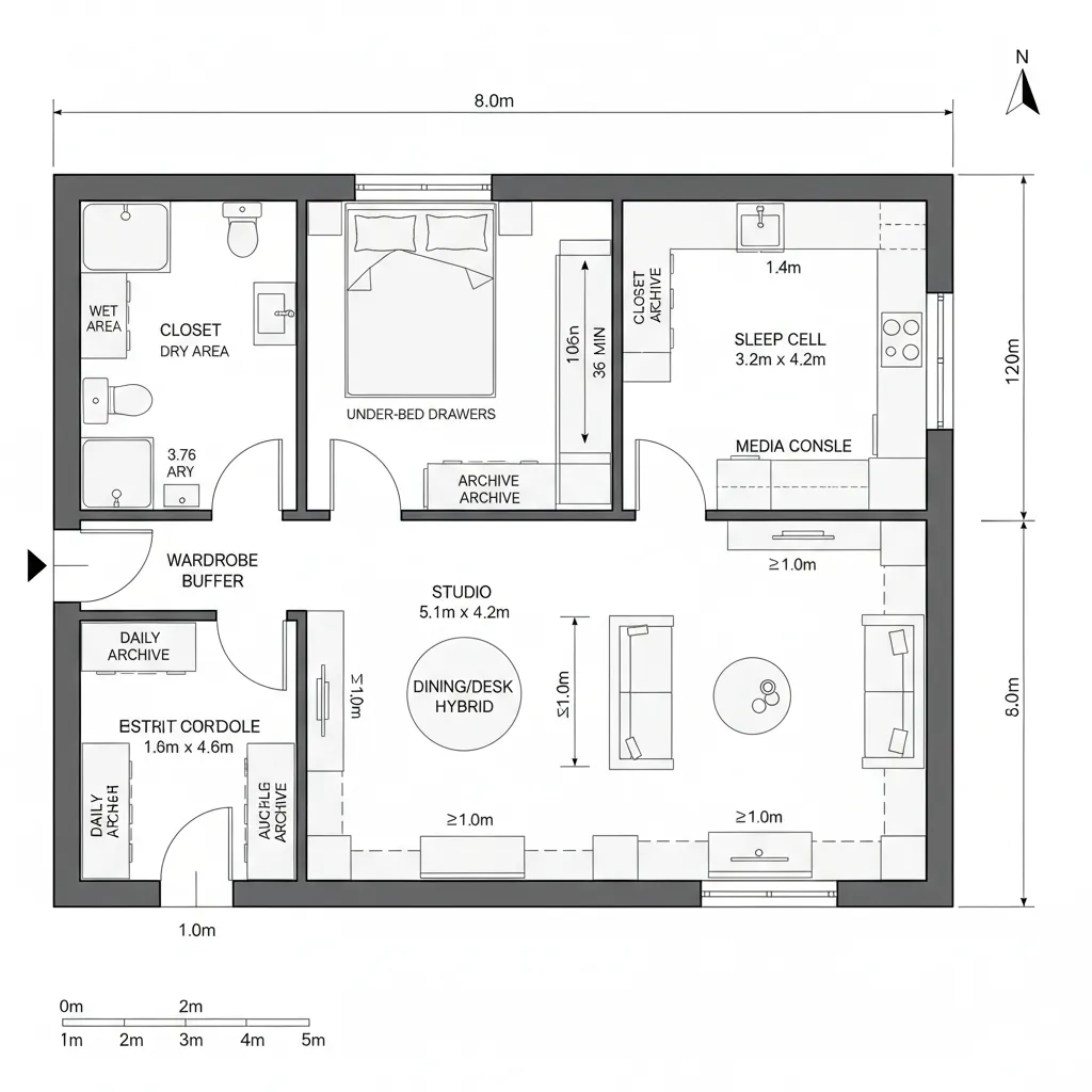
440 sq ft Floor Plan, Rendered for the Near Future: A compact interface where movement, light, and storage compile into a livable programIves Calder, Residential FuturistDec 16, 2025Table of ContentsLinear Studio SpineDiagonal Daylight CrossMicro One-Bed HybridFinal TakeawayTable of ContentsLinear Studio SpineDiagonal Daylight CrossMicro One-Bed HybridFinal TakeawayFree floor plannerEasily turn your PDF floor plans into 3D with AI-generated home layouts.Convert Now – Free & InstantThe future lifestyle keeps compressing into intentional square feet while current residents struggle with clutter and fragmented routines; I design as if the next five years are already pressing on the walls. Industry signals echo this: Zillow data shows small homes with smart layouts retain desirability even as buyers trade size for location. In this 440 sq ft floor plan, I treat the unit like early code for tomorrow’s living—clean instructions, precise nodes, and no wasted bandwidth. spatial reasoning toolkitLinear Studio SpineDesign Logic: A single loaded wall runs the program: kitchen, storage, utilities align as a spine so the open bay stays flexible for sleep and work—minimal code, maximal output.Flow: Entry → utility niche → galley kitchen → workstation → lounge → sleep; the sequence reads left to right like an interface you can scroll with your feet.Sightlines: From door to window, you see depth, not obstacles; tall storage hugs the spine, keeping the central axis visually low-latency.Storage: Full-height cabinets, a toe-kick drawer array, and a ceiling shelf rail act as a cache—fast access for daily items, cold storage for seasonal gear.Furniture Fit: A 72" sofa, 24" deep desk, and a queen platform with 12" under-bed clearance match the API limits of 440 sq ft without UI clutter.Verdict: This spine-in-open-bay will age well as remote work normalizes; the bay morphs by instruction set—work, host, sleep—without re-compiling the plan.save pinDiagonal Daylight CrossDesign Logic: Cut the rectangle with a diagonal visual corridor from kitchen window to living window, turning a small shell into a light router and mood stabilizer.Flow: Entry anchors at a low-light node, then the path angles to the brightest corner; kitchen island pivots as a command point for meals and conversations.Sightlines: Diagonal views slice through the volume, stacking information—prep, dining, lounge—so the eye understands hierarchy like a UI breadcrumb.Storage: Corner pantry plus faceted media wall increases capacity; angled shelves prevent dead zones, acting as predictive cache rather than bulk dump.Furniture Fit: A 36" deep island with two stools, compact lounge chairs at 30" footprint, and a fold-down table keep traffic at 36" lanes.Verdict: When daylight becomes the main interface, small rooms feel generous; five years out, circadian-friendly routing reduces energy and decision fatigue.save pinMicro One-Bed HybridDesign Logic: Split the 440 sq ft floor plan into two APIs—private sleep cell and public studio—via a pocket door, enabling behavioral compilation without sound leaks.Flow: Entry → wardrobe buffer → studio zone → pocket-door → bedroom cell; guests never access the private cache, keeping the system stable.Sightlines: Low storage lines the studio, taller mass sits behind the pocket door; visual bandwidth prioritizes social tasks, hides rest-state processes.Storage: 18" deep wardrobes and bed-integrated drawers create tiered memory: hot cache for daily wear, cold archive for luggage and linens.Furniture Fit: Bedroom fits a queen at 60" x 80" with 30" side aisles; studio holds a 48" dining/desk hybrid and a 32" media console—precise, not crowded.Verdict: This split respects privacy while keeping the public interface agile; it anticipates guests, zoom calls, and quiet Sundays without re-routing the plan.save pinFinal TakeawayA 440 sq ft floor plan lives or dies by how cleanly the program compiles—movement, light, and storage acting like code paths that don’t crash. Small apartment layout thinking and micro-unit planning are not compromises but future-facing scripts. For compact living strategies and urban studio optimization, the smartest outcomes emerge when the interface is intentional. In my experience, the homes that feel largest are the ones with the fewest instructions done exactly right.Convert Now – Free & InstantPlease check with customer service before testing new feature.Free floor plannerEasily turn your PDF floor plans into 3D with AI-generated home layouts.Convert Now – Free & Instant