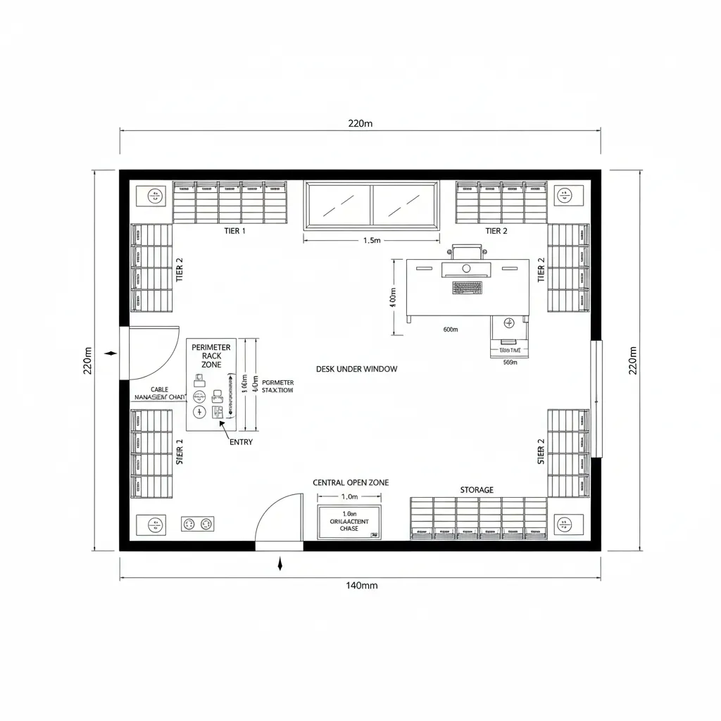
9×14 Office Floor Plan, Composed for Future Workflows: A compact workspace that treats space as an interface for focus, flow, and quiet powerEchelon WilderDec 11, 2025Table of ContentsLong Wall Linear: Focus RailDual-Node: Collaboration + SoloPerimeter Grid: Equipment + LightFinal TakeawayTable of ContentsLong Wall Linear Focus RailDual-Node Collaboration + SoloPerimeter Grid Equipment + LightFinal TakeawayFree floor plannerEasily turn your PDF floor plans into 3D with AI-generated home layouts.Convert Now – Free & InstantThe future is leaning into precision, while current home offices still drown in cable clutter and acoustic spill. Industry data echoes the shift: AIA reports ongoing demand for adaptive work zones and flexible planning inside residential footprints. In that light, the 9 by 14 feet office floor plan becomes an early codebase for how we’ll work at home—compact, intentional, and quietly scalable. The future is pressing close, and I’m already reading its layout through this spatial reasoning toolkit.Long Wall Linear: Focus RailDesign Logic: A single 14-foot run becomes the spine: desk, task shelving, and acoustic panels align to prioritize deep work in a narrow bandwidth.Flow: Entry → dock bag → sit/stand station → secondary monitor shelf → print/output—like a compiled task queue with minimal branching.Sightlines: Eyes land on a calm wall; peripheral view holds reference boards, keeping cognitive load low and hierarchy clean.Storage: Full-height cabinets at one end act as cache; shallow drawers along the rail manage daily packets without overflow.Furniture Fit: 24–30" desk depth respects ergonomic API; a 60–72" span balances screen distance and arm reach inside a 9-foot width.Verdict: This rail layout preps five years of hybrid rhythms—focused mornings, quick handoffs, and quiet evenings without visual noise.save pinDual-Node: Collaboration + SoloDesign Logic: Two nodes—workstation and small meeting nook—split the 9×14 into parallel threads for solo focus and soft collaboration.Flow: Entry → workstation → pivot to 2-seat round table → whiteboard → back to station; a loop that minimizes context switching.Sightlines: Diagonal glance connects desk to board; the seating nook sits off-axis, so conversation doesn’t flood the primary UI.Storage: Corner tower stores shared tools; under-bench cache keeps personal items sorted by frequency and versioning.Furniture Fit: 36" clearance between nodes preserves movement latency; a 30–36" table anchors quick syncs without stealing bandwidth.Verdict: This two-node logic anticipates client calls, micro-workshops, and asynchronous teamwork inside a compact chassis.save pinPerimeter Grid: Equipment + LightDesign Logic: The perimeter handles equipment, leaving a bright center—a grid that routes power, acoustics, and light like signal management.Flow: Entry → perimeter rack → desk set under window → central open zone → storage returns; decisions move with low friction.Sightlines: Window becomes the primary frame; gear stays peripheral, so the visual stack prioritizes daylight and clarity.Storage: Wall-mounted rails and modular bins act as scalable cache; labeled tiers prevent version drift and tool hunting.Furniture Fit: A 48–60" desk centered on the short wall keeps symmetry; slim rolling file fits under, maintaining agile reach.Verdict: The grid anticipates evolving devices, keeping the core free—ready for new interfaces without remodeling the brain.save pinFinal TakeawayA 9 by 14 feet office floor plan is a disciplined interface, not a compromise. Its syntax—clear flow, controlled sightlines, and intentional storage—translates hybrid work into a readable code. Compact workspace design and small office layout strategies will keep accelerating as tools and rituals fragment. In my experience, the smartest rooms aren’t bigger; they’re composed like precise software, and what I keep seeing in my projects is how measured choices quietly change how people work.Convert Now – Free & InstantPlease check with customer service before testing new feature.Free floor plannerEasily turn your PDF floor plans into 3D with AI-generated home layouts.Convert Now – Free & Instant