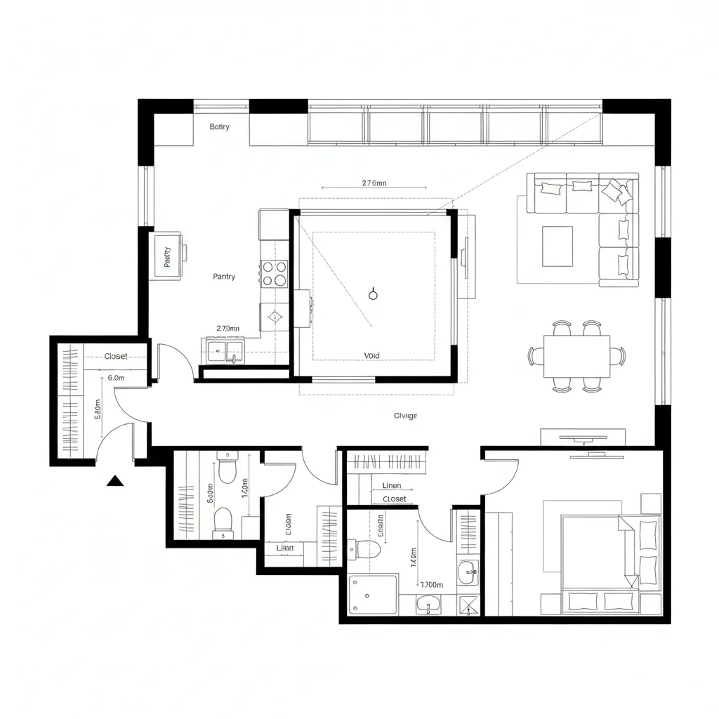
AutoCAD Floor Plan, Reimagined: Beginner paths into spatial code for future livingNorth Node StudioDec 11, 2025Table of ContentsLinear Studio StripCourtyard Loop One-BedSplit-Core Two-Bed HybridFinal TakeawayTable of ContentsLinear Studio StripCourtyard Loop One-BedSplit-Core Two-Bed HybridFinal TakeawayFree floor plannerEasily turn your PDF floor plans into 3D with AI-generated home layouts.Convert Now – Free & InstantThe future keeps leaning in while my clients still wrestle with cramped hallways, noisy zones, and storage debt; I treat an AutoCAD floor plan tutorial for beginners like a primer for tomorrow’s living interface. According to NAHB surveys, more than half of homeowners rank functional flow over square footage—proof that the plan is the lifestyle. I see the drawing as code that will compile into daily rituals, and the gridlines already whisper what’s next: spatial reasoning toolkit.Linear Studio StripDesign Logic: A single loaded wall carries kitchen, storage, and utilities, freeing a clear activity strip; future small-footprint living needs bandwidth where light and movement align.Flow: Entry → prep zone → lounge → sleep niche, like a lean instruction sequence minimizing context switching.Sightlines: Long axial view from door to window, UI-tiered: messy functions masked behind the service wall, clean horizon ahead.Storage: Tall pantry, overheads, toe-kick drawers—cache close to the process to reduce fetch time.Furniture Fit: 18–24" depth modules, a 72" sofa, queen platform with 60" clearance—APIs that keep the channel unclogged.Verdict: It reads like a lightweight script built for remote work, micro-hosting, and low-friction resets across the next five years.save pinCourtyard Loop One-BedDesign Logic: Rooms orbit a light well; the plan anticipates bio-psycho comfort and post-noise realities, replacing corridors with connective nodes.Flow: Entry → kitchen node → living loop → bedroom → bath, a cyclic routine that prevents dead ends and boosts daily uptime.Sightlines: Layered diagonals to the void, so the UI prioritizes daylight as primary data, privacy as secondary panes.Storage: Perimeter built-ins act like ring buffers—coats at entry, pantry near prep, linens by bath, no overflow.Furniture Fit: 30" circulation margins around a 36" table; a 9' sectional aligns with glazing; bed centers on a quiet axis.Verdict: This loop architecture tolerates future devices and hybrid work, keeping attention latency low and care rituals close.save pinSplit-Core Two-Bed HybridDesign Logic: A central service core partitions social and sleep domains; future families need parallel processing without crosstalk.Flow: Entry → core (storage, laundry) → left social stack → right bedroom stack—threads run concurrently but sync at dining.Sightlines: Cross-views anchor to windows, while the core becomes a muted background layer—UI foreground stays human-centric.Storage: Double-sided closets act as shared caches; laundry towers and utility bays reduce I/O overhead.Furniture Fit: 42" dining clearance, 24" counter depths, 36" door swings; kid room APIs: bunk or twin with 30" play lane.Verdict: Built for evolving schedules, it absorbs remote school, quiet focus, and evening decompression without packet loss.save pinFinal TakeawayAn AutoCAD floor plan tutorial for beginners is not just drafting; it’s teaching your home to think in sequences. As you draw, use semantic variants—layout logic, circulation paths, storage hierarchies—to encode a lifestyle that stretches beyond the present. Long-tail moves like beginner drafting tips and scalable block libraries become future-proofing. In my experience, the smartest homes of the future won’t be larger—only more intentional.Convert Now – Free & InstantPlease check with customer service before testing new feature.Free floor plannerEasily turn your PDF floor plans into 3D with AI-generated home layouts.Convert Now – Free & Instant