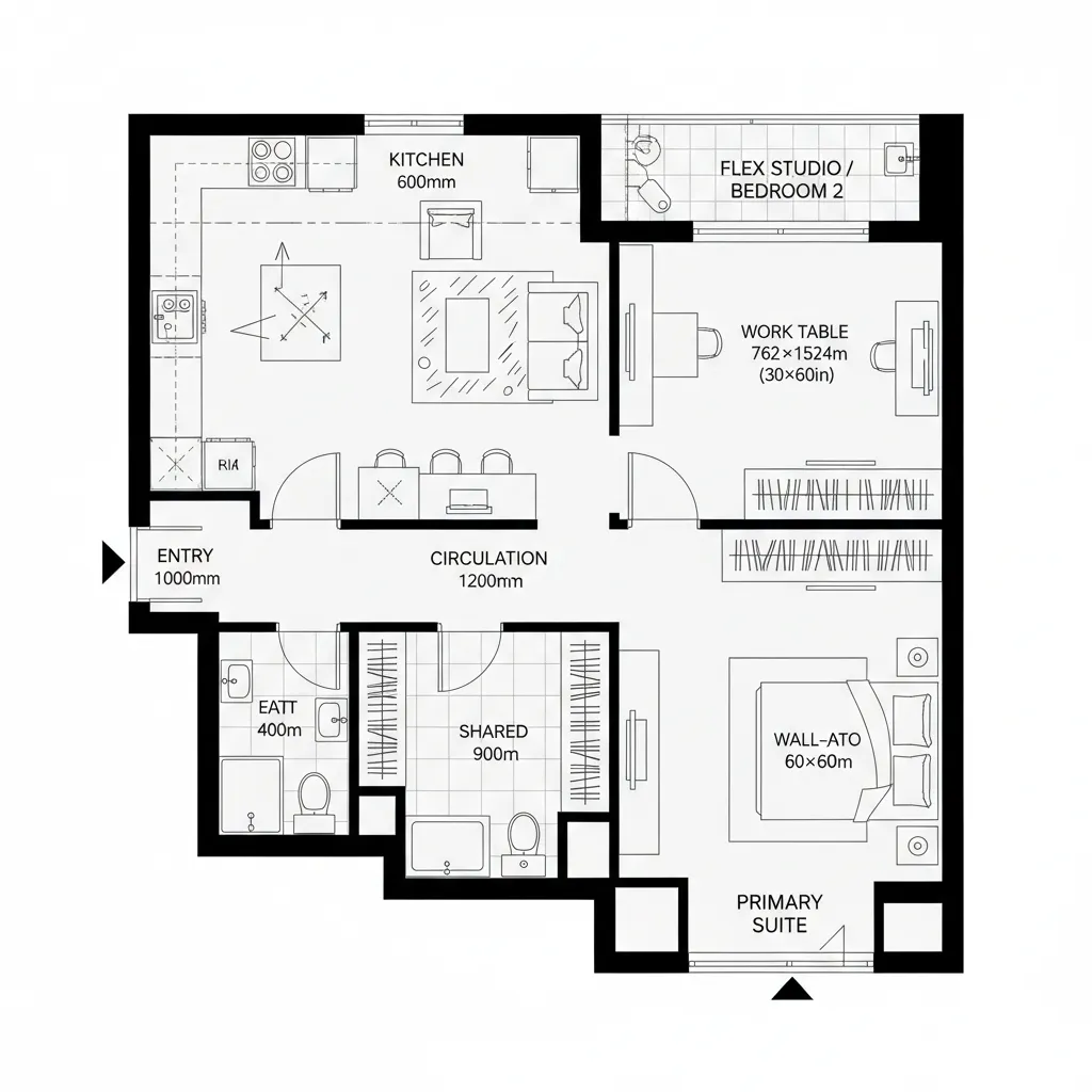
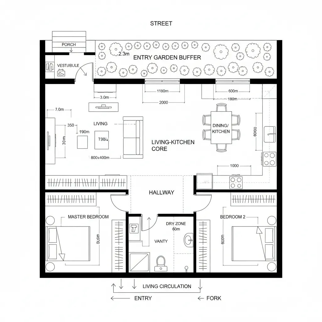
Best 2 BHK Ground Floor Plan, Reimagined: A future-forward interface for everyday living on the first layer of the homeGlass Atlas StudioDec 11, 2025Table of ContentsGarden-Buffer Entry with Split BedroomsCourtyard Spine with Semi-Open KitchenFront Flex Room + Rear Primary SuiteFinal TakeawayTable of ContentsGarden-Buffer Entry with Split BedroomsCourtyard Spine with Semi-Open KitchenFront Flex Room + Rear Primary SuiteFinal TakeawayFree floor plannerEasily turn your PDF floor plans into 3D with AI-generated home layouts.Convert Now – Free & InstantThe future lifestyle is pressing closer while current ground-floor pain points—privacy at street edge, noise bleed, and fragmented storage—still slow people down. Industry surveys keep showing demand shifting toward flexible two-bedroom footprints; NAHB reports buyers increasingly favor adaptable plans with multi-use rooms. So when I map a best 2 BHK ground floor plan, I treat it as a compiled language for tomorrow’s routines, not just today’s walls. spatial reasoning toolkitGarden-Buffer Entry with Split BedroomsDesign Logic:Entry garden acts as a privacy firewall; split bedrooms create acoustic zones for hybrid work and sleep. Future living pushes separation of quiet nodes and social bandwidth.Flow:Sequence: porch → vestibule → living-kitchen core → corridor fork → beds at opposite ends → bath centrally cached.Sightlines:Long axis sight runs from door to garden window, UI layers reveal social core first, private layers masked by offset corridors.Storage:Wall-depth pantry and corridor cabinets function as cache; shoe/coat buffer at vestibule, linen hub near bath.Furniture Fit:Compact sofa (78 in), 6-seat drop-leaf table, queen beds with 30 in clear each side; API limits set for robotic vacuum routes.Verdict:This plan anticipates five years of hybrid schedules—quiet, clean circulations, and a resilient buffer against street-level noise.save pinCourtyard Spine with Semi-Open KitchenDesign Logic:Micro-courtyard becomes the thermal and social spine; semi-open kitchen moderates smells while keeping collaboration bandwidth high.Flow:Front door → gallery → kitchen edge → courtyard → living loop → bedrooms at rear → shared bath on node where flows intersect.Sightlines:Layered views: filtered light through courtyard screens, then living; bedrooms remain off-axis like hidden menus.Storage:Under-bench courtyard lockers, tall kitchen larder, bedhead niches; storage acts like tiered cache minimizing fetch times.Furniture Fit:Sectional with chaise (96 in), island 36×72 in, platform beds with integrated drawers; tolerances keep pathways 36 in minimum.Verdict:A porous yet controlled interface: air, light, and movement negotiate comfort without leaking privacy across the ground plane.save pinFront Flex Room + Rear Primary SuiteDesign Logic:Front bedroom flexes as studio or client-facing room; rear primary suite becomes the deep-focus node with garden adjacency for recovery.Flow:Entry → flex room → living core → kitchen hub → rear hall → primary suite → patio; loops avoid dead ends, like well-written code.Sightlines:Primary sees greenery first; visitors see flex room and living UI, private suite remains one click deeper behind hall.Storage:Dual-entry closet for flex room, pull-out pantry columns, rear wall-to-wall wardrobes; cache is distributed to reduce latency.Furniture Fit:Worktable 30×60 in in flex, king bed with 36 in clear path, slim console along hall; fit maintains future device docking zones.Verdict:This layout gives professional frontage and restorative back-end, ready for evolving work-life protocols on level one.save pinFinal TakeawayThe best 2 BHK ground floor plan is an interface, not a diagram; it must manage privacy, noise, and stored routines like clean code. Whether you call it a two-bedroom layout or a compact family unit, the ground level should orchestrate light, flow, and cache with intention. In my experience, the smartest homes of the future won’t be larger—only more intentional, and what I keep seeing in my projects is that small spatial decisions quietly rewrite daily life.Convert Now – Free & InstantPlease check with customer service before testing new feature.Free floor plannerEasily turn your PDF floor plans into 3D with AI-generated home layouts.Convert Now – Free & Instant