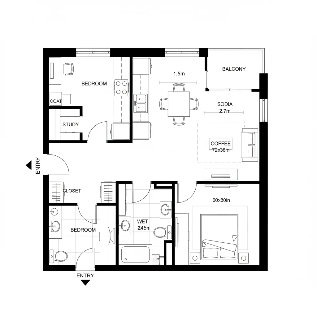
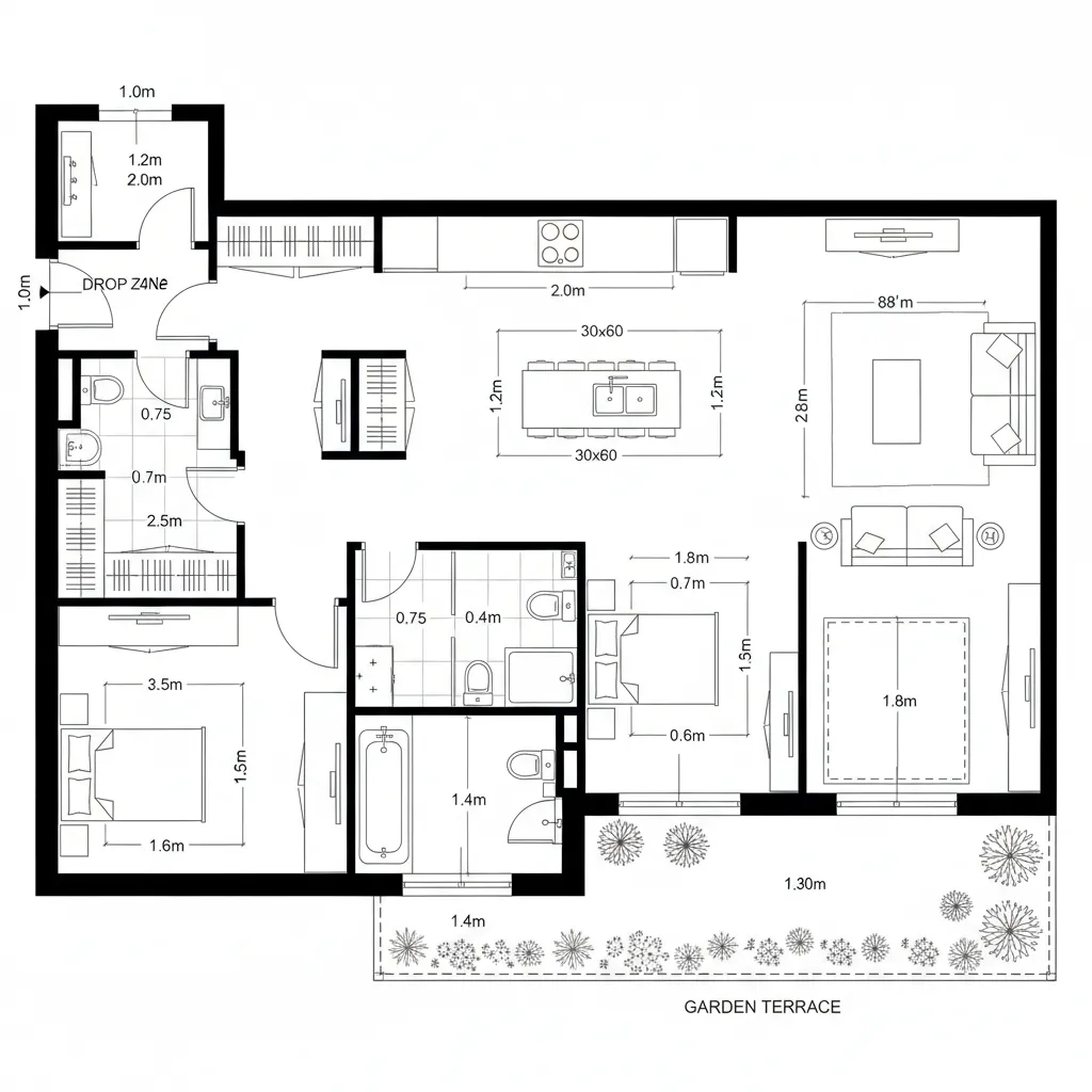
Brigade 7 Gardens: Interface Plans for Tomorrow’s Living: Reading the floor plan as a lifestyle operating system—flow, sightlines, and future-ready storage compiled into everyday rhythmsMarin Sera, AIADec 10, 2025Table of ContentsGarden-Edge 2-Bedroom LayoutCompact 1-Bedroom with Study NicheDual-Aspect 3-Bedroom Family PlanFinal TakeawayTable of ContentsGarden-Edge 2-Bedroom LayoutCompact 1-Bedroom with Study NicheDual-Aspect 3-Bedroom Family PlanFinal TakeawayFree floor plannerEasily turn your PDF floor plans into 3D with AI-generated home layouts.Convert Now – Free & InstantFuture living presses in while today’s residents wrestle with noise spill, storage drag, and fragmented flow. According to NAHB, more than half of buyers prioritize efficient circulation and flexible rooms—signals that the plan is becoming the operating system. In that light, the Brigade 7 Gardens floor plan reads like a proto-code for how we’ll live next: compact, adaptive, and negotiated between quiet and connection. spatial reasoning toolkit helps me see where the interface needs bandwidth.Garden-Edge 2-Bedroom LayoutDesign Logic:Perimeter living hugs the garden façade, letting light and greenery become the UI’s primary layer; bedrooms buffer the core for acoustic integrity.Flow:Entry → drop zone → open living-kitchen → terrace; a branch to private corridor → bath → bedrooms, minimizing cross-traffic like a clean event loop.Sightlines:Front door frames daylight across living to the terrace; kitchen island sets a mid-layer; secondary views terminate at garden nodes.Storage:Wall-depth pantry, corridor closets, bed-base drawers—cache close to use points, avoiding cold starts.Furniture Fit:Sofa 84–92 in, island 30×60 in, dining 36×60 in; beds queen/king with 30 in clear each side—APIs tuned to circulation bandwidth.Verdict:This plan prioritizes calm edges and active cores; five years out, it will still feel resilient to schedule shifts and hybrid work.save pinCompact 1-Bedroom with Study NicheDesign Logic:A single spine organizes cooking, working, and resting; the niche is a micro-node for focus without a full room tax.Flow:Entry → coat cache → galley kitchen → living → balcony; fork to pocketed study niche and bedroom; bath sits off the spine for guest privacy.Sightlines:Linear axis to daylight, with lateral glimpses to the niche; UI layers stack from public to private without leakage.Storage:Full-height utility wall, niche shelving, under-sofa trunks—fast access caches reduce friction in daily compile.Furniture Fit:Two-seat sofa 72–78 in, compact desk 24×48 in, queen bed with 28–30 in clearances; table 32×54 in keeps packet sizes small.Verdict:For solo living or a couple, the layout is deliberate code: every byte of space works, even when modes switch from cook to call to sleep.save pinDual-Aspect 3-Bedroom Family PlanDesign Logic:Dual exposures allocate priority to daylight and cross-vent; kids’ rooms form a cluster while the primary suite is sandboxed for quiet.Flow:Foyer → utility cache → great room → wrap kitchen → balcony; private corridor branches to two kids’ rooms + shared bath and primary suite with ensuite.Sightlines:Great room anchors long views; sightlines taper to play zone and then seal at sleep nodes—clear UI hierarchy to reduce cognitive load.Storage:Layered cache: entry wall, kitchen larder, corridor cabinets, deep wardrobes; seasonal bins stack high like long-term memory.Furniture Fit:Sectional 96–108 in, dining 40×72 in, kids’ beds twin with 24 in aisles, primary king with 32–36 in clears; island seating aligns with traffic packets.Verdict:As families iterate—homework, hosting, remote work—the plan’s bandwidth stays stable; future modes plug in without refactoring the shell.save pinFinal TakeawayThe Brigade 7 Gardens floor plan behaves like a living interface—flow, sightlines, and cache working together so routines feel seamless. Its variants, from a one-bedroom layout to three-bedroom configurations, anticipate hybrid work, shared family rhythms, and the need for quiet nodes. I believe the smartest homes of the future won’t be larger, only more intentional, and what I keep seeing in my projects is how tiny spatial decisions rewrite daily life.Convert Now – Free & InstantPlease check with customer service before testing new feature.Free floor plannerEasily turn your PDF floor plans into 3D with AI-generated home layouts.Convert Now – Free & Instant