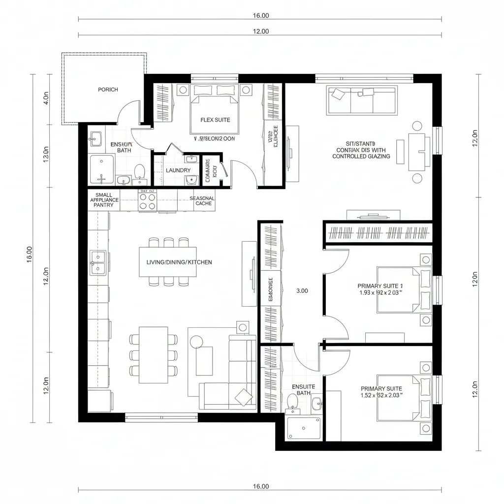
Bungalow 4-Bedroom Ground Floor Plan: A near-future interface for family bandwidth, privacy nodes, and daylight protocolsHorizon Weaver, AIADec 04, 2025Table of ContentsCourtyard Spine + Split Private RingFront Flex Suite + Rear Quiet ClusterDiagonal Daylight Sweep + Central Utility CoreFinal TakeawayTable of ContentsCourtyard Spine + Split Private RingFront Flex Suite + Rear Quiet ClusterDiagonal Daylight Sweep + Central Utility CoreFinal TakeawayFree floor plannerEasily turn your PDF floor plans into 3D with AI-generated home layouts.Convert Now – Free & InstantFuture living compresses work, care, and recovery into a single layer, while current homes still stutter on privacy, storage latency, and acoustic bleed. AIA reporting shows homeowners prioritizing flexible layouts and outdoor connections, yet the typical bungalow lags in modularity—so I treat the bungalow 4 bedroom ground floor plan as early code for tomorrow’s routines. The future is nearing, and I already see its outline in a spatial reasoning toolkit.We’re negotiating between multigenerational needs, hybrid work, and micro-rituals—Zillow’s data on shifting square-foot value toward functionality is the quiet signal. My clients ask for rooms that can hot-swap roles without losing calm; I design like an OS that boots in seconds, not minutes.Courtyard Spine + Split Private RingDesign Logic:Central courtyard acts as daylight server; bedrooms split into two pairs for generational privacy and noise partition. Future trends favor biophilic cores and adaptable perimeters.Flow:Entry → mud hub → great room → courtyard loop → bedroom rings → utilities; a circular runtime prevents dead-ends and social collisions at peak hours.Sightlines:Axial view from entry through glass to green; living framed, bedrooms veiled; transparency modulates like UI layers—hero, secondary, hidden.Storage:Perimeter millwork as long cache; bench niches near entry; linen towers between paired rooms for low-latency access.Furniture Fit:Great room anchors a 10–12 ft sofa span; bedrooms sized for queen API (60x80) plus desk node without corridor spill.Verdict:This turns daily cycles into a calm loop; in five years, the courtyard becomes the family’s circadian clock.save pinFront Flex Suite + Rear Quiet ClusterDesign Logic:Front bedroom as flex suite (office/guest) buffers street noise; three-room rear cluster preserves sleep integrity and care adjacency.Flow:Porch → flex suite → shared bath hub → kitchen core → rear hall → primary + two secondaries; tasks sequence like clean code.Sightlines:Oblique views from kitchen to rear garden; flex suite receives controlled visibility via pocket glazing—signal without distraction.Storage:Dual pantries (dry + small-appliance) reduce countertop noise; rear hall wardrobes as seasonal cache, zoning clutter away from the core.Furniture Fit:Dining table 36x84 aligns with kitchen island 42x96; flex room supports sit/stand desk and a compact sleeper without conflict.Verdict:Work-life toggles smoothly; in five years, the front suite absorbs telehealth and parent-on-call nights.save pinDiagonal Daylight Sweep + Central Utility CoreDesign Logic:Diagonal window strategy sweeps light across the plan; laundry/mech centralized to shorten service runs and future electrification upgrades.Flow:Garage drop → utility core → kitchen → living → diagonal patio; bedrooms ride the quieter edges like background processes.Sightlines:Primary view slices corner-to-corner; glazed corners stage movement as gentle notifications, not pop-ups.Storage:Under-window drawer plinths act as low-latency cache; attic hatch over utility core consolidates maintenance inventory.Furniture Fit:Corner sofa radiates to the diagonal; primary suite fits king API (76x80) with 36-inch breathing lanes; kids’ rooms accept bunk modules.Verdict:Light becomes the scheduler; in five years, utility centralization pays back in upgrades and quieter operation.save pinFinal TakeawayA bungalow 4 bedroom ground floor plan is not just shelter; it’s an interface where privacy nodes, daylight bandwidth, and storage latency determine daily performance. Variants like single-level family layouts and multi-generational bungalow plans prove that future-ready design is a choreography of flows, not more square feet. The smartest four-bedroom bungalows will feel modular, electric-ready, and emotionally quiet. In my experience, the homes that age best run like stable software—clean pathways, low noise, and room for updates.Convert Now – Free & InstantPlease check with customer service before testing new feature.Free floor plannerEasily turn your PDF floor plans into 3D with AI-generated home layouts.Convert Now – Free & Instant