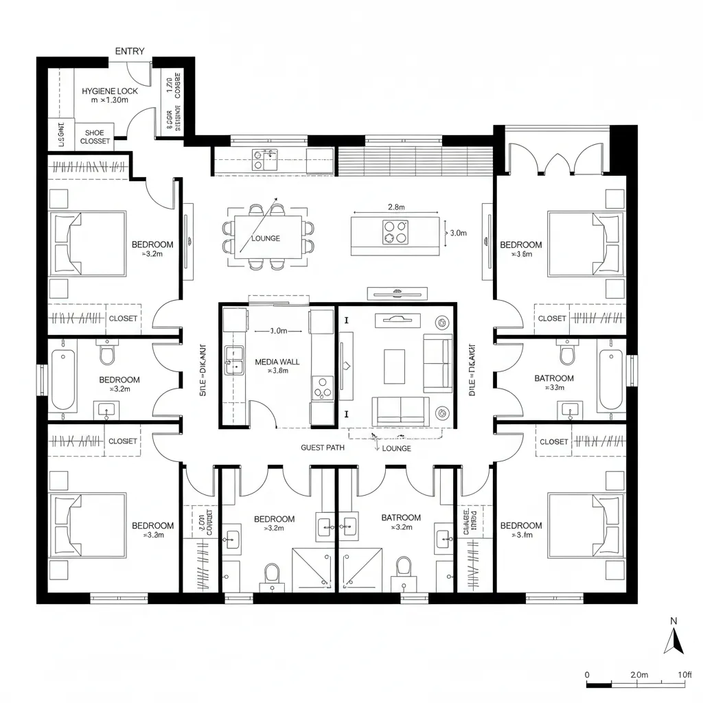
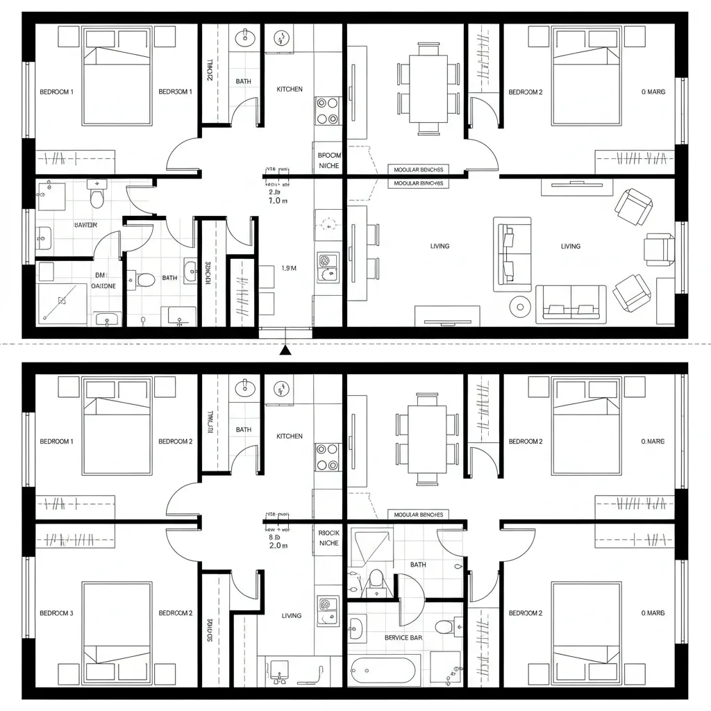
Co-living Apartment Plan, Written from the Near Future: Space as interface: compiling tomorrow’s communal rhythms into today’s floor platesAtlas QuinteroDec 04, 2025Table of ContentsHybrid Spine: Shared Core, Private SatellitesDual-Stack Suites with Wet-Wall EconomyMicro-Studio Pods within a Macro CommonsFinal TakeawayTable of ContentsHybrid Spine Shared Core, Private SatellitesDual-Stack Suites with Wet-Wall EconomyMicro-Studio Pods within a Macro CommonsFinal TakeawayFree floor plannerEasily turn your PDF floor plans into 3D with AI-generated home layouts.Convert Now – Free & InstantThe future keeps pressing in while today’s roommates still trip over mismatched routines and thin acoustic membranes. AIA’s latest home design insights note the persistent demand for flexible shared zones as households diversify. In that light, the co-living apartment plan reads like early code for a broader urban operating system. I anchor my layouts with a spatial reasoning toolkit so the interface feels inevitable, not improvised.Hybrid Spine: Shared Core, Private SatellitesDesign Logic: Centralized kitchen-lounge as a service hub; bedrooms orbit it like encrypted nodes—future-proof for shifting headcounts and remote work cycles.Flow: Entry → hygiene lock (coat/shoes) → kitchen chord → lounge → branch corridors to rooms; guest path never pierces private sectors.Sightlines: Diagonal views stitch kitchen to lounge while sight breaks hide doors; glass clerestories transmit light, not privacy leaks.Storage: Hallway linen + bulk pantry as shared cache; per-room micro-closets define personal data silos.Furniture Fit: 9–10 ft sofa module, 30-inch circulation lanes, island at 36x72 acting as command console.Verdict: The plan scales like software—new roommates plug in without refactoring the whole system.save pinDual-Stack Suites with Wet-Wall EconomyDesign Logic: Bathrooms and laundry stacked along a single wet wall compress cost and future maintenance, freeing bandwidth for larger commons.Flow: Service bar anchors one side; movement pins: cook → dine → decompress; private loops short-circuit to baths without crossing public RAM.Sightlines: Long axis frames the dining table as social dashboard; frosted sliders blur activity without broadcasting it.Storage: Over-refrigerator bins, toe-kick drawers, vertical broom niche—small caches boosting total throughput.Furniture Fit: 42-inch dining clearance, modular benches nesting under; queen beds with 24-inch egress both sides.Verdict: Tight utilities act like efficient code: less latency, more lived performance over five-year wear.save pinMicro-Studio Pods within a Macro CommonsDesign Logic: Each bedroom is a micro-studio—desk, wardrobe wall, mini-sink option—so co-living feels elective, not compulsory.Flow: Personal loop (sleep → work → wash) interfaces at one port with the grand room; collisions are designed, not accidental.Sightlines: From entry, layered transparency: greenery baffles, then lounge glow, then kitchen steel; bedrooms dissolve visually into textured planes.Storage: Shared gear library (vacuum, tools) plus labeled bulk bays; under-bed drawers as private cache lines.Furniture Fit: 24-inch deep workwall, 48-inch shared maker table, stackable chairs as flexible APIs for events.Verdict: Autonomy nested in community reduces friction—users stay longer because the system respects individual bandwidth.save pinFinal TakeawayA co-living apartment plan works when the shared core behaves like a reliable platform and the rooms act as autonomous apps. Variants—shared living layout, communal apartment design, roommate-friendly floor plan—are just different skins on the same operating principle. Over the next cycles, I expect long-tail formats like “bathroom-stack co-living” and “micro-suite with maker zone” to dominate leases. In my experience, the smartest communal homes aren’t bigger, they’re more intentional about interfaces.Convert Now – Free & InstantPlease check with customer service before testing new feature.Free floor plannerEasily turn your PDF floor plans into 3D with AI-generated home layouts.Convert Now – Free & Instant