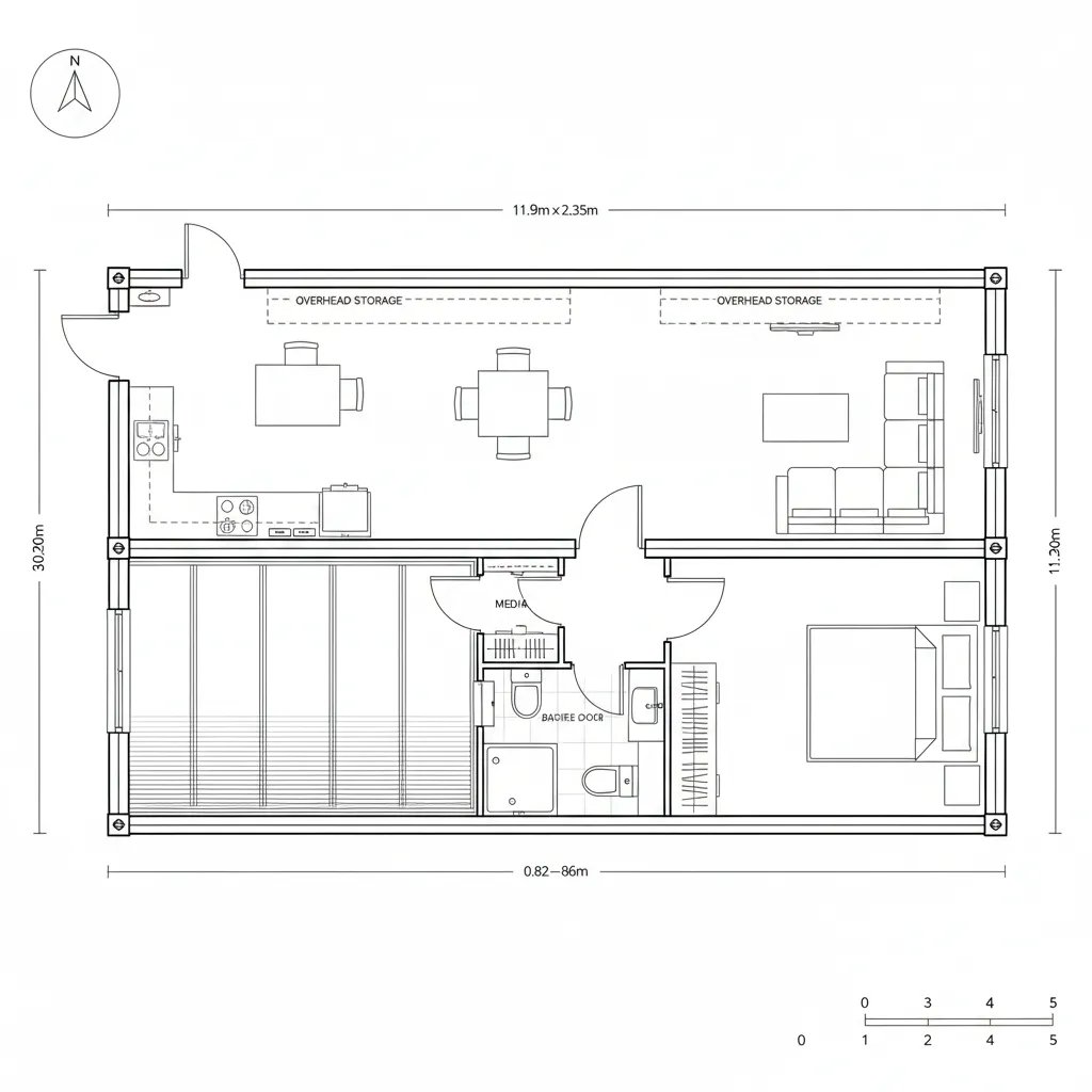
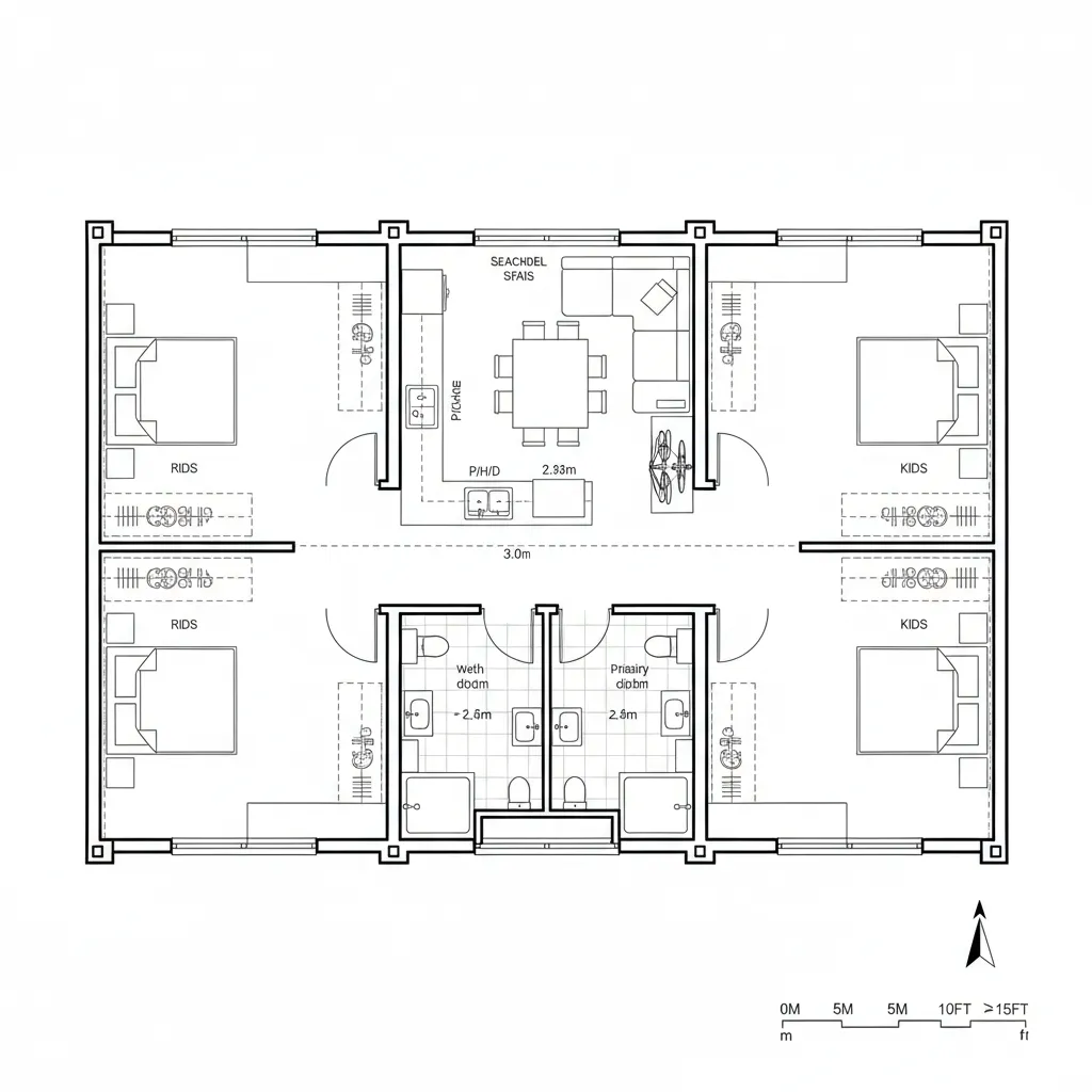
Container House Floor Plan, Compiled for Tomorrow: A futurist designer’s interface-first take on modular livingAtlas K. MorenoDec 03, 2025Table of ContentsSingle 40’ Module: Linear Day/Night SplitTwo-Module L-Shape: Micro-Courtyard InterfaceThree-Module Rail: Central Utility Spine## Final TakeawayTable of ContentsSingle 40’ Module Linear Day/Night SplitTwo-Module L-Shape Micro-Courtyard InterfaceThree-Module Rail Central Utility Spine## Final TakeawayFree floor plannerEasily turn your PDF floor plans into 3D with AI-generated home layouts.Convert Now – Free & InstantThe future presses closer each year, while today’s homes still buffer—energy waste, storage scarcity, zoning friction. AIA reports show residential remodels chasing resilience and flexibility, even as budgets tighten; the tension is a design signal. In that signal, a container house floor plan becomes an operating system for off‑grid readiness and urban infill agility—an early code for how we’ll actually live. I keep a quiet stack of tools like spatial reasoning toolkit in my workflow because the next five years demand higher-resolution choices.Single 40’ Module: Linear Day/Night SplitDesign Logic: One container, two temporal zones: public day up front, private night at the rear. Future patterns—remote work + micro-utilities—favor clean partitions to absorb schedule collisions.Flow: Entry → galley kitchen → flex desk/dining → lounge → pocket door → bath → bedroom; like a command line that never forks, minimizing context switches.Sightlines: Longitudinal axis keeps a panoramic datum; glazing at both ends yields a status bar of daylight and privacy gradients.Storage: Toe‑kick drawers, ceiling soffit rails, and bed‑base compartments act as caching tiers: hot items near the kitchen node, cold archive at the rear bulkhead.Furniture Fit: 24" deep galley, 30" work surface, a 72" sofa—API‑tight tolerances for circulation bandwidth at 32–34" clear.Verdict: For singles or digital nomads, this is a disciplined script—no lag, low energy, future‑proof with minimal plugins.save pinTwo-Module L-Shape: Micro-Courtyard InterfaceDesign Logic: Pivoting two containers into an L compiles outdoor space as a third room; climate extremes and biophilic needs make this geometry a resilience pattern.Flow: Entry at the elbow → kitchen hub → branch A to living, branch B to bedrooms; the elbow functions as a router, distributing tasks without collisions.Sightlines: Corner glazing frames the courtyard as a UI home screen; secondary views skim along corridors to keep peripheral awareness high.Storage: Corner pantry + corridor millwork create a RAID‑style redundancy: if one zone overflows, the other mirrors capacity without chaos.Furniture Fit: 36" dining round nests by the elbow, modular sofa segments snap to 80" runs, bedrooms accept 60" queen with 24" nightstands—precise but humane.Verdict: For small families, this plan balances intimacy and dispersion; the courtyard is a thermal buffer and social cache for the next climate loop.save pinThree-Module Rail: Central Utility SpineDesign Logic: Aligning three containers creates a service spine—plumbing, HVAC, data—so future upgrades are hot‑swappable. NAHB’s repair trends hint at the value of accessible guts.Flow: Entry → mud node → kitchen on spine → living bay → branch doors to bedrooms; like a trunk bus with clean addressable ports.Sightlines: Transverse cuts open cross‑vent paths; sightlines stagger so public zones read first, private zones fade like dimmed layers.Storage: Spine houses tall units, seasonal lofts above corridors, and vertical bike racks—tiered caches with predictable latency.Furniture Fit: 9–10' openings between modules allow a 96" table or a 7' sectional; kids’ rooms run 8' x 10' with bunk API clearances intact.Verdict: For growing households, this is a living OS with upgrade lanes—add solar, swap heat pump, recompile rooms without dismantling core logic.save pin## Final TakeawayA container house floor plan isn’t a fad; it’s a compact protocol for resilience, speed, and modular dignity. Variants—from single-module studios to L‑shaped courtyard rigs—translate future pressures into elegant 2D logic that scales in the real world. My clients read these plans like code, because their days demand clean flows, generous caches, and precise APIs. In my experience, the homes that last aren’t bigger—they’re more intentional, and what I keep seeing in my projects is that small spatial decisions quietly rewrite the way people live.Convert Now – Free & InstantPlease check with customer service before testing new feature.Free floor plannerEasily turn your PDF floor plans into 3D with AI-generated home layouts.Convert Now – Free & Instant