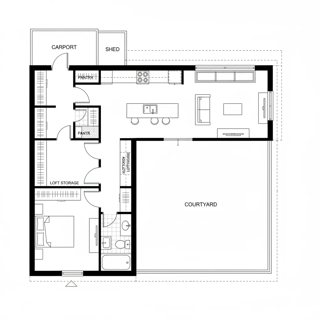
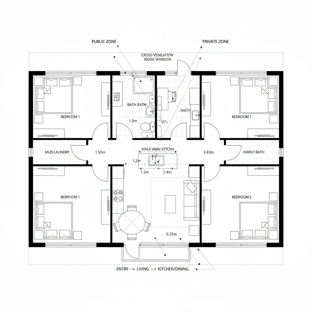
Country Cottage Layout, Future-Ready: A quiet rural interface tuned for tomorrow’s rhythmsFieldnotes of a Foresight PlannerDec 04, 2025Table of ContentsPorch-to-Hearth Spine (1-bed core)Split Gable + Flex Nook (2-bed family)Courtyard Elbow (L-shaped cottage)Final TakeawayTable of ContentsPorch-to-Hearth Spine (1-bed core)Split Gable + Flex Nook (2-bed family)Courtyard Elbow (L-shaped cottage)Final TakeawayFree floor plannerEasily turn your PDF floor plans into 3D with AI-generated home layouts.Convert Now – Free & InstantThe future of domestic life is arriving through quieter bandwidths: hybrid work, micro-hospitality, and carbon-thrifty routines meeting the stubborn pain points of storage chaos and fragmented flow. A recent NAHB insight notes growing preference for efficient footprints with flexible rooms—proof that country cottage layout thinking is shifting from quaint to coded. I treat the plan like firmware, where a spatial reasoning toolkit translates intent into rooms.In my clients’ cottages, I watch the friction between porch romance and daily logistics: mud, mail, pets, packages, remote calls, and pantry gravity. Country quiet is precious, but it needs routing tables. The country cottage layout becomes an interface—porous, legible, and prepped for future behaviors.Porch-to-Hearth Spine (1-bed core)Design Logic: A linear spine from screened porch to hearth compresses arrivals, then releases to living; it suits remote work drift, micro-gatherings, and off-grid rhythms where thermal zones matter.Flow: Porch → mud nook → pocket powder → kitchen galley → living hearth → bedroom; a clear instruction sequence minimizing dirt interrupts.Sightlines: Low, axial views from entry to fire, with side glances to garden; information layers widen as you move inward.Storage: Bench cubbies, broom slot, deep pantry as the main cache, attic hatch as cold archive; labeled like folders.Furniture Fit: 24–27″ counter modules, 36″ hearth clearance, a 72″ sofa API, drop-leaf table docking by window.Verdict: Stable in winter, breezy in summer; five years out, it still routes work calls and muddy boots without packet loss.save pinSplit Gable + Flex Nook (2-bed family)Design Logic: The gable split creates two quiet nodes with a shared processing core; future kids/guests or aging-in-place are compiled here.Flow: Side entry → mud-laundry stack → kitchen island hub → living → bedrooms diverge; decisions branch like a clean tree.Sightlines: Cross-venting diagonals from garden to ridge window; cooking zone keeps peripheral watch on play and porch.Storage: Window seat drawers, linen wall, under-stair vault; pantry doubles as small appliance garage—a latency reducer.Furniture Fit: 30″ pathways, 48″ island clearance, two 60″ queen bays, a 42″ round table tolerates leaf upgrades.Verdict: The plan stays legible as schedules fragment; in five years it flexes from nursery to studio without refactoring walls.save pinCourtyard Elbow (L-shaped cottage)Design Logic: An L wraps a small courtyard, making a microclimate that future-proofs daylight, privacy, and outdoor work sessions.Flow: Carport → covered stoop → galley → living elbow → courtyard → primary suite; loops encourage analog breaks.Sightlines: Layered UI: foreground herbs, mid-ground seating, far-field trees; glare managed by deep eaves like dark mode.Storage: Exterior shed as CDN for tools, interior wall of shallow cabinets as quick-access cache, hidden loft bins for bulk.Furniture Fit: Built-in banquette 18″ high, 24″ deep; 8′ slider frames the courtyard; 9′ sofa wall sets the media API.Verdict: Seasons reprogram usage; five years on, the courtyard reads as second living room and off-grid workspace.save pinFinal TakeawayA country cottage layout isn’t nostalgia—it’s a compact operating system where porch, pantry, and hearth negotiate the future. Variations like rural cabin plans, small farmhouse layouts, and L-shaped cottages handle hybrid work, micro-hosting, and low-energy living without growing the footprint. The smartest 2-bedroom cottage rhythms come from precise flow, cached storage, and furniture APIs tuned to human bandwidth. In my experience, when the plan is clear, the countryside feels closer and the future arrives calmly.Convert Now – Free & InstantPlease check with customer service before testing new feature.Free floor plannerEasily turn your PDF floor plans into 3D with AI-generated home layouts.Convert Now – Free & Instant