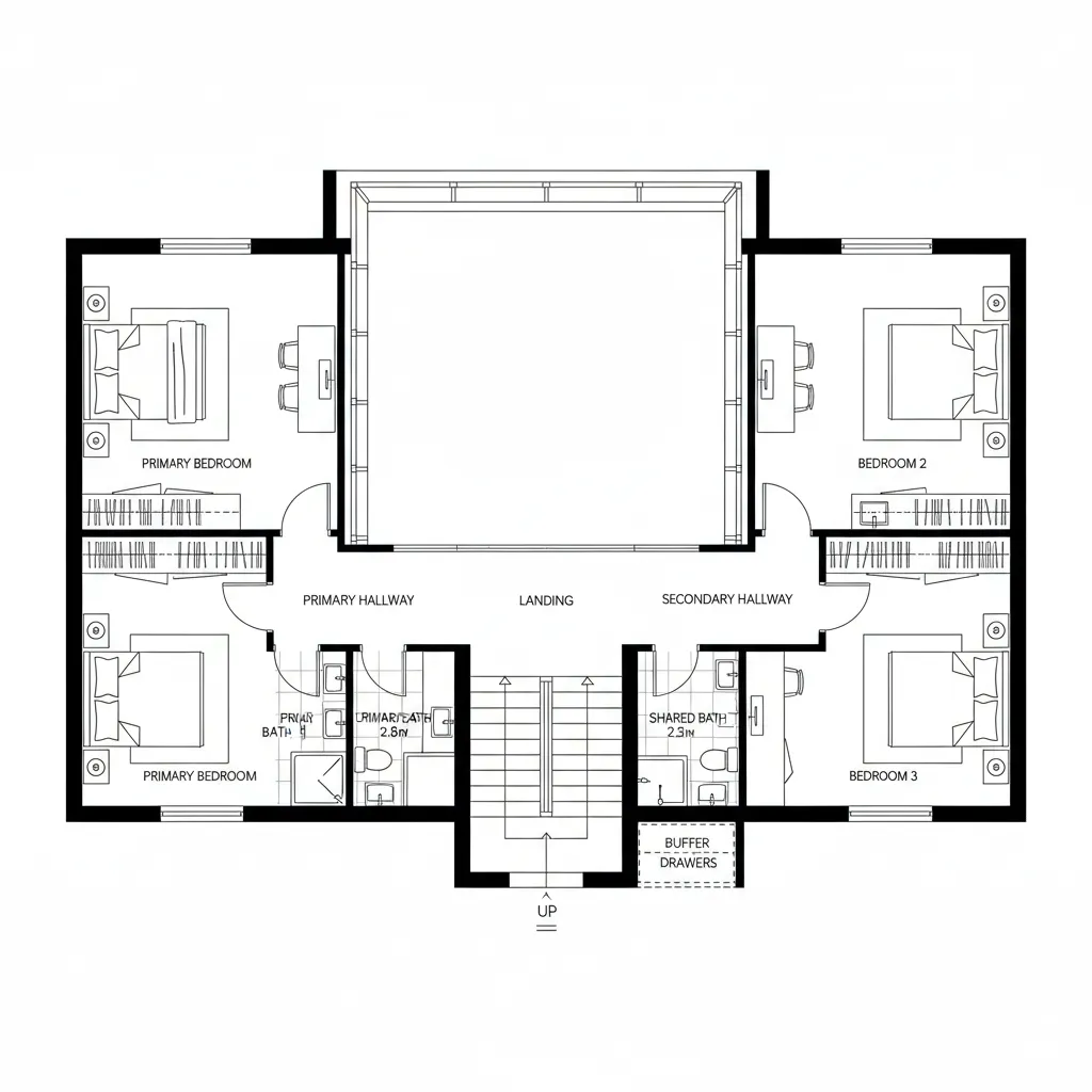
Courtyard Two-Floor Interface: A future-forward residential layout where the courtyard becomes the operating system for everyday lifeEvan Glass, Residential FuturistDec 12, 2025Table of ContentsGround-Level Ring with Permeable SpineSplit-Private Upper Level with Courtyard OverlookHybrid Courtyard: Wet/Dry Zones with Seasonal ProtocolsFinal TakeawayTable of ContentsGround-Level Ring with Permeable SpineSplit-Private Upper Level with Courtyard OverlookHybrid Courtyard Wet/Dry Zones with Seasonal ProtocolsFinal TakeawayFree floor plannerEasily turn your PDF floor plans into 3D with AI-generated home layouts.Convert Now – Free & InstantThe future lifestyle is pressing in while households still wrestle with fragmented light, noisy overlaps, and storage debt; I read AIA’s recent homeowner insights showing privacy and daylight are rising priorities, and it’s why I’m sketching a courtyard 2 floor house plan like a living kernel. spatial reasoning toolkit sits behind my thinking: the courtyard is the CPU, rooms are processes, and movement is compiled into calm. Courtyard-centered plans are the early code of more intentional living.Ground-Level Ring with Permeable SpineDesign Logic: A perimeter ring wraps the courtyard, giving each room a primary relationship to light and air—future lifestyles need restorative cores that throttle noise and amplify daylight.Flow: Entry → mud bench → gallery spine → kitchen/living → courtyard; guests peel off without crossing private threads, like clean function calls.Sightlines: Layered from gate to green void to living edge; visual bandwidth widens at nodes, compresses at thresholds for calm cognition.Storage: Floor-to-ceiling wall bays act as cache; deep pantry near the kitchen, concealed bench storage along the spine keeps packets close to use.Furniture Fit: Sofas float at 36–40 inches off glazing, dining set centered on a 9–10 ft axis to keep view corridors unbroken—API-safe dimensions for circulation.Verdict: Over five years, this ground loop will age like stable firmware: kids, guests, and daily resets orbit the courtyard without collisions.save pinSplit-Private Upper Level with Courtyard OverlookDesign Logic: Bedrooms bifurcate across the void—privacy scales with vertical separation while the courtyard remains the social kernel below.Flow: Stair → landing → primary suite left, secondary rooms right; laundry hub at center to reduce command latency between sleep and service routines.Sightlines: Overlook frames green and sky as a UI header; controlled cross-views avoid bedroom-to-bedroom exposure, preserving hierarchy.Storage: Built-in wardrobes 24–27 inches deep, linen cache at landing; under-stair drawers convert dead zones to fast-access buffers.Furniture Fit: Queen/king beds align on 30–36 inch side clearances; desks face the courtyard, using the void as cognitive bandwidth for focus.Verdict: The upper level becomes a quiet server rack—maintenance is simple, privacy predictable, and mornings sync to light rather than alarms.save pinHybrid Courtyard: Wet/Dry Zones with Seasonal ProtocolsDesign Logic: The courtyard runs mixed-mode: permeable planting beds and a hardscape deck; future climates demand flexible micro-environments that can recompile on demand.Flow: Kitchen hatch → dining deck → soft garden → side gate; storm days reroute to covered edge like a failover path.Sightlines: Low planters at 18–24 inches keep horizon clean; canopy frames the sky as a calm header, while glazing reflects subtle motion to signal occupancy.Storage: Outdoor lockers hide tools, cushions, and cables; an exterior wall niche acts as a seasonal cache so setups deploy in seconds.Furniture Fit: Modular tables in 30x60, lounge pieces on 9x12 rug grid; fire bowl positioned off-center to protect airflow lanes—protocol-safe spacing.Verdict: Over time, this courtyard behaves like adaptive software: dinner, work, and play swap modules without friction, keeping the home elastic.save pinFinal TakeawayA courtyard 2 floor house plan re-centers the home around a living void that optimizes light, privacy, and flow. Its semantic cousins—courtyard home layout and two-story courtyard residence—signal a future where circulation reads like code and storage behaves like cache. Long-tail thinking, from passive cooling strategies to indoor-outdoor thresholds, shapes more intentional daily rituals. In my experience, the smartest homes of the future won’t be larger—only more intentional.Convert Now – Free & InstantPlease check with customer service before testing new feature.Free floor plannerEasily turn your PDF floor plans into 3D with AI-generated home layouts.Convert Now – Free & Instant