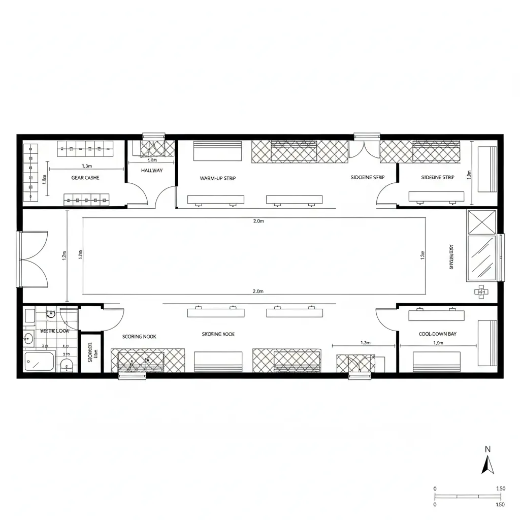
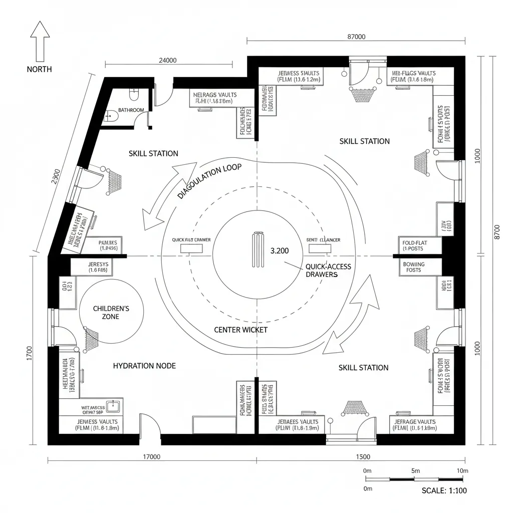
Cricket Ground Floor Plan, Compressed into 1600 Sq Ft: A futurist designer’s interface for sport, domestic rhythm, and precision spaceMilo Hart, Residential FuturistDec 12, 2025Table of ContentsLinear Wicket Spine + Dual SidelinesDiagonal Bow Loop + Perimeter StationsCentral Mat Hub + Ring of Functions## Final TakeawayTable of ContentsLinear Wicket Spine + Dual SidelinesDiagonal Bow Loop + Perimeter StationsCentral Mat Hub + Ring of Functions## Final TakeawayFree floor plannerEasily turn your PDF floor plans into 3D with AI-generated home layouts.Convert Now – Free & InstantThe future lifestyle asks homes to host micro-communities and movement, while today’s pain point is square footage scarcity. According to NAHB surveys, smaller footprints are trending even as amenity expectations rise—so a cricket ground floor plan for 1600 sq feet becomes a compact arena for rituals and recovery. The future is pressing in, and I can already see it. spatial reasoning toolkit anchors my mapping of zones and timing layers around the main wicket corridor.Linear Wicket Spine + Dual SidelinesDesign Logic:In 1600 sq ft, the “pitch” is a linear spine, flanked by two sideline bands for warm-up and seating; future lifestyle wants hybrid sport-living nodes, and this structure keeps intent crisp.Flow:Entry → gear cache → warm-up strip → wicket corridor → cool-down bay; a program flow that reads like instructions for pre-game and post-game cycles.Sightlines:Main axis reveals the wicket first, with peripheral glance to benches and scoring nook; UI tiers are clear: play foreground, support background.Storage:Wall-mounted bat racks and modular bins form a cache with labeled slots; overhead lattices store nets, keeping latency low when swapping modes.Furniture Fit:Benches at 16–18" seat height, narrow tables aligned to the sideline API; all pieces respect the corridor bandwidth to avoid packet loss in movement.Verdict:This layout holds performance within a disciplined corridor; in five years, clients will value its toggling speed between sport, social, and maintenance.save pinDiagonal Bow Loop + Perimeter StationsDesign Logic:A diagonal loop compresses run-up energy and returns it to the center; future play seeks dynamic arcs, not just straight lanes, in limited footprints.Flow:Entry → hydration node → diagonal bow path → center wicket → perimeter skill stations; a modular sequence that can recompile for drills or casual play.Sightlines:Corner-to-center diagonals stack information: trajectory first, audience second; the eye reads movement scripts before reading faces.Storage:Corner vaults act as deep cache—helmets low, pads mid, jerseys high; quick-access drawers minimize retrieval time between sets.Furniture Fit:Fold-flat screens, lightweight scoring lectern, and clip-on net posts respect the diagonal API; nothing protrudes into the action vector.Verdict:The loop breeds agility and keeps edges productive; in five years, the diagonal will feel like a native gesture for small-format cricket practice.save pinCentral Mat Hub + Ring of FunctionsDesign Logic:Place a heavy-duty mat as the central node; ring it with discrete functions—spectator, training, gear care—so the hub governs all calls.Flow:Entry → sanitize → hub mat → ring functions (scoring, stretching, video) → exit; a circular protocol for compact teams and family sport.Sightlines:360° clarity around the mat; layers read like UI stacks, with the play kernel always visible and peripherals dimmed until needed.Storage:Radial shelving forms a cache cloud; labeled arcs reduce search friction and keep gear circulation predictable.Furniture Fit:Low-profile ring stools, rolling kit caddies, and collapsible boundary markers comply with the ring API; dimensions tuned to keep the kernel sovereign.Verdict:This hub-and-ring feels inevitable for small arenas; in five years, it will normalize the idea that sport, family, and streaming can share one spatial OS.save pin## Final TakeawayA cricket ground floor plan within 1600 sq feet is less about scale and more about intention—tight choreography, clear sightlines, and caches that keep momentum. Variants like compact indoor wicket layouts and small training arenas prove that constraints guide better interfaces. The smartest sporting homes won’t be larger, only more programmable; and in my experience, precise bandwidth management beats raw square footage every time.Convert Now – Free & InstantPlease check with customer service before testing new feature.Free floor plannerEasily turn your PDF floor plans into 3D with AI-generated home layouts.Convert Now – Free & Instant