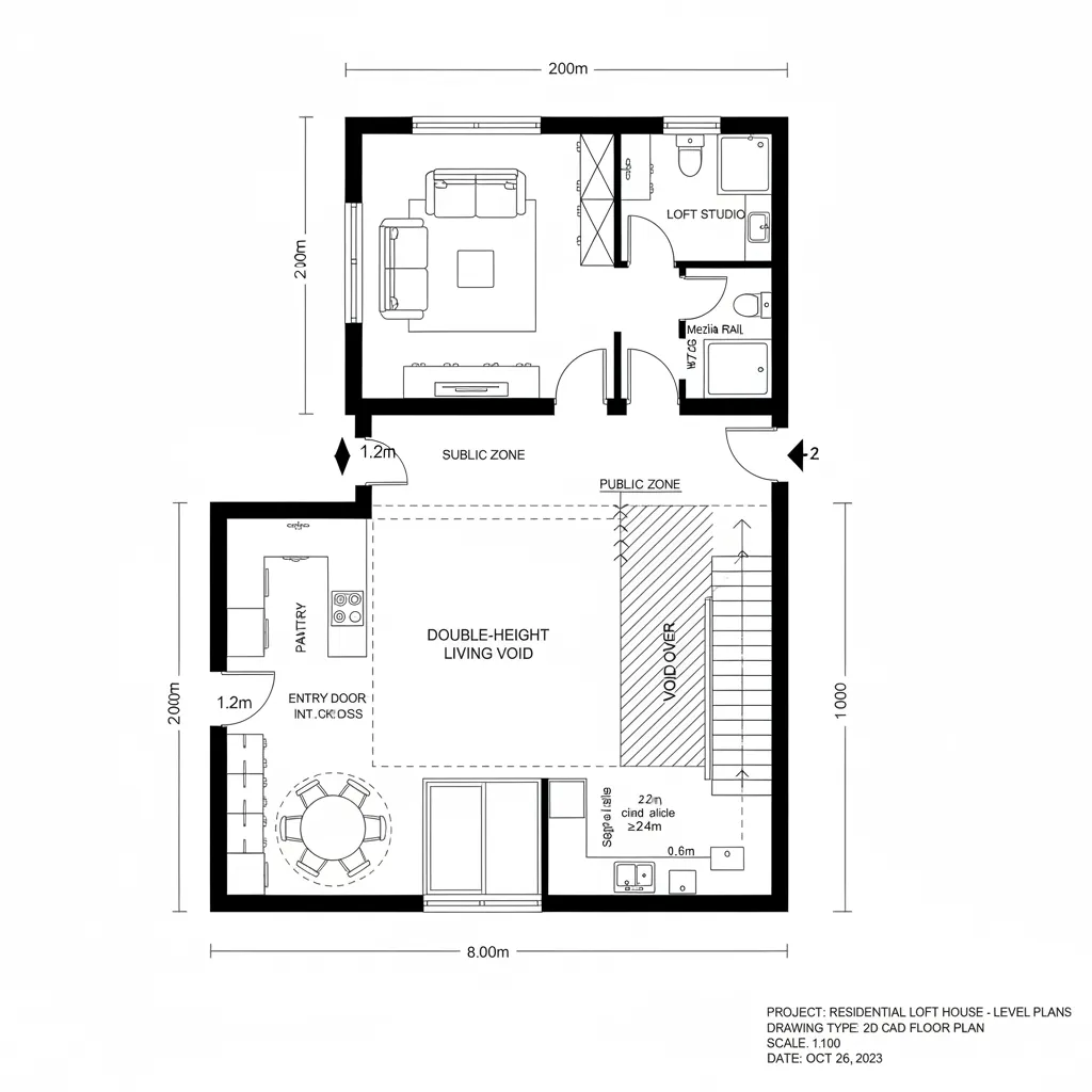
Duplex, Double Height, Near-Future Living: A two-level home where vertical air becomes the new interface of daily lifeNorth Node AtelierDec 04, 2025Table of ContentsGallery Spine + Loft StudioSplit Core with Bridge LibraryCorner Core + Sunwell DiningFinal TakeawayTable of ContentsGallery Spine + Loft StudioSplit Core with Bridge LibraryCorner Core + Sunwell DiningFinal TakeawayFree floor plannerEasily turn your PDF floor plans into 3D with AI-generated home layouts.Convert Now – Free & InstantFuture living is compressing more meaning into less square footage, while today’s pain point is the clash between openness and privacy. Data from NAHB shows shifting buyer preferences toward flexible, multi-use areas—an early signal that the duplex with double height living is a prototype for tomorrow. The void isn’t empty; it’s bandwidth for light, air, and time, a spatial reasoning toolkit that reduces cognitive clutter and heightens presence. As the future presses closer, I’m already designing for it.Gallery Spine + Loft StudioDesign Logic: A double-height living anchors the lower level; a lofted studio floats above like a secondary OS for quiet work. The gap mediates sound and light, aligning with hybrid life patterns.Flow: Entry → service wall → living void → stair as data bus → loft. Tasks move vertically first, then laterally, minimizing cross-traffic conflicts.Sightlines: From entry, the eye locks on the void, then climbs the stair ribbon to the loft edge; glazing frames a long horizon for mental decompression.Storage: Stair drawers + perimeter millwork act as cache; a tall pantry stacks vertically, indexing daily/weekly/seasonal bins.Furniture Fit: 84–96" sofa aligns with 10–12' span; a 30" deep media rail and a 42" round table prevent choke points.Verdict: This stack anticipates five years of fluid schedules—public below, focused above—with the void stabilizing both.save pinSplit Core with Bridge LibraryDesign Logic: Bedrooms split on level two; a bridge library crosses the double height like a readable timeline. Future-flex rooms pivot from nursery to studio without rework.Flow: Kitchen to living is a short loop; vertical jump via stair to bridge; private rooms branch at nodes to avoid overlap at peak hours.Sightlines: Bridge grants top-down supervision without surveillance; book wall filters views like a UI overlay, softening glare and noise.Storage: Tall library wall is a vertical cache; concealed toe-kick drawers and coat niches perform micro-buffering at entries.Furniture Fit: Low-profile sectional under the void keeps volume readable; slender console (12–14") maintains circulation bandwidth.Verdict: The bridge converts air into utility—light, order, and informal meetings—future-proofing family rhythms.save pinCorner Core + Sunwell DiningDesign Logic: A corner stair cores the plan, leaving the double-height living and a sunlit dining bay to operate as dual processors—social and metabolic systems in balance.Flow: Entry → drop zone → kitchen line → dining bay → living void → stair; cycles run smoothly from morning prep to evening decompression.Sightlines: Corner glazing forms a 270° panorama; dining bay becomes the visual anchor, while the void frames sky as a daily update feed.Storage: Ceiling-high kitchen wall with appliance garage; bench seating hides deep bins; attic crawl off stair landing for seasonal overflow.Furniture Fit: 72–78" dining table floats in the bay; a 9x12 rug maps living zones without blocking the stair’s command path.Verdict: Light becomes a scheduling tool; the plan anticipates wellness-first routines without adding square footage.save pinFinal TakeawayThe duplex with double height living treats air as the primary material, converting vertical volume into clarity and adaptive function. Variations like loft studios, bridge libraries, and sunwell dining bays show how a two-level unit can act like an upgradable interface. In my experience, the smartest homes of the future won’t be larger—only more intentional, and what I keep seeing in my projects is that height, not size, quietly rewires daily life.Convert Now – Free & InstantPlease check with customer service before testing new feature.Free floor plannerEasily turn your PDF floor plans into 3D with AI-generated home layouts.Convert Now – Free & Instant