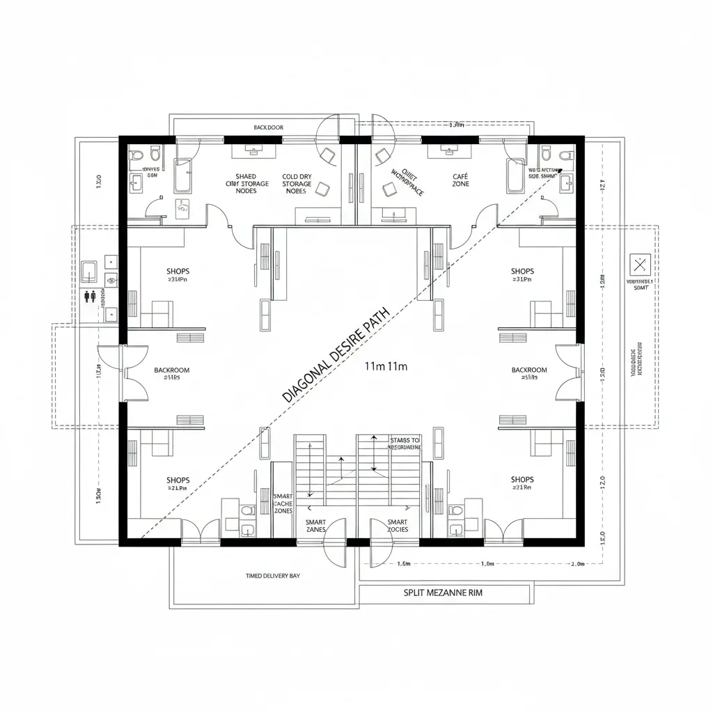
Eight-Shop Mall Layouts Across Floors: Future-ready retail interfaces for multi-level mallsVesper LinDec 12, 2025Table of ContentsTiered Atrium Spine (8 Shops, Two Levels)Looped Gallery with Offset Nodes (8 Shops, Three Levels)Transit Hub Hybrid (8 Shops, Single-Level + Split Mezzanine)Final TakeawayTable of ContentsTiered Atrium Spine (8 Shops, Two Levels)Looped Gallery with Offset Nodes (8 Shops, Three Levels)Transit Hub Hybrid (8 Shops, Single-Level + Split Mezzanine)Final TakeawayFree floor plannerEasily turn your PDF floor plans into 3D with AI-generated home layouts.Convert Now – Free & InstantThe future lifestyle wants retail to behave like software, while current malls struggle with wayfinding, friction, and uneven footfall. I read the latest NAHB renovation data noting persistent demand for adaptive mixed-use shells, and it echoes my clients’ need to recompile traffic across levels. Here’s how I approach multi-level malls with 8 shops: spatial reasoning toolkit becomes my quiet instrument. The anchor idea: a mall is an operating system; each shop is a microservice.Tiered Atrium Spine (8 Shops, Two Levels)Design Logic: A central void acts as a bandwidth amplifier, letting the flow synchronise across floors—future events, pop-ups, and flexible leases need this modular kernel.Flow: Entry → atrium node → perimeter loop → escalator pair → mezzanine ring; users read the space like a guided script with low latency.Sightlines: Long axial views across the atrium stack, with layered UI: hero signage at 0°, secondary cues at 30–45°, and intimate storefronts at 90°.Storage: Back-of-house runs as a shared cache along the perimeter, vertical service shafts as high-speed buffers for restock and waste.Furniture Fit: Kiosks, benches, and planters respect a 6–8 ft API lane; storefront modules align to 15–20 ft bays for reconfigurable merchandising.Verdict: This layout builds a cohesive signal: even with 8 shops, the atrium spine keeps the retail cloud synced for the next five years of hybrid footfall.save pinLooped Gallery with Offset Nodes (8 Shops, Three Levels)Design Logic: A figure-eight loop eliminates dead ends; offset nodes become event sockets—future-proof against shifting tenant mixes and seasonal patterns.Flow: Ground ingress → figure-eight gallery → offset lounge node → lift/escalator handoff → upper ring; movement compiles cleanly with minimal branching errors.Sightlines: Layered frames reveal shop thresholds like UI breadcrumbs; cross-level sightlines cue discovery without overwhelming cognitive load.Storage: Distributed micro-backrooms act as localized caches, stitched by a service corridor mesh for efficient last-meter logistics.Furniture Fit: Seating islands and adaptive display rails maintain 5 ft clear flow; modular storefront kits snap to 12–14 ft increments for rapid swap-outs.Verdict: The looped gallery architecture equalizes attention, making eight units feel like a single orchestrated interface rather than isolated widgets.save pinTransit Hub Hybrid (8 Shops, Single-Level + Split Mezzanine)Design Logic: Retail aligns with commute rhythms; the plan treats entrances as high-frequency ports and mezzanine as low-noise workspace and cafés.Flow: Dual entries → diagonal desire path → central hall → mezzanine stairs → quiet rim; execution reads like an optimized routing table.Sightlines: Diagonal vistas deliver immediate orientation; mezzanine balustrades frame secondary layers—information stacks without visual congestion.Storage: Under-stair and rim zones become smart caches, with timed delivery windows and shared cold/dry nodes for mixed tenants.Furniture Fit: Transit-grade benches, slim kiosks, and queue rails keep lanes at 6 ft; storefronts hold 18–22 ft depth for flexible tenancy and backroom slices.Verdict: This hybrid gives eight shops a stable flow signature; it absorbs commuter spikes while preserving calm micro-environments—future commuting patterns fit naturally.save pinFinal TakeawayEight-shop mall floor plans thrive when movement is engineered like software—loops, nodes, and sightlines as your interface. Multi-level layouts and split mezzanines are variants of the same code: directing bandwidth where the day actually flows. In my experience, the smartest retail hubs of the future won’t be larger—only more intentional, and I keep designing toward that horizon.Convert Now – Free & InstantPlease check with customer service before testing new feature.Free floor plannerEasily turn your PDF floor plans into 3D with AI-generated home layouts.Convert Now – Free & Instant