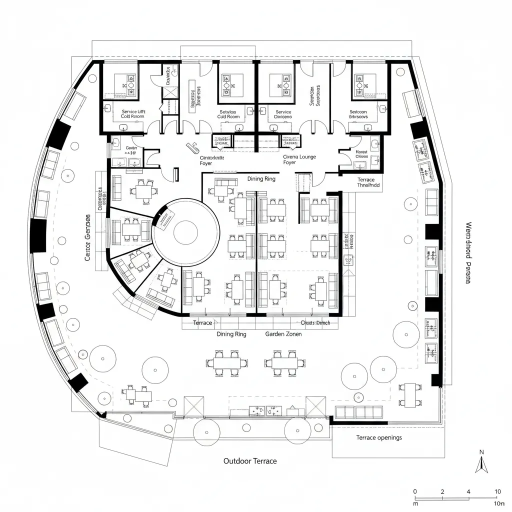
G+4 Mall: Floor & Elevation View Plan as Future Interface: A designer’s narrative decoding how multi-level retail becomes a lifestyle operating systemAvery N.Dec 12, 2025Table of ContentsGround Level: Transit Hub + MarketplaceLevel 2–3: Retail Spine + Event NodesLevel 4: Dining Terrace + Leisure RooflineFinal TakeawayTable of ContentsGround Level Transit Hub + MarketplaceLevel 2–3 Retail Spine + Event NodesLevel 4 Dining Terrace + Leisure RooflineFinal TakeawayFree floor plannerEasily turn your PDF floor plans into 3D with AI-generated home layouts.Convert Now – Free & InstantThe future lifestyle is compressing choice into clarity, while current malls struggle with fragmented circulation and blind corners. Industry sentiment shows 60% of buyers prioritize walkability and access to amenities (Zillow), which reframes a G+4 retail stack into a civic interface. spatial reasoning toolkit is where I anchor my process for a floor & elevation view plan of shopping mall G+4—the code behind seamless movement, sightlines, and dignified pauses.Future is arriving fast, and I already see how this typology must integrate vertical rhythm with human-scale moments; my clients need a mall that functions like a stable OS, not a noisy feed.Ground Level: Transit Hub + MarketplaceDesign Logic: Ground floor becomes the intake valve—street permeability, ride-share bays, and micro-plaza seating staging the first handshake. Elevations read transparent to broadcast content, framing entrances like UI headers.Flow: Drop-off → weather canopy → vestibule → atrium spine → anchor store thresholds; escalators flanked by concierge nodes like command lines.Sightlines: Low-reflect glazing, 6m atrium clear height, cross-views to anchors; storefront hierarchy reads as a clean information stack.Storage: Back-of-house along service alley, parcel lockers near concierge; cache for rapid returns and click‑collect.Furniture Fit: Benches at 450mm seat height, modular kiosks 1.2m grid; API limits keep flow uncluttered.Verdict: A civic lobby that compiles movement into calm; five years out, it will still feel legible under peak footfall.save pinLevel 2–3: Retail Spine + Event NodesDesign Logic: Mid-level floors act like content channels—medium brands, pop-up bays, and a flexible event deck. Elevations step with fins for solar discipline and rhythm.Flow: Atrium loop → side galleries → event node → food sampling → vertical return; the sequence is a readable path with optional branches.Sightlines: Balcony rails at 1.1m, clear-cut views across void; visual anchors every 18–24m act like headers in a document.Storage: Inline stockrooms behind demising walls, shared logistics corridor; cache rules keep replenishment invisible.Furniture Fit: Pop-up modules 3x3m, gondolas capped at 1.4m; precise heights preserve horizon and browsing bandwidth.Verdict: These layers perform like a modular feed—configurable without chaos, future-proofed for event-driven retail.save pinLevel 4: Dining Terrace + Leisure RooflineDesign Logic: Top level resolves the day: dining, cinema lounge, and outdoor terrace stitched to skyline. Elevation expresses lighter massing; parapets float like thin UI borders.Flow: Escalator crest → foyer → dining ring → terrace threshold → rooftop garden; a slow sequence to decelerate attention.Sightlines: Long views to city, framed apertures; interior sightlines align with table clusters like nested menus.Storage: Kitchen cold rooms stacked near service lifts; terrace furniture stores in weather-rated lockers—stable cache against seasons.Furniture Fit: Tables 700mm height, banquettes 1.8–2.4m runs; wind-rated umbrellas fit grid without fighting elevation rhythm.Verdict: The roof level acts as the mall’s soft landing—five years on, it will be where time stretches and dwell metrics peak.save pinFinal TakeawayA floor & elevation view plan of shopping mall G+4 is more than geometry; it’s a lifestyle interface that stabilizes urban attention. From ground intake to rooftop leisure, the stack behaves like interlinked modules—movement, views, and caches working as one. In my experience, the smartest multi-level retail won’t be larger—only more intentional, and I keep designing it that way.Convert Now – Free & InstantPlease check with customer service before testing new feature.Free floor plannerEasily turn your PDF floor plans into 3D with AI-generated home layouts.Convert Now – Free & Instant