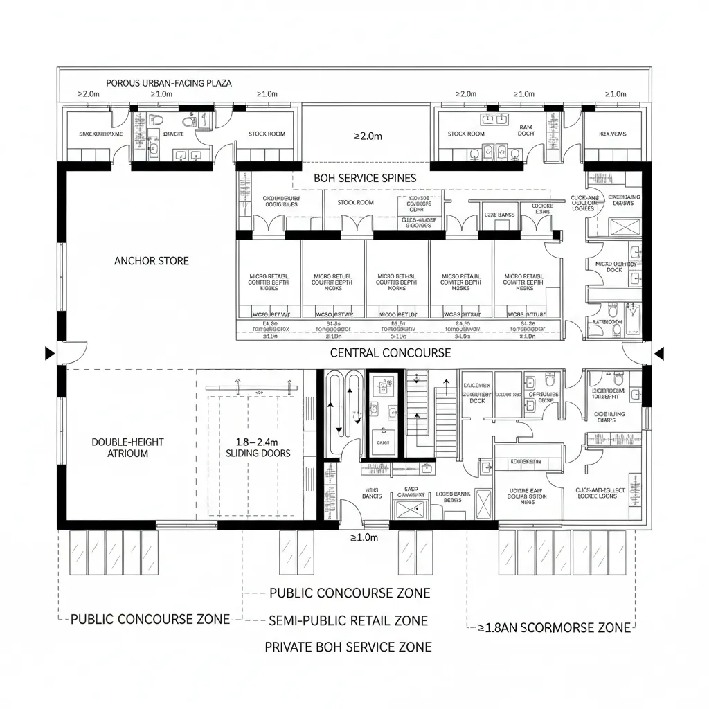
G+4 Mall Plan Through a Future Lens: Flow, sightlines, and storage logic for a next-gen retail interfaceMara Quinn, Spatial Systems DesignerDec 12, 2025Table of ContentsGround Level: Transit Concourse + Anchor ThresholdLevel 2–3: Retail Loop + Experience NodesLevel 4: Food Hall + Cinema + Rooftop InterfaceFinal TakeawayTable of ContentsGround Level Transit Concourse + Anchor ThresholdLevel 2–3 Retail Loop + Experience NodesLevel 4 Food Hall + Cinema + Rooftop InterfaceFinal TakeawayFree floor plannerEasily turn your PDF floor plans into 3D with AI-generated home layouts.Convert Now – Free & InstantThe future of retail is compressing into fewer frictions while today’s malls struggle with dead corridors, unclear vertical movement, and storage chaos; I can feel the next interface forming. According to NAHB trends on mixed-use preferences and adaptive layouts, shoppers favor legible circulation and flexible footprints that evolve without demolition. In that light, a floor & prospective view plan of shopping mall g 4 becomes the test bed for how we script movement and visibility. The future is pressing in, and I’m already designing for its bandwidth with spatial reasoning toolkit.Ground Level: Transit Concourse + Anchor ThresholdDesign Logic: The ground floor works as a transit interface: anchor at one edge, porous plaza at the other, drawing flows like load-balancers. Future trend: multimodal arrivals, micro-logistics, and pop-up retail running on a flexible grid.Flow: Entries funnel to a central spine, then branch to anchor and street-facing micro-bays; escalators stack near the midpoint for predictable loop cycles.Sightlines: Double-height atrium creates a clear UI—anchor logo as top-level node, side corridors as secondary tiers, glazing framing urban cues.Storage: Back-of-house spines act as cache lanes, with cross-access to micro-delivery docks and click-and-collect lockers, scaled for peak loads.Furniture Fit: Kiosks and seating islands sized like APIs—2.4–3.0m modules, plug-in power rails, adaptable to seasonal scripts.Verdict: It anticipates hybrid street-and-digital commerce, keeping latency low between arrival, browsing, and pickup in the next five years.save pinLevel 2–3: Retail Loop + Experience NodesDesign Logic: Mid levels become the browsing engine: continuous loop with curated “nodes” for events, brand labs, and food nooks. Future trend: discovery over depth, shorter dwell times, yet richer touchpoints.Flow: Escalators offset to encourage clockwise loops; cross-bridges act like shortcuts, reducing path ping time between categories.Sightlines: Clear axial views to event pods; layered signage hierarchy keeps the UI calm while revealing tertiary paths gradually.Storage: Distributed stock rooms as edge caches, with shared mezzanine cages for fast replenishment from centralized backbones.Furniture Fit: Modular storefronts in 6–9m bays; seating and demo tables obey precise envelope rules to maintain aisle bandwidth.Verdict: It programs curiosity without congestion, a layout that will feel current as brands cycle formats and pop-ups iterate weekly.save pinLevel 4: Food Hall + Cinema + Rooftop InterfaceDesign Logic: The top level orchestrates dwell and night energy: food hall, screens, and terrace cohere like a cloud layer. Future trend: social bandwidth, wellness air, and programmable events replacing static anchors.Flow: Vertical cores land near food hall; terrace doors align with wind patterns, and service routes stay invisible, minimizing user friction.Sightlines: Panoramic edges serve as UI headers; inward views prioritize menu boards and stage lighting, with acoustic buffers as design code.Storage: Kitchen backlines and shared cold-cache corridors ensure quick distribution; refuse and recycling travel on isolated paths.Furniture Fit: Tables and booths lock into 0.6–0.75m increments; cinema seating grids respect egress APIs and tactile wayfinding.Verdict: It extends the mall’s time signature into evenings, a resilient upper tier where programs can swap without tearing walls.save pinFinal TakeawayA floor & prospective view plan of shopping mall g 4 is more than levels—it’s a compiled interface for motion, sight, and storage. In my practice, G+4 retail stacks succeed when the vertical cores feel like readable UI and the caches run like clean code. The next decade of mall planning will prioritize adaptive modules, event nodes, and low-friction logistics over square footage. In my experience, the smartest retail environments won’t be larger—only more intentional.Convert Now – Free & InstantPlease check with customer service before testing new feature.Free floor plannerEasily turn your PDF floor plans into 3D with AI-generated home layouts.Convert Now – Free & Instant