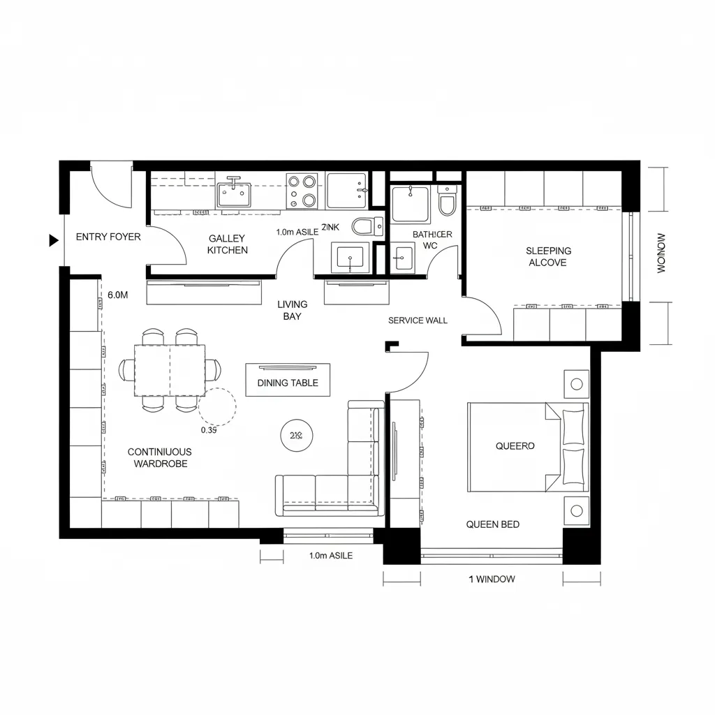
Heathrow T3 Living: Translating Terminal Logic into Home: A designer’s read of traffic, sightlines, and storage through the lens of a 1-bedroom apt floor plan ethosMiles MeridianApr 25, 2026Table of ContentsLinear Concourse StudioGate Cluster One-BedCentral Atrium Two-BedFinal TakeawayFree floor plannerEasily turn your PDF floor plans into 3D with AI-generated home layouts.Convert Now – Free & InstantThe future lifestyle presses against our current dwellings: we crave fluid movement, clarity of information, and stress-light routines, yet homes still stall at bottlenecks and blind corners. AIA and NAHB trends keep reporting steady demand for compact, efficiency-first footprints, while Zillow and Houzz show rising interest in adaptable layouts—signals I read when interpreting a heathrow terminal 3 floor plan as urban-living code. The future is near, and I’m already seeing it. spatial reasoning toolkitLinear Concourse StudioDesign Logic:Like a concourse spine, the unit runs linearly—entry, prep, dwell, rest—minimizing context switching and friction.Flow:Door → galley kitchen → living bay → sleeping alcove, with utilities tucked along one service wall; a runway for daily routines.Sightlines:Continuous axis from entry to window; peripheral niches act as secondary UI panels, reducing cognitive noise.Storage:Longwall wardrobes and overheads function as cache strips; shallow but continuous, keeping retrieval latency low.Furniture Fit:Slim sofa, drop-leaf table, and a platform bed within API constraints of the narrow bay; everything aligned to the spine.Verdict:This layout anticipates five years of micro-mobility living—fast, legible, and clocked to commuter schedules.save pinOpen in 3D Planner Processing... Gate Cluster One-BedDesign Logic:Zoned like gate clusters: public lounge, semi-work node, private rest pod—clear thresholds for modes of life.Flow:Foyer as buffer → living/working node → pocket kitchen → sliding door to bedroom; a branching tree with minimal backtracking.Sightlines:Primary sightline to window; secondary to workstation; kitchen stays outside the main visual feed, like back-of-house.Storage:Modular cubes stack near the workstation and bed—distributed caches close to usage nodes, avoiding overflow.Furniture Fit:Compact sectional, rail-mounted desk, queen bed with under-storage—precise radius clearances for smooth transfers.Verdict:It reads the next phase of hybrid work: a unit that handles meetings, meals, and sleep like scheduled departures.save pinOpen in 3D Planner Processing... Central Atrium Two-BedDesign Logic:A shared atrium-like living core with two flanking rooms—social bandwidth in the center, private bandwidth at edges.Flow:Entry → hub → branching to bedrooms and kitchen; loopable paths keep routines parallel without collisions.Sightlines:Hub maintains panoramic visibility; bedrooms hold narrow-view privacy—hierarchy like terminal signage tiers.Storage:Perimeter built-ins and a central utility wall act as mirrored caches, balancing quick access with deep archive.Furniture Fit:Island on casters, low-profile media console, two desks; API specs tuned to 900–1000 sq ft constraints.Verdict:Families and roommates get a future-proof matrix: shared energy in the middle, calm compute at the edges.save pinOpen in 3D Planner Processing... Final TakeawayReading a heathrow terminal 3 floor plan through residential logic reveals how future homes will prioritize legible flow, layered sightlines, and distributed cache. Whether a small studio layout or a two-bedroom unit, the smartest footprints will behave like interfaces, not containers. In my experience, the next decade rewards clarity over size, and I keep designing for movement that feels like code executing cleanly.Convert Now – Free & InstantPlease check with customer service before testing new feature.Free floor plannerEasily turn your PDF floor plans into 3D with AI-generated home layouts.Convert Now – Free & Instant