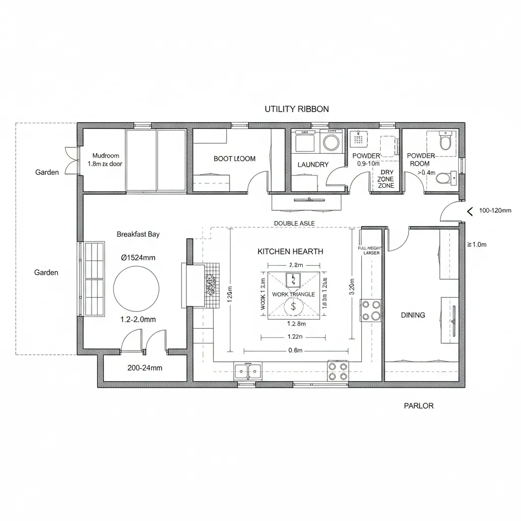
Heritage-Style Home Layout, Future-Ready: Reweaving tradition with tomorrow’s interface of livingElias North, Residential FuturistDec 04, 2025Table of ContentsParlor-Core Loop: Foyer to Parlor to Kitchen SpineLibrary-Stair Gallery with Split Flex RoomKitchen Hearth + Back-of-House Utility RibbonFinal TakeawayTable of ContentsParlor-Core Loop Foyer to Parlor to Kitchen SpineLibrary-Stair Gallery with Split Flex RoomKitchen Hearth + Back-of-House Utility RibbonFinal TakeawayFree floor plannerEasily turn your PDF floor plans into 3D with AI-generated home layouts.Convert Now – Free & InstantThe future keeps leaning in, and our homes reveal where it lands first. People crave soul—materials with memory—yet trip over today’s pain points: storage scarcity, fractured flow, and rooms that don’t flex. AIA residential data keeps showing resilient demand for adaptable plans even in traditional envelopes, and I read a heritage-style home layout as an early codebase of future rituals. Here’s my spatial reasoning toolkit at work.Parlor-Core Loop: Foyer to Parlor to Kitchen SpineDesign Logic: A classic foyer and parlor anchor identity while a concealed services spine modernizes function; the plan respects symmetry yet compiles flexibility for multi-modal days.Flow: Threshold → foyer node → parlor hub → dining → kitchen spine → mudroom buffer → courtyard; a circular return prevents dead ends and latency.Sightlines: Low, axial views align fireplace, table, and garden as a UI stack; transparency thins near kitchen to keep visual bandwidth for task focus.Storage: Foyer millwork, window benches, and a pantry wall act as cache layers—quick access up front, deep storage at the spine.Furniture Fit: 36–42 in dining clearance, 9–10 ft parlor bay for heirloom sofa, island at 24x72 in; legacy pieces plug into a precise API of edges and radii.Verdict: Tradition stays legible while the looped circulation anticipates gatherings, hybrid work, and seasonal shifts over the next five years.save pinLibrary-Stair Gallery with Split Flex RoomDesign Logic: The stair becomes a knowledge bus—library walls flank treads, turning transit into content; a split flex room above edits between guest, studio, or media.Flow: Entry → stair gallery → landing node → flex room A/B → primary suite; parallel routes reduce congestion like multithreading.Sightlines: Oblique views across railings layer spines of books, windows, and ceilings—information hierarchy without glare.Storage: 11-in deep stair shelving as L1 cache, hidden under-stair drawers as L2, attic knee-wall closets as cold storage.Furniture Fit: 30-in writing desk niches on landing, Murphy bed at 60x80 in in flex A, media wall capped at 84 in to keep transom light unblocked.Verdict: A heritage stair gains bandwidth; the split flex readies for remote work surges, care cycles, and quiet refuge without adding square footage.save pinKitchen Hearth + Back-of-House Utility RibbonDesign Logic: The hearth returns as social processor while a utility ribbon (laundry, powder, mud) offloads noise—nostalgia with silent efficiency.Flow: Garden entry → mud node → kitchen hearth → dining → parlor; service moves parallel to social, like foreground/background threads.Sightlines: Framed pass-throughs act as UI cards: cookline framed, clutter occluded; diagonal to garden keeps the refresh rate high.Storage: Full-height larder, ceiling-suspended pot rail, and boot lockers; everything indexed, nothing orphaned—cache coherency achieved.Furniture Fit: 48 in between island and run, 60 in circular table in breakfast bay, a 36 in hearth bench that invites analog pauses.Verdict: The plan carries heirloom rituals with contemporary uptime, absorbing groceries, guests, and weekday sprints without packet loss.save pinFinal TakeawayA heritage-style home layout isn’t nostalgia; it’s a stable protocol for future updates. With adaptive rooms, layered storage, and disciplined sightlines, tradition becomes an interface that can scale. In my experience, the smartest homes of the future won’t be larger—only more intentional, and what I keep seeing in my projects is that small spatial decisions quietly rewrite how families live.Convert Now – Free & InstantPlease check with customer service before testing new feature.Free floor plannerEasily turn your PDF floor plans into 3D with AI-generated home layouts.Convert Now – Free & Instant