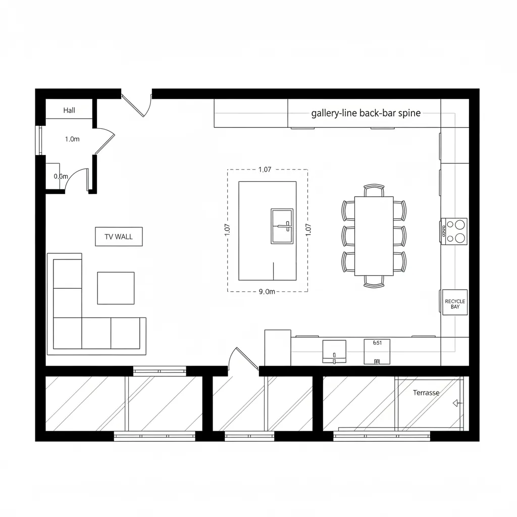
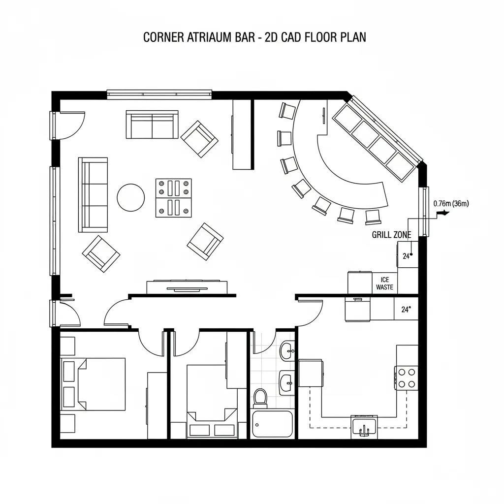
House Plan With Bar Area, Drawn From The Near Future: A residential interface where the bar becomes a social processor and nightly reset buttonMoss Avery, Residential FuturistDec 04, 2025Table of ContentsGallery-Line Great Room with Back-Bar SpineCorner Atrium Bar as Social RouterBasement Speakeasy with Acoustic BufferFinal TakeawayTable of ContentsGallery-Line Great Room with Back-Bar SpineCorner Atrium Bar as Social RouterBasement Speakeasy with Acoustic BufferFinal TakeawayFree floor plannerEasily turn your PDF floor plans into 3D with AI-generated home layouts.Convert Now – Free & InstantFuture living is compressing leisure, work, and recovery into tighter, smarter interfaces; current homes struggle with fragmented hosting zones and awkward traffic. I keep seeing the bar evolve from accessory to command node—where light prep, conversation, and micro-work converge, and that’s why house plan with bar area is quietly becoming default. Per AIA’s latest Home Design Trends Survey, specialty kitchen zones and beverage stations continue to rise as clients seek flexible hosting cores—proof the future is arriving unevenly but fast. spatial reasoning toolkitGallery-Line Great Room with Back-Bar SpineDesign Logic: A single wall back-bar forms a service spine behind the dining table, letting cooking, mixing, and plating run parallel—like multithreading for daily life. Flow: Entry → coat niche → island → dining → back-bar → terrace; a clean loop that buffers guests from chef tasks while keeping latency low. Sightlines: From sofa, art and bottles align as a horizontal status bar; kitchen clutter drops below the visual horizon. Storage: Tall pantry plus 24-inch undercounter fridge, drawer dividers, and a concealed recycle bay—cache close to compute. Furniture Fit: 36-inch deep island, 42-inch clearance, 72–84-inch dining, 18-inch back-bar overhang for quick perching—API limits that keep the room fast. Verdict: Hosts gain a social lane without heat or noise bleed; in five years it flexes between weeknight hydration hub and weekend tasting strip.save pinCorner Atrium Bar as Social RouterDesign Logic: A glazed corner bar sits at the junction of kitchen, patio, and lounge—one node routing three behaviors, future-proof against shifting rituals. Flow: Prep → bar pass-through → patio grill → indoor lounge; guests circulate like packets, never colliding with the cook. Sightlines: Low profile shelves keep the atrium transparent; bottles become UI icons along a vertical light column. Storage: Split cold storage—wine on the dry side, beverage center by patio door; shallow glassware drawers act as hot cache. Furniture Fit: 30-inch corner radius, 10–12-inch ledge for standing service, two 24-inch modules beneath for ice and waste—tight but precise. Verdict: The home breathes between inside and out; five years on, it shifts from cocktail lab to kid smoothie station without code rewrite.save pinBasement Speakeasy with Acoustic BufferDesign Logic: Below-grade bar decouples noise from sleep zones; future evenings move here, protecting upstairs bandwidth. Flow: Stairs → landing gallery → L-bar → media wall → powder room; a controlled sequence that feels cinematic. Sightlines: L-shaped counter frames the screen; backlit shelving reads like a HUD, guiding where people park and pour. Storage: 15-inch deep bottle wall, under-stair bulk cache, lockable spirits drawer—tiered memory for daily and archival use. Furniture Fit: 42-inch bar height, 24-inch stool bays at 30-inch centers, 60-inch clear behind stools for circulation—specs that prevent jitter. Verdict: It becomes the home’s night-mode; in five years it will host hybrid watch parties, vinyl rituals, and quiet solo resets with equal grace.save pinFinal TakeawayA house plan with bar area is less a luxury than a new operating layer, where hosting, hydration, and light prep compile into one stable module. Its variants—back-bar spines, corner pass-throughs, and buffered lounges—act like firmware updates for domestic flow, from weeknights to gatherings. In my experience, the smartest homes of the near future won’t be larger—only more intentional, and the bar is the small hinge that swings the whole system.Convert Now – Free & InstantPlease check with customer service before testing new feature.Free floor plannerEasily turn your PDF floor plans into 3D with AI-generated home layouts.Convert Now – Free & Instant