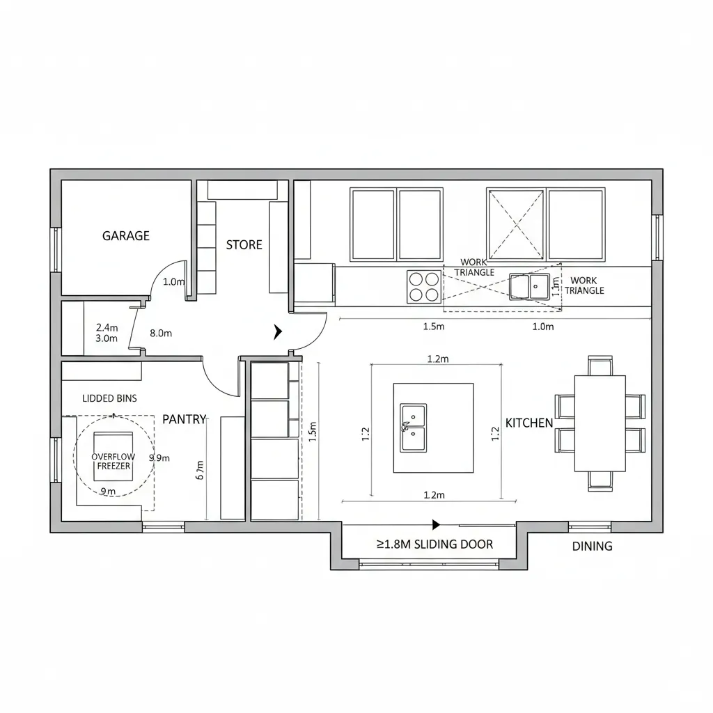
House Plan with Store Room: A future-leaning layout where storage becomes bandwidth, and rooms compile into a living OSAtlas RowanDec 04, 2025Table of ContentsFront-Flex Entry with Pocket Store RoomKitchen Spine with Rear Store RoomSleep Wing with Linen–Utility Store RoomFinal TakeawayTable of ContentsFront-Flex Entry with Pocket Store RoomKitchen Spine with Rear Store RoomSleep Wing with Linen–Utility Store RoomFinal TakeawayFree floor plannerEasily turn your PDF floor plans into 3D with AI-generated home layouts.Convert Now – Free & InstantThe future of living isn’t bigger—it's cleaner, calmer, more intentional. Yet today my clients still wrestle with overflow, seasonal gear, and visual noise. AIA and NAHB surveys show storage ranks among the top upgrade priorities, a quiet signal that our lifestyles need better interfaces. I designed a house plan with store room as if the near future had already arrived—where a dedicated cache stabilizes the system and the day runs smoother through a spatial reasoning toolkit.Front-Flex Entry with Pocket Store RoomDesign Logic: A compact store room sits off the vestibule, intercepting bulk goods and gear before they leak into the living feed—future groceries, e-bikes, and package flows need a buffer zone.Flow: Door—vestibule—store—kitchen—living: a compiled path that offloads mass at the front and preserves downstream clarity.Sightlines: Entry sees light, not clutter; the opaque store door shields noise, giving the living core a calm UI layer.Storage: Adjustable shelving, vertical bike hooks, and a charging niche; like a cache with tiered memory for daily, weekly, seasonal cycles.Furniture Fit: Slim bench at entry (42–48 in), narrow console, and a door swing calculated to miss traffic—API constraints honored to the inch.Verdict: This front buffer future-proofs deliveries and micro-mobility, keeping the living area latency-free for the next five years.save pinKitchen Spine with Rear Store RoomDesign Logic: The store room anchors the kitchen like a data spine—dry goods, appliances, and utility backups sit one instruction away from prep zones.Flow: Garage—store—pantry wall—island—dining: a lossless pipeline from trunk drop to table, reducing retrace and timeouts.Sightlines: From island outward, you read windows and table first; the store room recess is visually muted, letting hospitality dominate the UI.Storage: 24–30 in deep shelving, lidded bins, ladder rail; overflow freezer tucked in a sound-damped alcove—structured like cold and warm tiers.Furniture Fit: 36 in clearances maintained around island; tall pantry hutch aligns with door jambs to keep the grid coherent.Verdict: When supply chains flex, this backbone absorbs it; home cooking scales without visual debt, a steady-state upgrade for daily life.save pinSleep Wing with Linen–Utility Store RoomDesign Logic: In the quiet wing, a store room merges linen, cleaning tools, and guest overflow—care routines compiled near bedrooms, not across the house.Flow: Bath—laundry niche—store—bedrooms: a loop that shortens chore latency and respects nighttime acoustics.Sightlines: Hall stays minimalist; the store door flush-aligns with trim so the corridor reads as one light band, not a list of tasks.Storage: Shallow shelves for linens, tall bay for vacs, wall rail for foldable drying—small modules stacked like efficient packets.Furniture Fit: Hall width at 42 in to pass with baskets; door swing or pocket door chosen per wing bandwidth.Verdict: This quiet cache sustains order without broadcasting effort, a humane protocol for families evolving through seasons.save pinFinal TakeawayA thoughtful house plan with store room isn’t about hiding things; it’s about shaping the interface so life loads fast and runs smooth. In larger homes or compact footprints, a dedicated store room, smart pantry, and linen cache create a resilient layout language. The next wave of residential design treats storage as system bandwidth, not afterthought. In my experience, when storage becomes architecture, the rest of the home finally breathes.Convert Now – Free & InstantPlease check with customer service before testing new feature.Free floor plannerEasily turn your PDF floor plans into 3D with AI-generated home layouts.Convert Now – Free & Instant