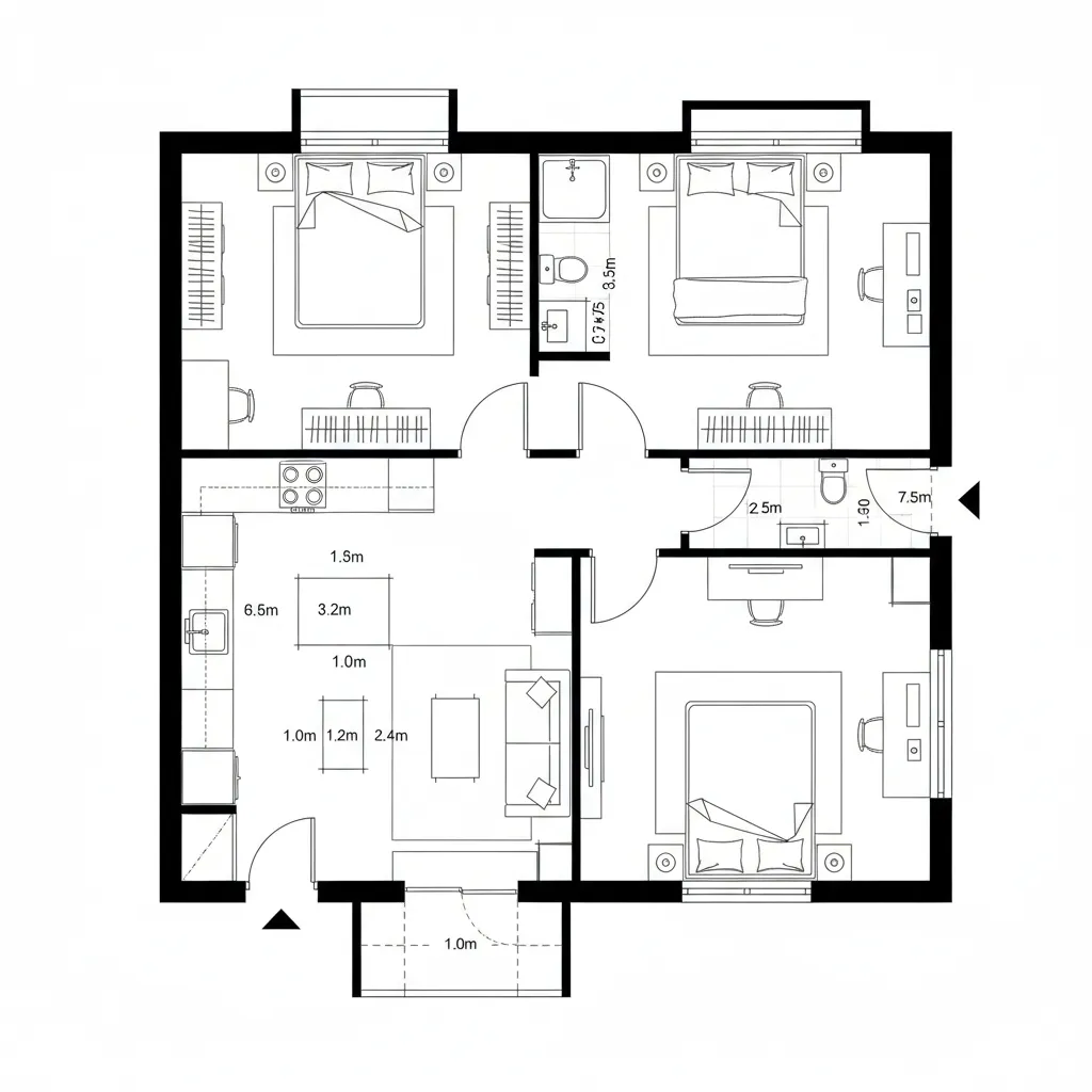
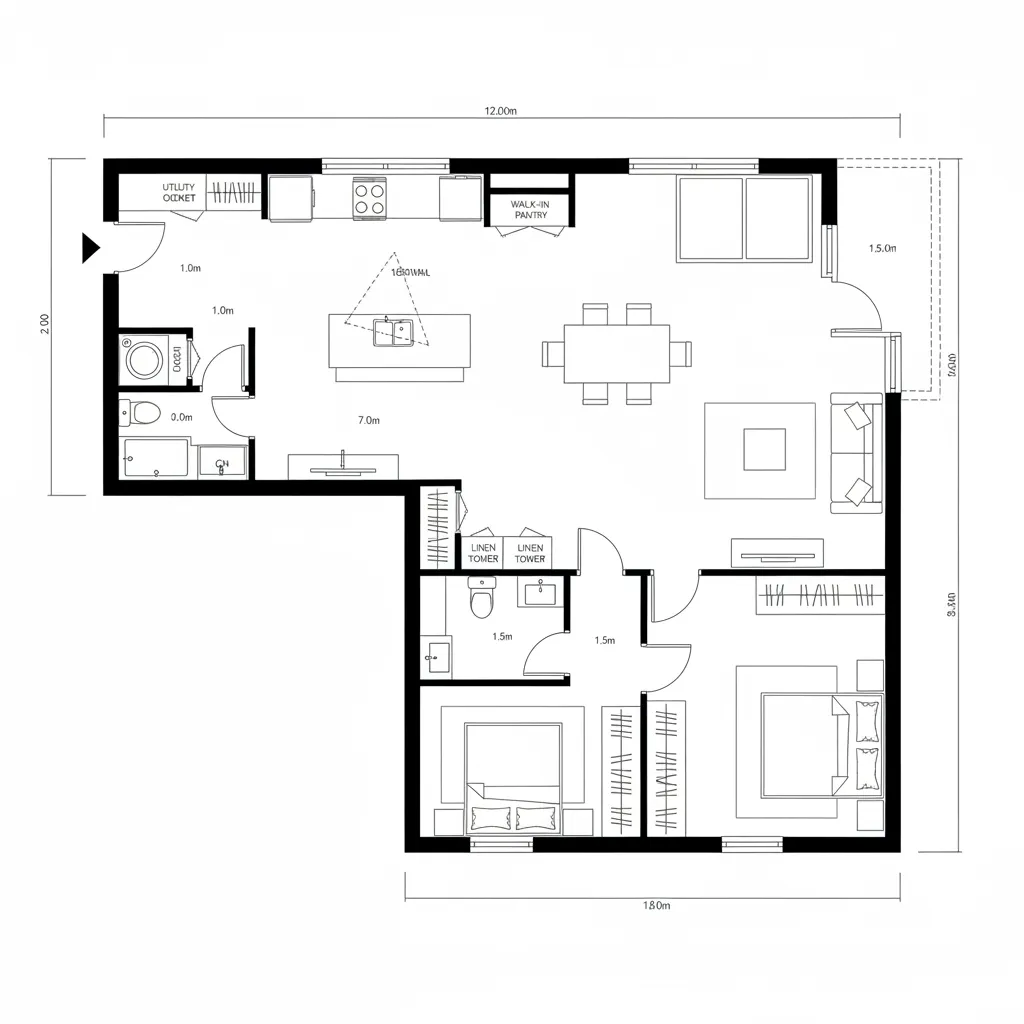
L-Shaped 2 BHK Layouts, Tuned for Future Living: Two-bedroom interfaces that choreograph flow, sightlines, and storage like a well-coded systemAnsel LakeDec 12, 2025Table of ContentsLayout 1: Long-L Arm with Corner CoreLayout 2: Split-L with Dual Aspect BedroomsLayout 3: Compact-L with Wrapped KitchenFinal TakeawayTable of ContentsLayout 1 Long-L Arm with Corner CoreLayout 2 Split-L with Dual Aspect BedroomsLayout 3 Compact-L with Wrapped KitchenFinal TakeawayFree floor plannerEasily turn your PDF floor plans into 3D with AI-generated home layouts.Convert Now – Free & InstantThe future lifestyle is compressing attention and expanding adaptability, while today’s households still battle corridor drag and storage latency. Data from NAHB shows shifting buyer priorities toward flexible rooms and smarter circulation, and that’s where l shaped 2 bhk apartment floor plan layouts start behaving like a responsive interface. The future has been inching closer, and I already see its outline in how an L bends traffic, light, and furniture protocols—anchoring the system with spatial reasoning toolkit.Layout 1: Long-L Arm with Corner CoreDesign Logic: The longer L establishes a main spine with a corner node for shared functions; future routines favor modular overlap of dining, work, and lounge.Flow: Entry→utility pocket→open kitchen/dining→living node→private wing down the short leg; instructions execute with minimal branching.Sightlines: Kitchen to living to balcony creates a tiered UI, with softened angles preventing visual noise into bedrooms.Storage: Corner core hosts a deep pantry + linen tower; hallway niches act as fast-access cache to reduce retrieval time.Furniture Fit: A 84" sofa, 30" deep media wall, and a 60" dining table align to the spine, avoiding API conflicts at the elbow.Verdict: This arrangement forecasts five years of hybrid living, keeping bandwidth open for kids, guests, or remote work without re-coding the shell.save pinLayout 2: Split-L with Dual Aspect BedroomsDesign Logic: The L’s short leg separates sleeping nodes, responding to future privacy standards and multi-shift households.Flow: Entry→galley kitchen→living hub at the bend→primary suite down one axis, secondary bedroom opposite; clean function calls.Sightlines: Living room holds the main viewport; angled thresholds stage progressive disclosure to each bedroom.Storage: Integrated wall runs in the living hub, under-bench cache near the bend, and symmetrical closets for balanced load.Furniture Fit: Queen beds with 30" clearance, a 48" desk slot in each room, and a compact 36" kitchen island maintain precise protocols.Verdict: The split logic anticipates co-living patterns and study zones, sustaining clarity even as schedules stack and roles multiplex.save pinLayout 3: Compact-L with Wrapped KitchenDesign Logic: A tight L frames a wraparound kitchen, future-proofing micro rituals—meal prep, quick calls, kid homework—without collisions.Flow: Entry→drop zone→U-kitchen at the elbow→living pad→bedroom branch; the sequence compresses idle time like optimized code.Sightlines: From entry, the kitchen’s low profile yields to a long living view; bedrooms are visually sandboxed behind soft turns.Storage: Overhead kitchen runs + toe-kick drawers as micro cache, plus a hall armoire acting as a centralized repository.Furniture Fit: 72" sectional, nested coffee tables, and a 30" deep wall desk align with the L, preventing API overflow in tight radii.Verdict: Compact yet elastic, this plan handles growth spurts—new hobbies, small family additions—without re-architecting the whole system.save pinFinal TakeawayL-shaped 2 BHK apartment floor plan layouts read like code for how families will actually operate: lean, modular, and clear about priorities. Variants like two-bedroom units and corner-turning plans keep traffic predictable while letting light and storage behave like disciplined infrastructure. Long-tail needs—from work-from-home bays to dual-aspect rest—fit into the L without bloating the shell. In my experience, the smartest homes of the future won’t be larger—only more intentional.Convert Now – Free & InstantPlease check with customer service before testing new feature.Free floor plannerEasily turn your PDF floor plans into 3D with AI-generated home layouts.Convert Now – Free & Instant