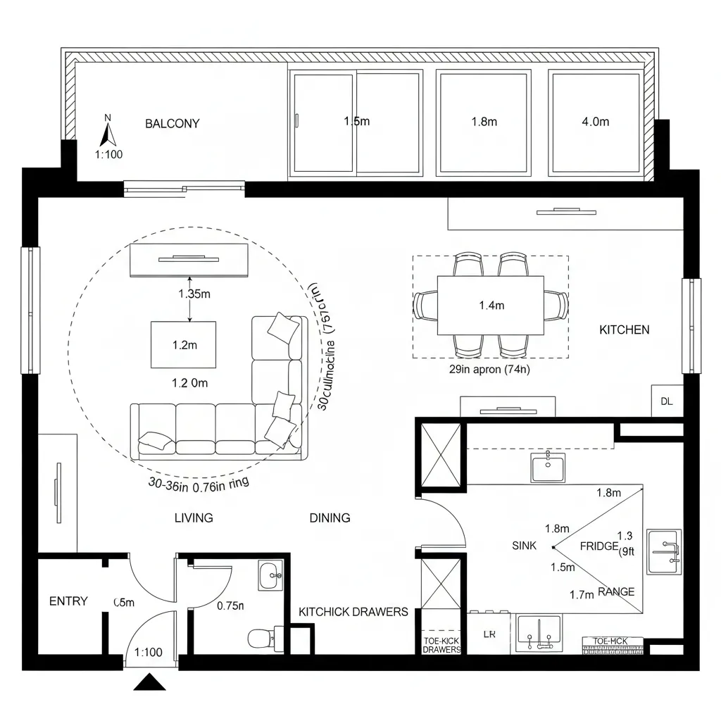
Mahendra Elena 5: Future-Ready Floor Plan Notes: Reading a contemporary Indian apartment through an American residential lens—space as a lifestyle interfaceAri Vale, Residential FuturistDec 12, 2025Table of Contents2-Bedroom Core with Convertible StudyOpen Living-Dining with Semi-Closed KitchenMaster Suite with Layered Privacy## Final TakeawayTable of Contents2-Bedroom Core with Convertible StudyOpen Living-Dining with Semi-Closed KitchenMaster Suite with Layered Privacy## Final TakeawayFree floor plannerEasily turn your PDF floor plans into 3D with AI-generated home layouts.Convert Now – Free & InstantThe future is tightening its radius around domestic life, while today’s residents still fight storage drag, corridor latency, and light-starved corners. Industry data keeps confirming it: AIA’s recent home design trends show rising demand for flexible rooms and integrated tech, which I read as code for adaptive floor plan interfaces. In this context, the mahendra elena 5 floor plan becomes my test bench for tomorrow’s routines. And I see it as a prototype for how small spatial decisions will recalibrate the bigger loop of living. spatial reasoning toolkit2-Bedroom Core with Convertible StudyDesign Logic: Two sleeping nodes anchor the plan while a pocketable study flexes into guest or WFH—aligned with the future’s hybrid cadence and NAHB’s steady demand for multipurpose rooms.Flow: Entry → living hub → branching to kitchen and bedrooms; a clean instruction sequence minimizes cross-traffic, keeping private routines sandboxed.Sightlines: From living to balcony, then diagonals to the study glass—UI layers move from public feed to focused pane, clarifying attention hierarchies.Storage: Wardrobes as vertical cache, a hallway console for daily packets, and a deep kitchen pantry acting like long-term memory storage.Furniture Fit: Sofa at 84–90 inches, dining for 4 with a 36x60 table, study desk at 24x48—API limits tuned to circulation bandwidth and future gear expansion.Verdict: This layout anticipates flexible work and micro-hosting, staying stable as life toggles between presence and privacy over the next five years.save pinOpen Living-Dining with Semi-Closed KitchenDesign Logic: The social kernel remains open for flow and light while the kitchen keeps a semi-closed envelope to control acoustics and thermal spill—future-proof for multi-device cooking.Flow: Balcony → living → dining → kitchen pass-through; a progressive pipeline reduces bottlenecks during peak family compile times.Sightlines: Long axis to the exterior, short axis to task surfaces; visual hierarchy ranks horizon first, operations second—less cognitive noise.Storage: Full-height cabinetry to 8–9 ft, toe-kick drawers as micro-cache, and a utility niche for cleaning tools—order surfaces remain clean.Furniture Fit: Modular sectional with a 30–36 inch clearance ring; dining chairs fit under a 29-inch apron; media console capped at 72 inches to protect sight bandwidth.Verdict: Social energy and task rigor coexist; I see durable daily rhythms with low maintenance load and clear command lines.save pinMaster Suite with Layered PrivacyDesign Logic: Bedroom, dressing, and bath operate as stacked permissions: rest, prep, reset—future wellness mapped to spatial tiers.Flow: Bed zone → dressing → bath; no cross-bleed into public routes, keeping private protocols contained.Sightlines: Bed to a soft focal wall, dressing kept oblique, mirror angles controlled—UI reduces glare and overexposure of personal data.Storage: 24-inch deep wardrobes, overhead lofts for seasonal cache, vanity drawers as quick-access buffers—everything indexed.Furniture Fit: King bed at 76x80 with 24–30 inch side aisles; bench at 16x48; nightstands within 18–24 inches—precision protects circulation APIs.Verdict: A quiet command center for recovery and routine; the next five years bring more bio-sensing, and this suite has the bandwidth for it.save pin## Final TakeawayThe mahendra elena 5 floor plan reads like a compact operating system where movement, light, and storage negotiate the future’s mixed realities. Its variants—2-bedroom unit, flexible study, and open social core—translate tomorrow’s hybrid living into precise geometry. In my experience, the most resilient homes will scale intention, not square footage; and I keep seeing how fine-grain spatial APIs rewrite daily life.Convert Now – Free & InstantPlease check with customer service before testing new feature.Free floor plannerEasily turn your PDF floor plans into 3D with AI-generated home layouts.Convert Now – Free & Instant