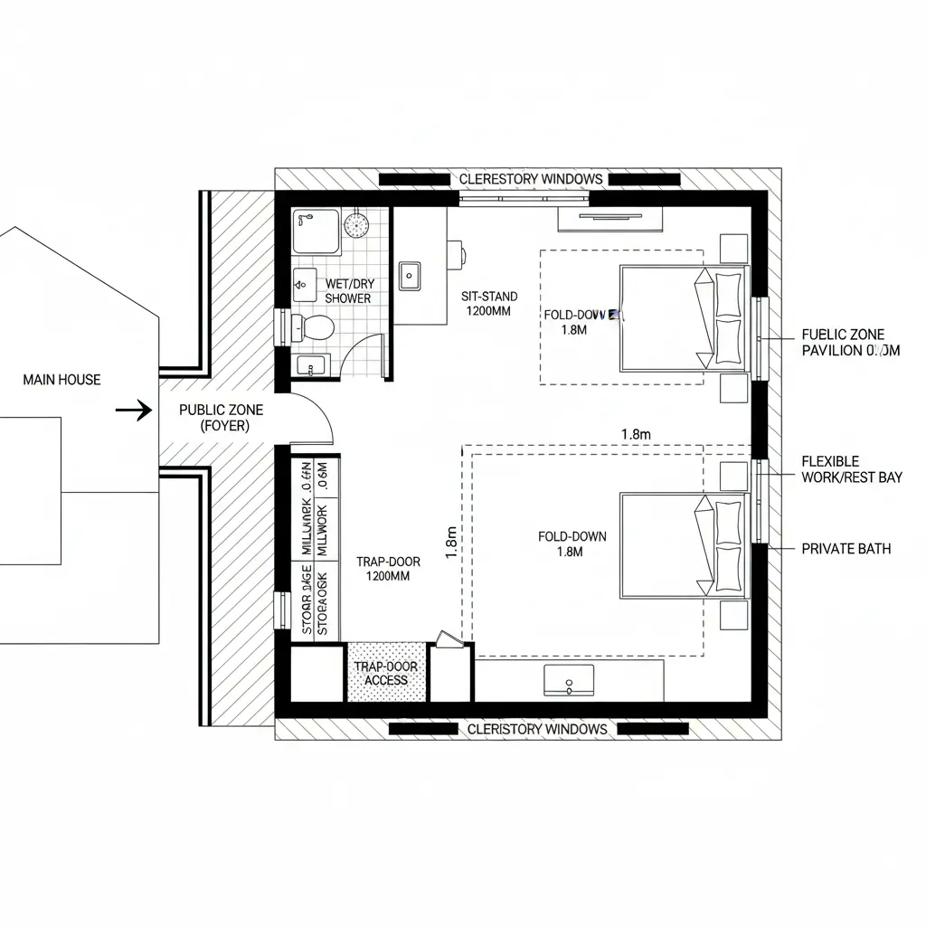
Mediterranean Villa Layout, Recompiled: A futurist designer’s read on sun, shadow, and bandwidth inside a timeless shellAtlas QuillonDec 04, 2025Table of ContentsCourtyard Spine with Split Day/Night RingsTerraced Living Stack Facing the SeaDetached Studio Pavilion as Autonomous NodeFinal TakeawayTable of ContentsCourtyard Spine with Split Day/Night RingsTerraced Living Stack Facing the SeaDetached Studio Pavilion as Autonomous NodeFinal TakeawayFree floor plannerEasily turn your PDF floor plans into 3D with AI-generated home layouts.Convert Now – Free & InstantThe future presses in through climate, remote work, and the need to host micro-communities—while current villas still leak time in circulation, glare, and storage debt. As AIA reporting shows sustained demand for adaptable multi-generational zones, the Mediterranean villa layout becomes a lab for resilient domestic networks. I see the horizon arriving early in these rooms, and I treat the plan like a firmware update to daily life, a spatial reasoning toolkit that anticipates new rituals.Courtyard Spine with Split Day/Night RingsDesign Logic: A central courtyard becomes the thermal engine; day functions orbit sun, night rooms ride the shadow ring—future heat waves require passive buffers.Flow: Entry → covered loggia → kitchen/living loop → courtyard → bedrooms; a circular routine that compiles cleanly at peak hours.Sightlines: Axial view from door to olive tree, then lateral cuts to water and sky; information layers reduce cognitive load.Storage: Deep perimeter niches as cache; bench-height plinths store seasonal gear, pantry walls handle provisioning spikes.Furniture Fit: 900–1000 mm path widths; modular sofas in 2.7–3 m spans; dining 900×2000 mm to host hybrid work suppers.Verdict: This spine metabolizes light and heat like an operating system, stable across five summers of climate volatility.save pinTerraced Living Stack Facing the SeaDesign Logic: Step the plan in sections so each terrace becomes a program node—living, studio, and guest layer without collisions.Flow: Kitchen core → indoor dining → sliding threshold → terrace tier → plunge court; latency-free for hosting and remote calls.Sightlines: Low sill windows and cut corners create a panoramic feed; horizon as HUD, foreground as widgets.Storage: Under-terrace vaults act as cold cache; exterior cabinets for gear prevent interior entropy during high season.Furniture Fit: Outdoor modules at 650 mm seat height; stackable loungers align with 1.2 m grid; awning radius mapped to sun path.Verdict: Terraces behave like scalable bandwidth—when guests arrive, capacity expands without rewriting the core.save pinDetached Studio Pavilion as Autonomous NodeDesign Logic: A small pavilion near the garden operates as a sovereign process—work, wellness, or elder suite, future-proofing care cycles.Flow: Main house → shaded arcade → pavilion foyer → flexible bay → pocket bath; movement stays off the family bus line.Sightlines: Offset glazing preserves privacy while keeping garden telemetry; clerestories read sky conditions like system status.Storage: Wall-depth millwork caches tools and linens; floor trap-door for archive; everything indexed, nothing ad hoc.Furniture Fit: 1.5 m clear around a 1.8 m fold-down bed; sit-stand desk at 1200 mm span; soft partitions on a 600 mm rhythm.Verdict: An autonomous node lets the villa negotiate future roles—income, care, retreat—without fragmenting the parent plan.save pinFinal TakeawayThe Mediterranean villa layout isn’t nostalgia; it’s a climate-native interface tuned for tomorrow. With courtyards, terraces, and autonomous pavilions, the plan compiles into adaptable living where light, airflow, and privacy act like protocols. From sea-facing tiers to night-ring bedrooms, I align long-tail needs like multigenerational living and hybrid work, and in my experience, the smartest homes of the future won’t be larger—only more intentional.Convert Now – Free & InstantPlease check with customer service before testing new feature.Free floor plannerEasily turn your PDF floor plans into 3D with AI-generated home layouts.Convert Now – Free & Instant