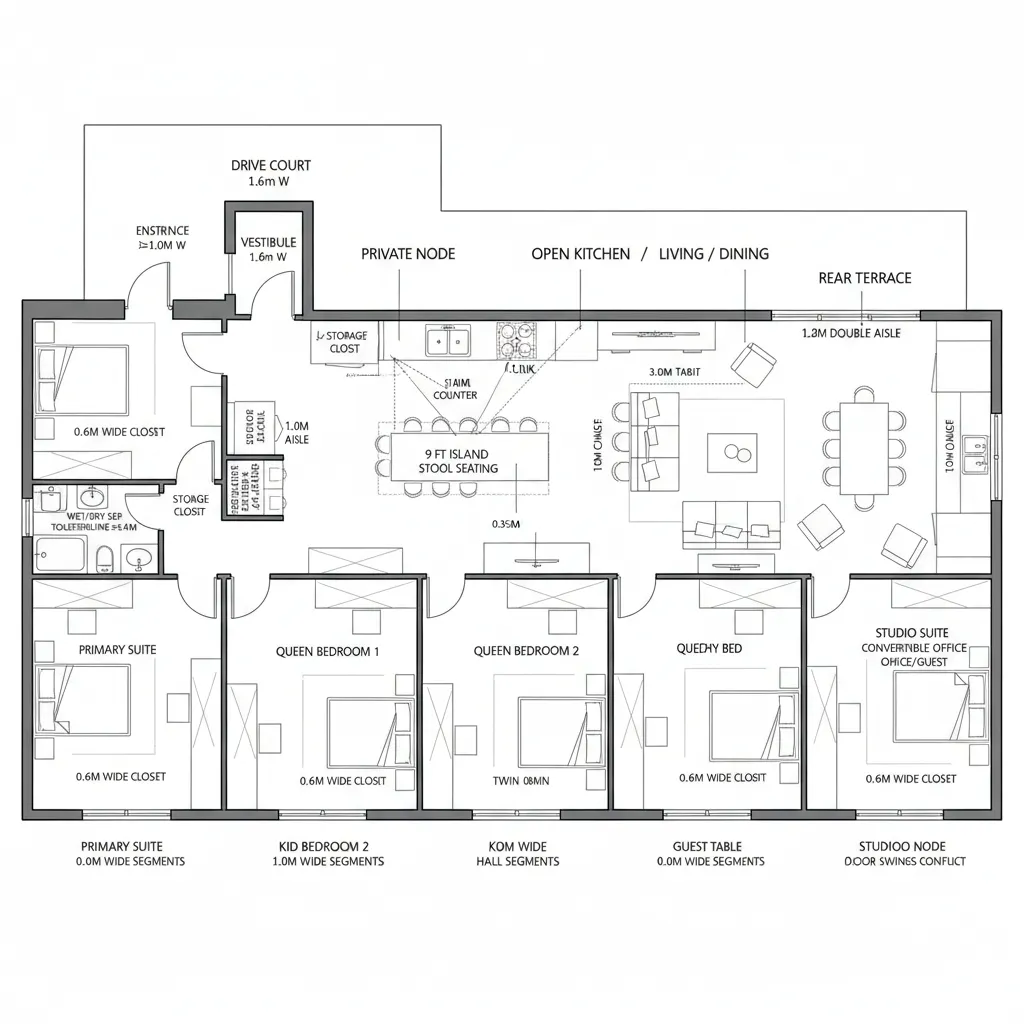
Modern 5-Bedroom House Floor Plans: A future-forward interface for multi-modal family livingR. K. MorrowDec 10, 2025Table of ContentsCourtyard Core + Split WingsLinear Bar + Flex NodesSplit-Level Matrix + LoftFinal TakeawayTable of ContentsCourtyard Core + Split WingsLinear Bar + Flex NodesSplit-Level Matrix + LoftFinal TakeawayFree floor plannerEasily turn your PDF floor plans into 3D with AI-generated home layouts.Convert Now – Free & InstantFuture living keeps arriving in smaller, smarter intervals, while current households wrestle with noise, zoning, and storage fragmentation. spatial reasoning toolkit sits in my head whenever I draft modern 5 bedroom house floor plans, because AIA and NAHB data keep signaling flexible rooms and multigenerational patterns aren’t a trend but a baseline. The friction we feel today—work shifts, care roles, media bandwidth—demands plans that compile lifestyle variables without breaking the interface.Courtyard Core + Split WingsDesign Logic:Central courtyard acts as thermal and social kernel; two bedroom wings decouple privacy from activity, matching the rise of multigenerational living.Flow:Entry → gallery spine → great room → courtyard → left family wing; right guest/office wing; garage mud loop closes the circuit.Sightlines:Layered from foyer to garden plane, with cross-views that anchor orientation while shielding bedrooms from high-traffic visuals.Storage:Perimeter built-ins, deep pantry, dual linen hubs; a mudroom “cache” buffers daily throughput.Furniture Fit:Modular sofas, 10–12 seat dining, king/queen grids in bedrooms; API-limited alcoves ensure circulation bandwidth isn’t throttled.Verdict:This plan feels like a system that self-balances—public energy in the center, private processes at the edges, ready for five years of shifting roles.save pinLinear Bar + Flex NodesDesign Logic:A long bar of public spaces with five rooms pinned as flexible nodes supports hybrid work, teen zones, and visiting relatives without reboots.Flow:Drive court → vestibule → open kitchen/living → terrace; nodes branch: primary suite, two kid rooms, guest room, studio suite.Sightlines:Long axial reading from kitchen to terrace horizon; secondary diagonals let supervision happen without surveillance.Storage:Wall-length millwork, appliance garages, under-stair cache, distributed wardrobes to reduce bottlenecks.Furniture Fit:Sectional + two accent chairs, 9’ island with stool API, calibrated desk nooks; beds align to window logic to keep light hierarchy clean.Verdict:The bar reads like a command line—simple, extensible, and future-safe as family variables compile and recompile.save pinSplit-Level Matrix + LoftDesign Logic:Half-level shifts create acoustic buffers; five bedrooms map to altitude, giving choice of proximity and quiet as lifestyles fragment.Flow:Entry → mid-level great room → upper primary + two beds → garden level two beds + media; loft caps the stack for deep work.Sightlines:Vertical UI: stair reveals, borrowed light, framed trees; privacy gradients tuned by riser count, not hard walls alone.Storage:Stair landings hide deep drawers; attic shelf matrix; climate-stable media closet; seasonal cache off the garden.Furniture Fit:Low-profile sofas to preserve sightlines, platform beds, flexible studio desks; clearances respect stair swing and landing bandwidth.Verdict:This matrix anticipates timezones within one household—quiet layers, loud layers, and a loft that keeps tomorrow’s work nearby.save pinFinal TakeawayModern 5 bedroom house floor plans aren’t about size inflation; they’re about interfaces that route energy, rest, and work with intent. With multigenerational living and hybrid careers rising, five-room configurations become the adaptive kernel for family complexity. Long-tail needs—guest suites, studio-grade acoustics—belong inside the plan’s code, not bolted on later. In my experience, the smartest homes of the future won’t be larger—only more intentional.Convert Now – Free & InstantPlease check with customer service before testing new feature.Free floor plannerEasily turn your PDF floor plans into 3D with AI-generated home layouts.Convert Now – Free & Instant