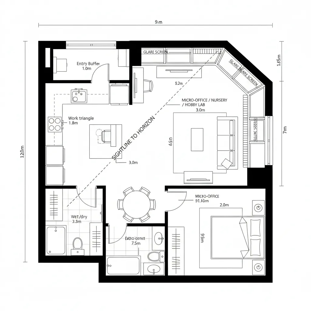
Modern Condo Floor Plan, Rendered as a Near-Future Interface: How I code everyday life into a precise, resilient apartment topologyAvery K. North, Residential FuturistDec 04, 2025Table of ContentsSplit-Core Axis with Perimeter FlexLooped Gallery with Sliding PartitionsCorner Panorama with Micro-Office NicheFinal TakeawayTable of ContentsSplit-Core Axis with Perimeter FlexLooped Gallery with Sliding PartitionsCorner Panorama with Micro-Office NicheFinal TakeawayFree floor plannerEasily turn your PDF floor plans into 3D with AI-generated home layouts.Convert Now – Free & InstantThe future presses in; daily bandwidth keeps thinning, and households need layouts that perform like software. Industry data keeps echoing this: Houzz reports rising demand for adaptable zones and storage efficiency across compact homes. In that light, the modern condo floor plan becomes a compiled script for how we’ll actually live tomorrow—responsive, modular, and calm. spatial reasoning toolkitZillow’s user behavior shows sustained interest in flexible living-dining hybrids, confirming what my clients feel: pain points aren’t just square footage—they’re latency, glare, and clutter.Split-Core Axis with Perimeter FlexDesign Logic: A central utility spine (kitchen + bath + washer) stabilizes the plan, freeing windowed edges for living/sleep/zoom alcoves; the future favors adaptive perimeters for shifting routines.Flow: Entry → drop zone → kitchen node → living bay → balcony; private module slices off along the axis like a branch in version control.Sightlines: From door, a soft diagonal frames glazing, hiding beds; UI layers: threshold, prep, social, horizon.Storage: Spine hosts tall pantry/linen as cache; shallow perimeter millwork buffers visual noise, keeping RAM free.Furniture Fit: 84–96" sofa, 30" deep table on casters, queen in a 9'6" bay with 30" side aisles; all APIs match daily scripts.Verdict: This layout scales with hybrid work; five years on, only the accessories update—the core remains stable.save pinLooped Gallery with Sliding PartitionsDesign Logic: A loop corridor doubles as display/storage beam, while pocket sliders recompile rooms from open studio to two-zone hush; future living rewards reversible states.Flow: Entry → gallery loop → kitchen island → lounge → bedroom pod; circulation never dead-ends, like a non-blocking thread.Sightlines: Sightlines cascade through partial reveals; glass-top sliders transmit daylight but throttle privacy like permissions.Storage: 18" deep gallery cabinets, overhead track bins, toe-kick drawers—a tiered cache hierarchy for fast/slow access.Furniture Fit: 36" clearance around island, 8x10 rug anchors lounge, wall bed API clears 70" when stowed for workout mode.Verdict: Modularity keeps social and sleep processes decoupled; upgrade the panels, not the footprint.save pinCorner Panorama with Micro-Office NicheDesign Logic: Prioritize the corner window as the primary monitor—everything else subordinates to daylight and cross-vent; future tenants trade square feet for sensory quality.Flow: Entry buffer → kitchen L → panoramic living → office niche → bedroom; a clean instruction set minimizing context switching.Sightlines: Long view to horizon, short view to task plane; glare managed by ribbed screens acting like UI dimmers.Storage: Bench-bay under windows, vertical niche library, concealed printer bay—cache close to compute.Furniture Fit: Compact 24" depth desk nested in a 5' niche, 42" round table for agile dining, low-profile credenza to protect glass lines.Verdict: Over five years, the niche toggles between office, nursery, and hobby lab without breaking the main panorama.save pinFinal TakeawayA modern condo floor plan is less a picture and more a protocol: flows, caches, and APIs tuned for dense, luminous living. Semantic variants—open-plan condo layouts, compact condo design, adaptive apartment zoning—are simply dialects of the same code. Long-tail needs like small balcony integration and flexible guest sleeping resolve when the plan behaves like software. In my experience, the smartest homes of the future won’t be larger—only more intentional.Convert Now – Free & InstantPlease check with customer service before testing new feature.Free floor plannerEasily turn your PDF floor plans into 3D with AI-generated home layouts.Convert Now – Free & Instant