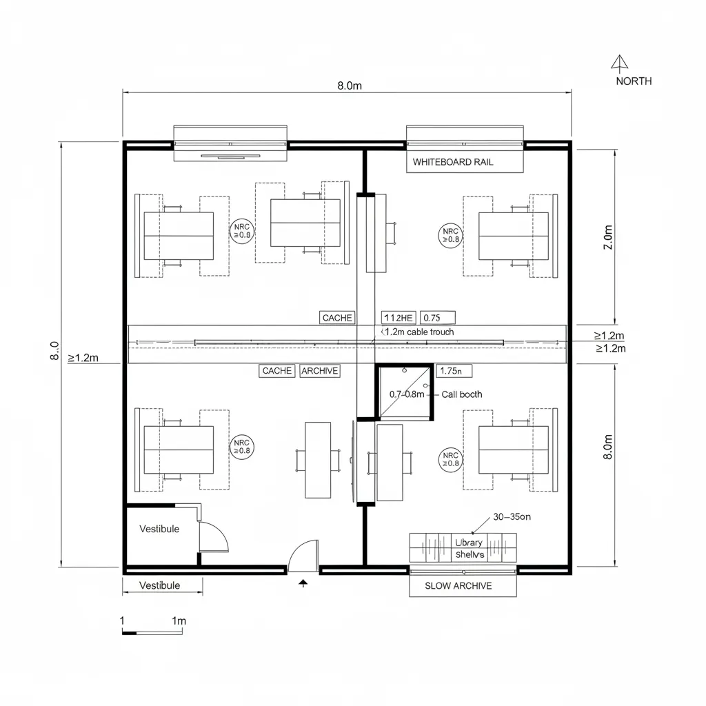
Office Floor Plan for 4: A Future-Ready Micro-Habitat: Designing a 4-person workspace as a living interface for work, focus, and calmAtlas W. MendelDec 13, 2025Table of ContentsQuad Grid with Shared CoreLinear Spine with Acoustic PocketsPinwheel Collaboration HubFinal TakeawayTable of ContentsQuad Grid with Shared CoreLinear Spine with Acoustic PocketsPinwheel Collaboration HubFinal TakeawayFree floor plannerEasily turn your PDF floor plans into 3D with AI-generated home layouts.Convert Now – Free & InstantThe future presses closer every quarter, while today’s small teams still wrestle with noise, focus drift, and clutter. According to Houzz, workspace upgrades tied to acoustics and layout have spiked in planning discussions—proof that people feel the strain. I’m looking at an office floor plan for 4 members as an early codebase for how we’ll work next, integrating presence, privacy, and agile rhythm—like a spatial reasoning toolkit wrapped in daily routines.Quad Grid with Shared CoreDesign Logic:Four individual workstations anchor the corners; a shared core holds a meeting pod and materials node—future work needs both solitude and quick syncs.Flow:Enter → drop zone → personal desk → shared pod → resource wall → exit; a clean loop that behaves like a predictable function call.Sightlines:Diagonal sight lines allow peripheral awareness without face-to-face glare; the pod remains visually quiet, like a muted layer in UI.Storage:Per-desk vertical modules + a central archive cabinet act as fast cache and deep storage, maintaining bandwidth for focus.Furniture Fit:48–60" desks with ergonomic chairs; pod for 2–3 seated; millwork at 14" depth keeps the API tight yet flexible.Verdict:This grid scales—adding sensors for light and sound will keep the next five years calm, adaptive, and legible.save pinLinear Spine with Acoustic PocketsDesign Logic:A central spine (bench + cable trough) splits into four acoustic pockets; it respects hybrid rhythms where calls and deep work interleave.Flow:Spine entry → pocket selection → call booth → whiteboard rail → library shelf; a branching path that feels like modular code.Sightlines:Low partitions create layered visibility; focus zones sit outside direct glare, UI-like emphasis on primary tasks.Storage:Under-bench drawers for fast-reach tools; wall-mounted shelves for slow archive—clear tiers of cache and cold storage.Furniture Fit:Bench depth 30"; pocket desks 48"; acoustic panels at NRC ≥ 0.8; precise tolerances that honor cognitive latency.Verdict:This spine keeps micro-teams nimble; the mix of hush and quick access reads as future-proof for small sprints.save pinPinwheel Collaboration HubDesign Logic:Four desks rotate around a central round table; the pinwheel orients energy toward a hub, useful for fast decisions and shared artifacts.Flow:Perimeter entry → personal station → hub table → sideboard tools → retreat nook; a circular routine with minimal context switching.Sightlines:Soft radial views maintain peripheral connection; the hub acts like a primary node, edges become secondary layers.Storage:360° sideboard ring for supplies; individual lockers as private cache—order survives through predictable addresses.Furniture Fit:Round 48–54" table; desks at 50"; swivel task chairs; clearances of 36" keep the API open for movement.Verdict:The pinwheel nurtures quick consensus; over five years it adapts to mixed in-person and remote, staying legible and humane.save pinFinal TakeawayAn office floor plan for 4 members is less about square footage and more about interfaces—flow, latency, and shared intelligence. Variants like a quad grid, linear spine, or pinwheel hub translate future work into tangible layouts. In my experience, the smartest small offices don’t get bigger; they get more intentional, and I keep designing them like living software.Convert Now – Free & InstantPlease check with customer service before testing new feature.Free floor plannerEasily turn your PDF floor plans into 3D with AI-generated home layouts.Convert Now – Free & Instant