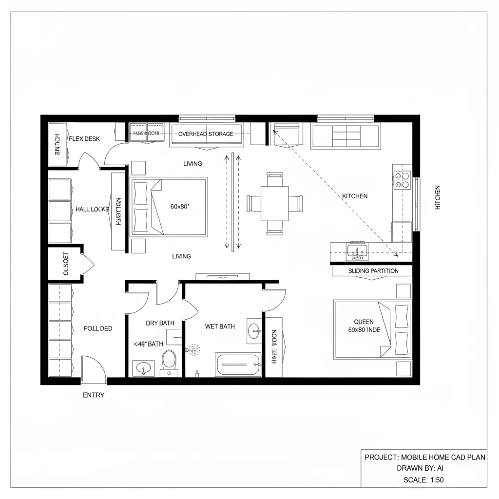
One-Bedroom Mobile Home: A Future-Ready Floor Plan: How a compact interface of living anticipates tomorrow’s rhythmsNorthstar Latency, AIADec 03, 2025Table of ContentsFront-Porch Entry + Center SpineRear Kitchen + Corner LoungeSplit Bath Core + Sliding PartitionsFinal TakeawayTable of ContentsFront-Porch Entry + Center SpineRear Kitchen + Corner LoungeSplit Bath Core + Sliding PartitionsFinal TakeawayFree floor plannerEasily turn your PDF floor plans into 3D with AI-generated home layouts.Convert Now – Free & InstantThe future keeps leaning into small, adaptive vessels, while today’s pain points—noise, clutter, energy drift—still leak through thin walls and thinner routines. According to NAHB, smaller homes with smarter layouts continue to outpace larger footprints in buyer interest, because they convert square footage into utility, not excess. In this 1 bedroom mobile home floor plan, I model space as software—lean code, clean compile—so daily life boots fast and rarely crashes. And I keep returning to a spatial reasoning toolkit that lets me see tomorrow’s patterns before furniture even lands.Front-Porch Entry + Center SpineDesign Logic: A shallow porch buffers climate and privacy, feeding a center spine that splits public and private like two threads in sync. Future mobility needs favor clear zoning to absorb remote work and micro-guests without code conflicts.Flow: Threshold → coat niche → galley-kitchen node → dining strip → lounge bay → pocket door → bedroom kernel → bath at tail; minimal backtracking, maximal cycles per day.Sightlines: From entry, diagonals skim past the kitchen to a wide window; the bedroom remains one click deeper, off the main UI, reducing cognitive noise.Storage: Spine hosts a 14–18" deep wall of cabinets—pantry, utility, linen—acting as cache memory that speeds retrieval and hides latency.Furniture Fit: 72–78" sofa, 30" round table, 24" counter stools; bedroom accepts a queen with 24" clear each side—API limits defined, no overflows.Verdict: This layout compiles cleanly for couples or solos who toggle modes daily; five years out, it still flexes as devices shrink and routines fragment.save pinRear Kitchen + Corner LoungeDesign Logic: Putting the kitchen at the cool rear stabilizes heat and smell, freeing the sunny corner as a communal display, like a dashboard for mood and guests.Flow: Side entry → drop zone → corridor gallery → corner lounge → pivot to rear kitchen → bedroom off mid-corridor → bath adjacent; a loop that prevents dead ends.Sightlines: Corner glazing acts as a primary HUD; secondary lines bounce along upper cabinets to the corridor art, keeping the eye scrolling rather than stalling.Storage: Toe-kick drawers, ceiling-hung pot rail, and a rear pantry column create a tiered cache: hot data (daily use) low-friction, cold data high-density.Furniture Fit: L-shape sectional 90–96" max, nesting tables, 9–10' galley with 24" modules; bedroom built-ins at 21" depth keep pathways true.Verdict: Ideal for hosts who cook in bursts; the spatial OS anticipates meal-prep spikes without throttling living bandwidth.save pinSplit Bath Core + Sliding PartitionsDesign Logic: A split bath core decouples sink/WC from shower, letting two processes run parallel; future schedules love concurrency without collisions.Flow: Entry → flex desk niche → living deck → slide open to dine → pocket to bath core → branch to bedroom; partitions act like toggles, not walls.Sightlines: When sliders open, a clean axis stitches front window to bedroom clerestory; when closed, layers flatten to private cards.Storage: Overhead soffit with sliding bins, bed pedestal drawers, and a 3-module hall locker; the cache is labeled, not bloated.Furniture Fit: 30" workstation, wall-bed option (60x80) for guest overflow, 48" shower with linear drain; dimensions tuned to motion, not just objects.Verdict: This scheme ages well for remote work and micro-family phases; over five years, it absorbs role changes without refactoring the shell.save pinFinal TakeawayA 1 bedroom mobile home floor plan isn’t a compromise; it’s a precise interface where circulation, storage, and sightlines negotiate tomorrow’s pace. With compact living layouts and modular tiny-home planning as allies, the best small homes upgrade behavior, not just finishes. The next decade favors systems that boot quickly, cache wisely, and render calm at every viewport. In my experience, the smartest homes of the future won’t be larger—only more intentional.Convert Now – Free & InstantPlease check with customer service before testing new feature.Free floor plannerEasily turn your PDF floor plans into 3D with AI-generated home layouts.Convert Now – Free & Instant