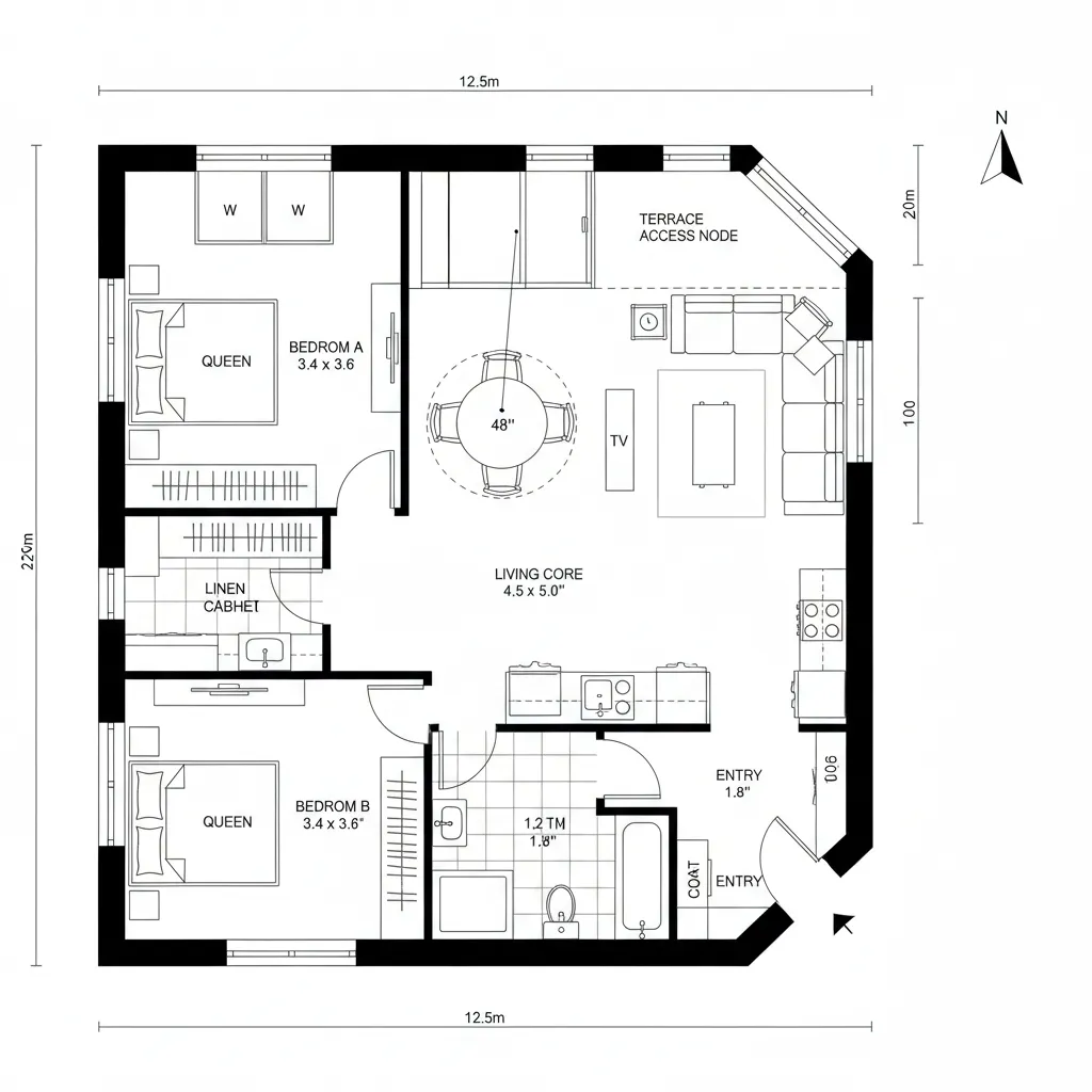
Onella Nest Phase 2 — Floor Plan Futures: Reading a contemporary layout as the interface for tomorrow’s habitsAiden NorthDec 26, 2025Table of ContentsSplit-Core 2-Bed Layout with Hybrid DenLinear One-Bed with Expandable Studio EdgeCorner 2-Bed with Dual Aspect Living CoreFinal TakeawayTable of ContentsSplit-Core 2-Bed Layout with Hybrid DenLinear One-Bed with Expandable Studio EdgeCorner 2-Bed with Dual Aspect Living CoreFinal TakeawayFree floor plannerEasily turn your PDF floor plans into 3D with AI-generated home layouts.Convert Now – Free & InstantCoohom official:Floor Plan Drawings BasicsThe future presses closer each quarter, and current frictions—privacy, storage entropy, and hybrid work—keep surfacing in the Onella Nest Phase 2 floor plan. Industry data from NAHB shows buyers consistently prioritize functional layouts and flexible rooms; I design as if the plan were code compiling tomorrow’s rituals. In that frame, the onella nest phase 2 floor plan becomes a living algorithm for domestic bandwidth, not a fixed diagram. spatial reasoning toolkitSplit-Core 2-Bed Layout with Hybrid DenDesign Logic: Bedrooms split to opposite ends create a privacy buffer while centralizing shared utilities—a pattern aligned with remote work and multigenerational rhythms.Flow: Entry → drop zone → kitchen spine → living node → den module → bedroom wings; the path executes like a clean function call with minimal backtracking.Sightlines: From the kitchen island, long axial view to glazing; side glances terminate at the den, a semi-opaque layer managing visual load like UI tiers.Storage: Perimeter wall closets act as cache; a deep pantry plus under-bench compartments stabilize daily throughput.Furniture Fit: 84–96" sofa, 30" deep desk in den, queen beds with 30" clearance; every piece respects the API of circulation widths.Verdict: In five years, this split-core will feel prescient—privacy and collaboration toggled without spatial recompile.save pinOpen in 3D Planner Processing... Linear One-Bed with Expandable Studio EdgeDesign Logic: A linear bar organizes utilities in sequence, freeing the window wall for living; the studio edge flexes for fitness, craft, or Zoom stage.Flow: Foyer → storage rib → galley kitchen → living strip → studio edge → bedroom; a left-to-right instruction set with clear dependency order.Sightlines: Sight cascades from entry to the bright terminus; partial height shelving near the studio acts as a gentle visual firewall.Storage: Tall 24"-deep wardrobe + overheads, toe-kick drawers, and a rolling trunk—micro caches layered to prevent overflow.Furniture Fit: 72" sofa, nesting coffee tables, 36" round dining, queen bed with wall-mounted night shelves to save bandwidth.Verdict: The linear grammar future-proofs small rituals; it reads like elegant code—few lines, no bugs.save pinOpen in 3D Planner Processing... Corner 2-Bed with Dual Aspect Living CoreDesign Logic: Dual aspect living stabilizes circadian cues and reduces HVAC load; bedrooms anchor orthogonal corners for acoustical separation.Flow: Corner entry → coat cache → L-kitchen → living core → terrace node → bedroom A/B; loops allow parallel tasks without collisions.Sightlines: Primary axis runs window-to-window; secondary axis frames kitchen to terrace, a clear hierarchy of visual information.Storage: Built-in bench along terrace wall, double-depth linen, and split wardrobe stacks—like tiered memory for quick read/write.Furniture Fit: 90" sectional, 48" dining round centered on the light cone, desks at 30" x 60" nested in corners.Verdict: Dual aspect becomes a wellness protocol; users will experience fewer visual bottlenecks and more breathable routines.save pinOpen in 3D Planner Processing... Final TakeawayThe onella nest phase 2 floor plan reads like a flexible operating system, where rooms are modules and routines are scripts. Variations—split-core, linear bar, or dual aspect—each tune bandwidth for hybrid living and future-proof storage semantics. In my projects, the smartest apartments aren’t larger; they’re more intentional in flow, sightlines, and furniture APIs, and I believe that’s the real frontier.Convert Now – Free & InstantPlease check with customer service before testing new feature.Free floor plannerEasily turn your PDF floor plans into 3D with AI-generated home layouts.Convert Now – Free & Instant