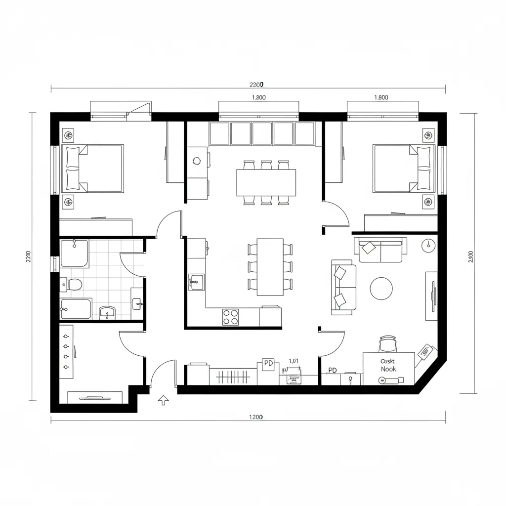
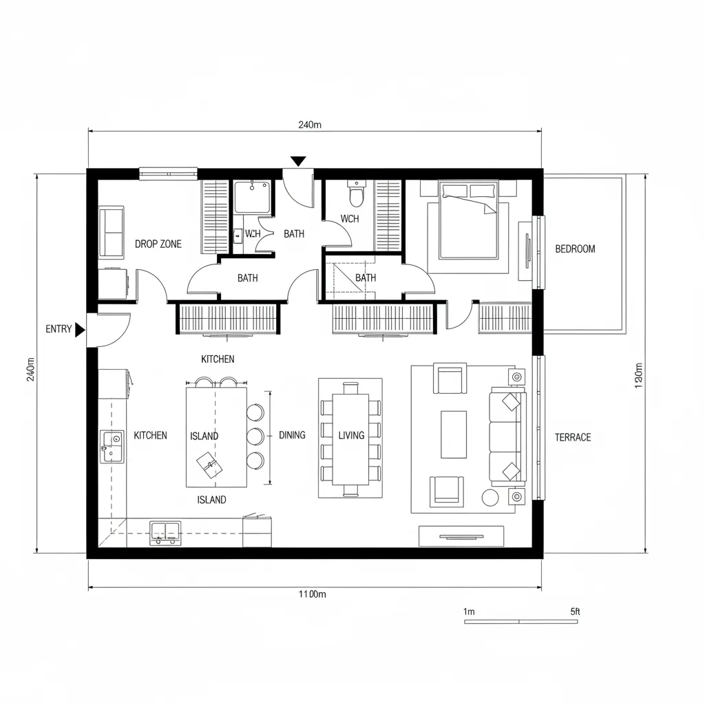
Open Concept House Plan, Seen From The Near Future: When a home’s interface becomes bandwidth for daily lifeAtlas ReedDec 04, 2025Table of ContentsIsland Core SpinePerimeter Loop With Quiet NodeSplit Horizon Great RoomFinal TakeawayTable of ContentsIsland Core SpinePerimeter Loop With Quiet NodeSplit Horizon Great RoomFinal TakeawayFree floor plannerEasily turn your PDF floor plans into 3D with AI-generated home layouts.Convert Now – Free & InstantFuture living compresses friction; today’s homes still leak time at door swings and corridor dead zones. AIA data shows smaller footprints trending while quality of flow rises, and I can feel that pressure shaping every open concept house plan. The future is already pressing in, and I’m designing as if tomorrow’s routines are compiling tonight. spatial reasoning toolkitIsland Core SpineDesign Logic:Kitchen island as processor; living and dining thread around it so meal prep, work, and social loops run in parallel—exactly what hybrid schedules demand.Flow:Entry → drop zone → island → living edge → terrace; a single pass handles guests, groceries, and weekday sprints without backtracking.Sightlines:Diagonal read from front door to garden keeps depth; island height frames screens and hides mess like a subtle UI layer.Storage:Toe‑kick drawers, ceiling rail pantry, and bench cavities act as caches—fast access up front, archive along the perimeter.Furniture Fit:9–10 ft island, 36 in aisles, a 9x12 rug as living API; pieces float, never block the spine.Verdict:This core keeps signal high and noise low; five years out, it still flexes from kid homework to midnight builds.save pinPerimeter Loop With Quiet NodeDesign Logic:Open ring for shared functions, with a hush node off the loop—because future work isn’t elsewhere, it’s adjacent and controllable.Flow:Mudroom → kitchen wall run → dining bay → lounge arc → focus nook; a circular routine with an intentional pause point.Sightlines:Glazed corner aligns with fireplace axis; the nook skews 15° to reduce screen glare and visual noise from the loop.Storage:Ring shelving as a content bus; pocket sliders conceal a printer well and charging manifold, keeping the feed clean.Furniture Fit:72–78 in table parallel to traffic, low profile sofa to maintain lane width; task chair nests under a 24 in ledge.Verdict:The loop keeps continuity; the node gives relief. It’s a breathable system for families whose calendars never stop streaming.save pinSplit Horizon Great RoomDesign Logic:Ceiling and light splits define zones without walls—future homes need gradients, not borders, to handle multi‑modal days.Flow:Threshold → low canopy cook zone → step-up lounge → high clerestory dining; elevation and lumen cues guide behavior like mode switching.Sightlines:Eye skims under the canopy to a tall window band; TV aligns off-axis to respect the garden as primary signal.Storage:Plinth benches swallow seasonal gear; ridge cabinets act as long-term cache, indexed by task, not room name.Furniture Fit:Modular 2.5‑seat segments, a 40 in round table to keep the horizon readable, counter stools scaled to 26 in seat height.Verdict:The room edits itself by light and level; five winters in, it will still feel clear, adaptable, and latency-free.save pinFinal TakeawayAn open concept house plan isn’t emptiness; it’s a disciplined interface where flow, caches, and API‑tight furniture create bandwidth for real life. Variants like great room layouts, island-centered plans, and perimeter loops are just dialects of the same language. The next decade rewards intention over square footage, and these open layouts are the early code of that future. In my experience, the smartest homes won’t be larger—only more intentional.Convert Now – Free & InstantPlease check with customer service before testing new feature.Free floor plannerEasily turn your PDF floor plans into 3D with AI-generated home layouts.Convert Now – Free & Instant