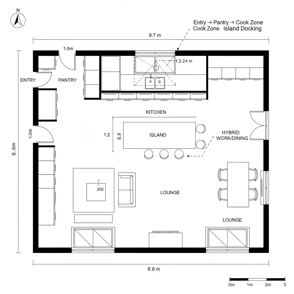
Open Concept Kitchen–Living Room Plan, Rendered for Tomorrow: A designer’s viewpoint on open living as the interface for near‑future lifeAtlas K. MerrinDec 03, 2025Table of ContentsLinear Spine: Island as Command BusCross Axis: Hearth plus Table NodeRing Circuit: Perimeter Prep, Center Soft ZoneFinal TakeawayTable of ContentsLinear Spine Island as Command BusCross Axis Hearth plus Table NodeRing Circuit Perimeter Prep, Center Soft ZoneFinal TakeawayFree floor plannerEasily turn your PDF floor plans into 3D with AI-generated home layouts.Convert Now – Free & InstantThe future keeps compressing into the present, and open living is where I feel the clock speeding up. Americans are already voting with walls: Houzz notes growing demand for kitchen‑living continuity, while Zillow data shows hybrid work reshaping daily zones. When clients ask for an open concept kitchen living room plan, I read it as an early protocol for how families will process time, attention, and bandwidth. I keep a spatial reasoning toolkit in my head: one layer for flow, one for sightlines, one for acoustic latency.Linear Spine: Island as Command BusDesign Logic:The kitchen runs galley‑style along one wall; an island becomes the shared bus, synchronizing prep, dining, and laptop hours. Future routines need multi‑threading; a single spine reduces interrupts.Flow:Entry → pantry node → cook zone → island docking → lounge. Fewer turns, more compile speed for daily tasks.Sightlines:From door to window, a clear horizon; cook sees door, kids, and screen—priority layers stack without clutter.Storage:Tall pantry columns + toe‑kick drawers act as cache; quick‑access near island, cold storage deeper in memory.Furniture Fit:36" aisle minimum, 42" on cook side; 9–10' island with two‑depth seating aligns with hybrid meals and meetings.Verdict:Five years out, this reads as the default backbone for compact households that stream, cook, and work in one script.save pinCross Axis: Hearth plus Table NodeDesign Logic:Two axes intersect: fireplace/media wall meets island; social heat and practical heat negotiate bandwidth. This stabilizes attention in open fields.Flow:Entry → coat cache → island → hearth → balcony/yard; loops allow parallel tasks without collisions.Sightlines:Diagonal sight to outdoors; peripheral view keeps kids and timers within UI, center focus anchors at hearth.Storage:Bench base drawers by hearth for games/throws; vertical appliance garage near island like a quick buffer.Furniture Fit:Sofa floats at 10–11' from media wall; 30x72" table parallel to island keeps latency low between serve and seat.Verdict:This pattern anticipates seasonal shifts, toggling from co‑working days to winter cinema nights with minimal recompile.save pinRing Circuit: Perimeter Prep, Center Soft ZoneDesign Logic:Cabinetry wraps the perimeter; the center remains a soft, cable‑free zone. Tomorrow’s mobility devices and toddlers both need clean lanes.Flow:Mud drop → fridge → sink → range in clockwise order; living circle absorbs overflow during peak load hours.Sightlines:360° scanning from sofa: door, cooktop, play zone, terrace—no blind packets.Storage:Full‑height wall units as long‑term archive; island drawers as L1 cache; a slim broom niche for maintenance ops.Furniture Fit:Modular 2‑piece sofa (34" depth each) reconfigures for focus or crowd; round 48–54" table avoids sharp collision points.Verdict:As devices shrink and routines stretch, this ring behaves like resilient infrastructure—controlled edges, flexible core.save pinFinal TakeawayAn open concept kitchen living room plan is less about knocking down walls and more about editing latency between cooking, working, and gathering. Variations like open kitchen layouts and combined living‑dining designs act as firmware for domestic life, with long‑tail patterns like island‑centered family workflow emerging. The smartest open living I design privileges sightlines, cache discipline, and precise API‑level furniture decisions. In my experience, small spatial choices here quietly rewrite how a home feels—and how a day compiles.Convert Now – Free & InstantPlease check with customer service before testing new feature.Free floor plannerEasily turn your PDF floor plans into 3D with AI-generated home layouts.Convert Now – Free & Instant