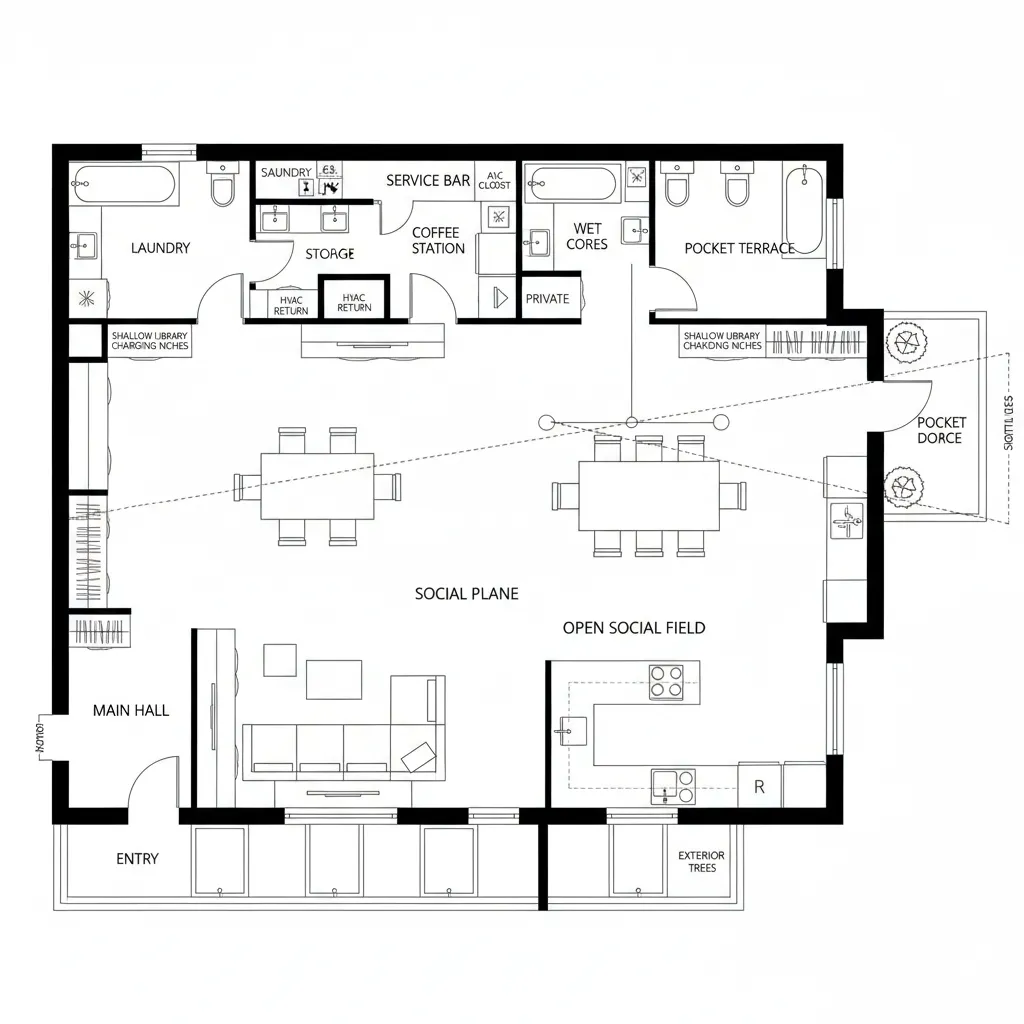
Open Plan House Layout, Rendered for the Near Future: Space as interface, flow as code—how open plans compile tomorrow’s living patternsAtlas R. Mendel, AIADec 04, 2025Table of ContentsThreshold Spine: Kitchen-Core with Split Social FieldsAcoustic Gradient: Soft Partitions, Hard DisciplinePerimeter Intelligence: Edge-Loaded Services, Daylight UnlockedFinal TakeawayTable of ContentsThreshold Spine Kitchen-Core with Split Social FieldsAcoustic Gradient Soft Partitions, Hard DisciplinePerimeter Intelligence Edge-Loaded Services, Daylight UnlockedFinal TakeawayFree floor plannerEasily turn your PDF floor plans into 3D with AI-generated home layouts.Convert Now – Free & InstantThe future presses in: remote work dissolves rooms, family rhythms blur, and privacy needs surge while square footage stays stubborn. According to Zillow, open layouts continue to attract buyers even as hybrid routines demand smarter zoning. In that tension, I read the open plan house layout like early code for tomorrow’s life—one file, many processes—stitched by a spatial reasoning toolkit.I see clients choosing openness for daylight and social bandwidth, but the real work is compiling edges, buffers, and micro-nodes so interaction and solitude can run in parallel without lag. The plan must behave like software: permissions, layers, and graceful fallbacks.Threshold Spine: Kitchen-Core with Split Social FieldsDesign Logic: A central kitchen island becomes the processor, splitting lounge and dining into parallel threads; future routines need simultaneous cooking, calls, homework—without packet loss.Flow: Entry → mud strip → island hub → dining node → lounge bay → terrace; a looped path that prevents collisions and keeps latency low.Sightlines: From island to fireplace and garden edge, with oblique views to the entry—hierarchy reads primary (family core) to secondary (arrival) like UI layers.Storage: Full-height pantry wall + bench drawers as cache; concealed recycling slots and device docks keep throughput clean.Furniture Fit: 10–12 ft island, 36 in clearances, 30x72 in dining, modular sofa blocks; dimensions act as API limits for smooth co-working and meal prep.Verdict: This topology scales from toddler chaos to teen study to late-night hosting, a stable kernel for five-year horizon changes.save pinAcoustic Gradient: Soft Partitions, Hard DisciplineDesign Logic: Open does not mean loud; future hybrid work needs acoustic zoning via materials, not walls—felt baffles, ribbed ceilings, and drapery stacks form a gradient.Flow: Work alcove tucked behind bookshelf fin → living pad → dining rail → garden edge; movement reads like foreground to background tasks.Sightlines: Framed diagonals across fins give presence without exposure; the eye hops nodes like breadcrumbs in a clean UI.Storage: Spine cabinetry with 24 in deep “inbox/outbox” bays; mobile carts as temporary cache for project mode, then docked.Furniture Fit: 60x30 in desk slab, lounge at 36 in circulation halo, 8x10 rug anchors to prevent visual sprawl; fittings negotiate bandwidth.Verdict: Quiet by design, this plan lets meetings and meals coexist; the soundscape becomes policy, not an accident.save pinPerimeter Intelligence: Edge-Loaded Services, Daylight UnlockedDesign Logic: Wet cores and storage ride the dark wall; perimeter windows feed the active field—future demand for wellness and energy sense favors daylight-first code.Flow: Service bar (laundry/coffee/AV) → main hall → open social plane → pocket terrace; a service-to-social pipeline with minimal backtracking.Sightlines: Long axis sight to exterior trees as priority layer; secondary reads are task zones tucked at 90 degrees.Storage: Edge wall integrates HVAC return, shallow library, and charging niches—like a tidy server rack hosting life’s processes.Furniture Fit: Low profiles at glazing (≤28 in) to preserve luminance; dining centered under linear pendant for spatial anchoring; sectional limited to 36 in depth.Verdict: Light governs the map; by loading edges with service, the middle breathes now and adapts gracefully to future devices and rituals.save pinFinal TakeawayAn open plan house layout isn’t emptiness—it’s governance: edges, nodes, and bandwidth negotiated in plain sight. With open concept interiors and flexible zoning strategies, the home becomes a living interface that compiles work, rest, and community without crashing. The next five years reward clear flows, cache-rich storage, and API-precise furniture tolerances; in my experience, the smartest homes of the future won’t be larger—only more intentional.Convert Now – Free & InstantPlease check with customer service before testing new feature.Free floor plannerEasily turn your PDF floor plans into 3D with AI-generated home layouts.Convert Now – Free & Instant