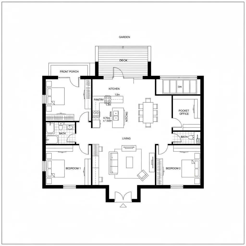
Rectangular House, Future Interface: A designer’s lens on rectangular house floor plan logic for the next five yearsAtlas Mercer, AIADec 03, 2025Table of ContentsFront-to-Back Axis: Porch, Core, GardenSide-Load Spine with Split ZonesCenter Hearth, Perimeter Rooms## Final TakeawayTable of ContentsFront-to-Back Axis Porch, Core, GardenSide-Load Spine with Split ZonesCenter Hearth, Perimeter Rooms## Final TakeawayFree floor plannerEasily turn your PDF floor plans into 3D with AI-generated home layouts.Convert Now – Free & InstantThe future is compressing into today’s rooms, and the old compromises are showing seams. AIA tracks that smaller footprints are trending while function expectations rise; meanwhile, Zillow data echoes preference for flexible zones. In that pressure, a rectangular house floor plan becomes a clean compile target—simple geometry, complex living. spatial reasoning toolkit feels almost necessary when lifestyle updates ship faster than walls can move.Front-to-Back Axis: Porch, Core, GardenDesign Logic:Align entry to garden on the long axis so air, light, and routines run like a stable protocol—front social, middle service, rear retreat; it anticipates climate swings and hybrid work rhythms.Flow:Vestibule → open living/kitchen hub → pocket office bay → dining → sliders to deck; the process loads public to private without collisions.Sightlines:Door-to-garden sight holds a clean UI; vertical glazing becomes headers, islands become subheads, private doors mute like secondary tabs.Storage:Perimeter pantry + bench wall as cache; under-stair pull-outs buffer seasonal overflow; linen towers anchor the middle like L2 memory.Furniture Fit:13–14 ft living width accepts a 96-inch sofa + 36-inch circulation lanes; dining table 36x72 aligns to traffic API, island 30x72 keeps latency low.Verdict:This axis reads like a predictable clock speed; in five years, it still supports coworking mornings and backyard-reset evenings.save pinSide-Load Spine with Split ZonesDesign Logic:A continuous services spine (plumbing, HVAC, laundry) along one long wall concentrates infrastructure—future-friendly for upgrades and modular add-ons.Flow:Side entry → mud/laundry → kitchen node → living bay → bedroom stack; guests skim the surface while residents access deeper functions.Sightlines:Transoms and interior windows ladder light across; spine doors sit flush, so the main field reads as one pane of glass.Storage:48-inch-deep utility wall with peg panels and vertical bins acts like a versioned repository; attic hatch over the spine for bulk archives.Furniture Fit:Built-in banquette 18-inch seat, 30-inch table keeps aisle clear; bedroom modules fit queen plus 30-inch edge clearance, no overdraw.Verdict:The concentrated backbone turns maintenance into software updates; future retrofits won’t fracture the plan.save pinCenter Hearth, Perimeter RoomsDesign Logic:A square-ish core—stove, island, and shared table—becomes the scheduler; perimeter rooms subscribe as apps (sleep, study, lounge).Flow:Ring circulation loops like a bus route: entry → core → room → core; short hops reduce context switching across the day.Sightlines:Core as a luminous node; doorways frame perimeter scenes as cards, never leaking private data to visitors.Storage:Corner towers at the ring intercept clutter; a concealed core closet holds vac, printer, charging—your always-on cache.Furniture Fit:Core island 36x84 with 42-inch clearances; lounge accepts a 9x12 rug grid; kids’ room fits twin-to-full swap without refactoring.Verdict:As family roles refactor, the center holds; five years out, meals, making, and micro-meetings still orbit this hearth.save pin## Final TakeawayA rectangular house floor plan is less about straight lines and more about straight logic: flows that compile, storage that caches, furniture that respects the API of daily life. Across variants—front-to-back axis, side-load spine, center-hearth ring—the geometry becomes a durable interface for evolving habits, from hybrid work to quiet recovery. In my experience, the smartest homes of the near future won’t expand so much as optimize bandwidth, and what I keep seeing in my projects is how a clear rectangle lets life boot fast and run stable.Convert Now – Free & InstantPlease check with customer service before testing new feature.Free floor plannerEasily turn your PDF floor plans into 3D with AI-generated home layouts.Convert Now – Free & Instant