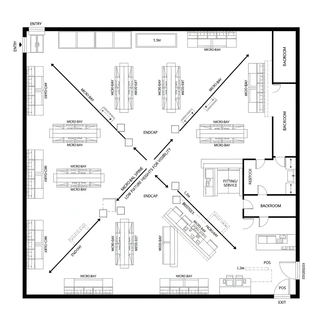
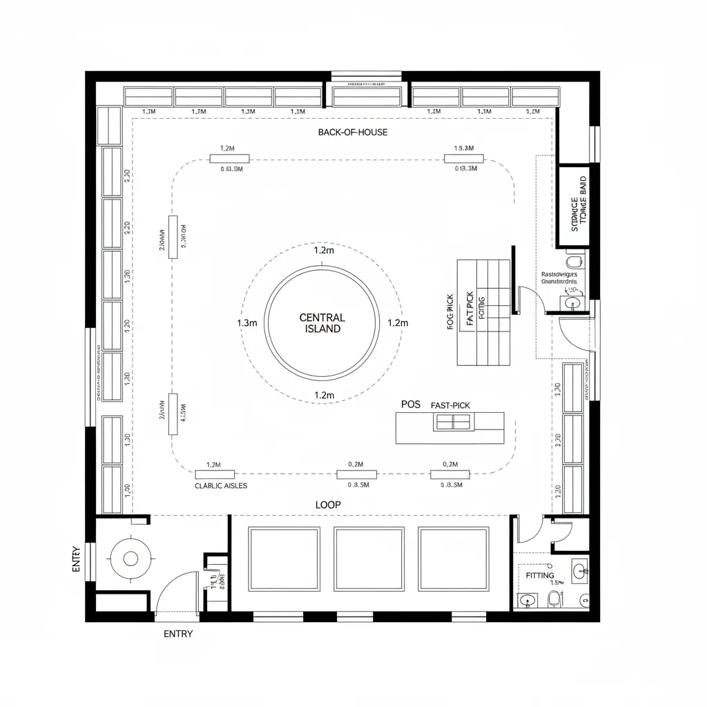
Retail Floor Plan as Future Interface: Designing a store like a real-time system for attention, flow, and conversionMiles in Plan ViewDec 03, 2025Table of ContentsLooped Perimeter Runway + Central IslandDiagonal Spine with Micro-BaysFront Porch Market + Deep LabFinal TakeawayTable of ContentsLooped Perimeter Runway + Central IslandDiagonal Spine with Micro-BaysFront Porch Market + Deep LabFinal TakeawayFree floor plannerEasily turn your PDF floor plans into 3D with AI-generated home layouts.Convert Now – Free & InstantThe future of retail won’t be bigger, it will be sharper—every square foot acting like an interface that mediates attention, time, and trust. Today’s pain point is friction: shoppers bounce when paths jam, signals blur, and storage steals oxygen from experience. AIA retail insights and NAHB small-footprint trends echo what I see: smarter footprints outperform sprawling footprints, while Zillow and Houzz data show consumers reward clarity and comfort. I sketch each retail store floor plan as a near-future protocol, compiled from real human behaviors and evolving expectations. Here’s my spatial reasoning toolkit—embedded in everyday plan geometry, already half a step into tomorrow.Looped Perimeter Runway + Central IslandDesign Logic: A continuous perimeter loop keeps circulation intuitive, with a central island acting like a processor hub. Future frictionless retail favors self-guided browsing and short dwell bursts over dead-ends.Flow: Entry → quick orientation node → clockwise loop → central hub for highlights → fitting/checkout near egress; the code path minimizes backtracking.Sightlines: Low perimeter fixtures keep sight like a layered UI: wall wash lighting frames product; island becomes the hero card on load.Storage: Back-of-house as a slim cache band behind perimeter walls; fast-pick bins adjacent to POS to reduce latency.Furniture Fit: Gondolas at 36–42 in height, 42–48 in aisle bandwidth; island at 60–72 in diameter for clear orbiting.Verdict: This geometry scales from boutique to pop-up, reading as a calm, closed loop that futureproofs traffic surges without code collisions.save pinDiagonal Spine with Micro-BaysDesign Logic: A diagonal spine cuts across the rectangle, increasing perceived depth and curiosity pings. Future browsing behaves like swiping—angled reveals make micro-decisions effortless.Flow: Entry → diagonal attractor → micro-bays branching like subroutines → fitting/service node → return to spine and exit.Sightlines: Oblique views layer products in parallax; header graphics act like breadcrumb UI, always one glance ahead.Storage: Each micro-bay has under-shelf drawers as local cache, with a compact backroom aligned on the long edge for bulk stock.Furniture Fit: Bays at 6–8 ft modules; spine at 5–6 ft clear to carry bi-directional traffic; endcaps as content cards at every 12–16 ft.Verdict: For assortment-heavy brands, this pattern increases dwell without clogging bandwidth, future-ready for seasonal re-skins.save pinFront Porch Market + Deep LabDesign Logic: The front third is social and fast—like a low-latency API—while the back third is service, fittings, and fulfillment. Hybrid retail needs front-stage immediacy with backstage power.Flow: Threshold → porous “porch” with touch-and-go tables → mid-store demo bar → deep lab (fitting/repair/pickup) → optimized checkout near exit.Sightlines: From street to porch to lab window, transparency narrates trust; vertical lighting stacks guide the eye like status indicators.Storage: High-density racking in the lab; cross-dock lane for BOPIS keeps online and in-store on one clock cycle.Furniture Fit: Porch tables at 30 in with 36–42 in clear rings; lab counters at 36–38 in height; queue defined by 42 in rails for clean packet flow.Verdict: Ideal for omnichannel brands—street-level charisma paired with backstage efficiency that feels inevitable five years out.Final TakeawayA retail store floor plan is not décor; it is firmware for behavior. Whether it’s a looped runway, a diagonal spine, or a porch-and-lab hybrid, the plan is a living interface that directs attention, dwell time, and conversion. Long-tail needs like buy-online-pickup and micro-fulfillment are already rewriting the geometry. In my experience, the most resilient shops compile future habits into today’s square footage and keep the bandwidth clear for what’s next.Convert Now – Free & InstantPlease check with customer service before testing new feature.Free floor plannerEasily turn your PDF floor plans into 3D with AI-generated home layouts.Convert Now – Free & Instant