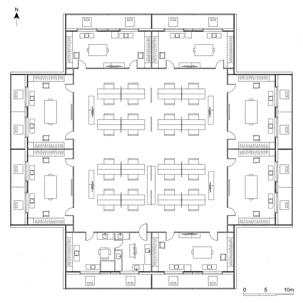
Seasonal Office Floor Plan, Reimagined: Translating a first-season office blueprint into a future-ready interface for work and lifeAvery LumenDec 10, 2025Table of ContentsOpen Core with Quiet PeripheralNeighborhoods with Project SprintsHybrid Hub with Asynchronous SpineFinal TakeawayTable of ContentsOpen Core with Quiet PeripheralNeighborhoods with Project SprintsHybrid Hub with Asynchronous SpineFinal TakeawayFree floor plannerEasily turn your PDF floor plans into 3D with AI-generated home layouts.Convert Now – Free & InstantFuture lifestyles demand offices that flex like software, while current pain points—noise, shallow focus, and rigid partitions—still drag us back. Industry signals echo this shift: AIA firm surveys show adaptive layouts and wellness-driven planning climbing in priority. I’m mapping the office floor plan season 1 as a prototype of how work-states compile, because the future is already pressing in and I’ve learned to read its early code. spatial reasoning toolkit sits beneath every square foot.Open Core with Quiet PeripheralDesign Logic:Central collaboration framed by a ring of acoustic shells; the flock meets in the middle, focus nests at the edges—future hybrid rhythms need both.Flow:Entry → resource hub → bull pen → perimeter quiet pods → meeting spine; a clear execution path that throttles stimuli like bandwidth controls.Sightlines:Transparency to the core, opacity to deep work; layered views act like UI tiers—global status visible, sensitive work buffered.Storage:Perimeter millwork as cache; personal lockers + shared supply bays prevent data (paper/tools) from polluting the RAM of the central floor.Furniture Fit:Modular benching at 30"–36" depths; pods at 5'x7'; tables on mobile bases—APIs that let teams refactor without rewriting walls.Verdict:This keeps day-one energy while protecting attention; in five years it still flexes for mixed presence and variable team sizes.save pinNeighborhoods with Project SprintsDesign Logic:Clusters around projects, not departments; future cycles move fast, so layout compiles teams, then dissolves cleanly.Flow:Arrival node → assignment board → project bays → war room → decompress lounge—an iterative loop that mirrors sprint cadence.Sightlines:Short, readable corridors reveal milestones; glass corners act as notification badges, while deep corners stay quiet for problem-solving.Storage:Rolling archives and labeled carts serve as version control; weekly purge protocols keep cache lean and retrievable.Furniture Fit:Standing tables at 42" with plug rails; soft seating islands; whiteboard rails as plug-ins—precision that matches agile rituals.Verdict:Teams move like code branches—merge, fork, ship; five years on, this resists entropy and sustains momentum.save pinHybrid Hub with Asynchronous SpineDesign Logic:Anchor a broadcast-ready hub, then run an async spine of phone booths, edit bays, and micro-libraries; remote and local sync without friction.Flow:Hub → capture studio → content edit → quiet spine → resource closet; a latency-aware route that respects different work clocks.Sightlines:Clear hub vistas signal pulse; the spine dims like night mode to protect deep concentration and private calls.Storage:Media racks, labeled bins, cloud lockers mirrored with physical shelves—redundant cache to prevent lost packets of work.Furniture Fit:Booths at 3'x4', sit-stand desks with 48" tops, swivel task chairs with narrow bases; tight tolerances enable dense yet breathable packing.Verdict:This layout anticipates asynchronous teams; in five years, it still reads comfortably for hybrid rituals and evolving tools.save pinFinal TakeawayWhen I study the office floor plan season 1 as a living blueprint, I see a future interface where collaboration and focus are compiled without conflict. Variants like open cores, project neighborhoods, and hybrid spines prove that the smartest workspaces won’t be bigger—just more intentional. The long-tail lesson is that plan logic is the operating system for culture, and furniture is the API that enforces it. In my experience, small spatial decisions quietly rewrite how teams live their work.Convert Now – Free & InstantPlease check with customer service before testing new feature.Free floor plannerEasily turn your PDF floor plans into 3D with AI-generated home layouts.Convert Now – Free & Instant