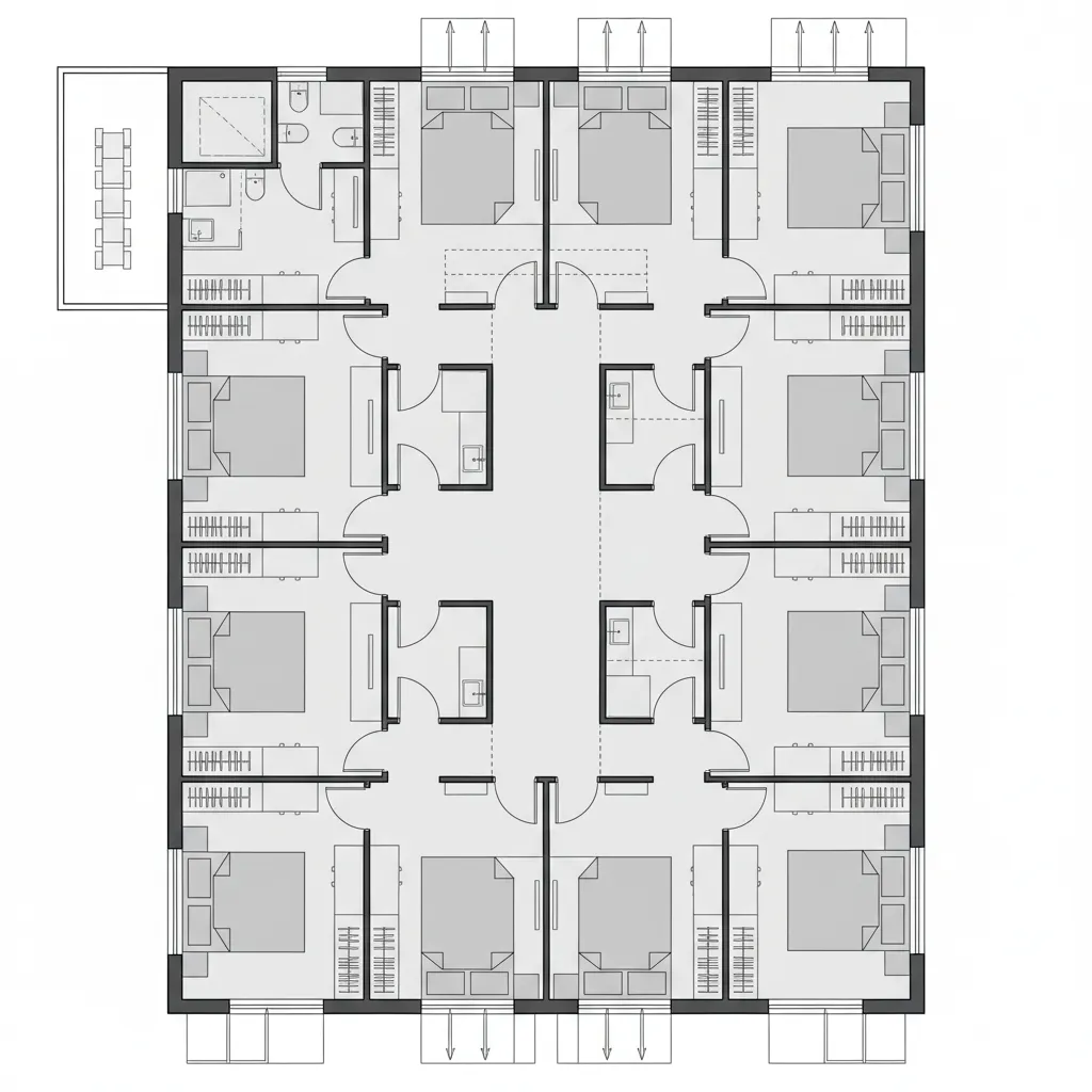
Shared Accommodation Floor Plan, Rendered for the Near Future: How co-living layouts become the interface for bandwidth-friendly, friction-light livesAda North, RADec 04, 2025Table of ContentsSplit-Core Corridor + Pocket StudiosRing of Rooms + Commons as ProcessorDuplex Stack with Time-Zoned ZonesFinal TakeawayTable of ContentsSplit-Core Corridor + Pocket StudiosRing of Rooms + Commons as ProcessorDuplex Stack with Time-Zoned ZonesFinal TakeawayFree floor plannerEasily turn your PDF floor plans into 3D with AI-generated home layouts.Convert Now – Free & InstantThe near future compresses more lives into fewer rooms while demanding more autonomy per person—privacy, bandwidth, and rituals that don’t collide. Industry data keeps reminding me: Zillow shows rising demand for flexible bedrooms and WFH corners even in shared rentals. So when I draw a shared accommodation floor plan, I’m really writing the early code of tomorrow’s co-living—low-latency routines, respectful silences. spatial reasoning toolkitSplit-Core Corridor + Pocket StudiosDesign Logic:Central corridor acts like a bus line; each room is a node with micro-kitchenette and ensuite, future-proofing for hybrid work and staggered sleep cycles.Flow:Entry → shared gear wall → corridor → private pods → terminal at communal lounge; minimal cross-traffic, high predictability.Sightlines:Opaque doors along the spine; angled clerestories admit light without exposing lives—signal without data leak.Storage:Corridor ceiling racks as shared cache; in-room vertical bays hold seasonal overflow, labeled like version control.Furniture Fit:Full-size bed in a 9'–10' width, 24" depth kitchenette, 30" work desk—APIs tight but sufficient for daily scripts.Verdict:In five years, this reads stable under churn—new roommates slot in without refactoring the whole system.save pinRing of Rooms + Commons as ProcessorDesign Logic:Rooms orbit a generous kitchen-living core; the commons is the processor where heat, sound, and conversation are meant to live.Flow:Porch/entry → mud node → kitchen island → seating bay → radial doors to rooms; guests and groceries never trespass sleep zones.Sightlines:From island to all thresholds; privacy is kept by offset door angles and half-height screens as UI layers.Storage:Pantry wall with bin taxonomy, shared appliance garage; per-room lockable cubbies—clean cache segregation.Furniture Fit:9–10' island as collaboration surface, modular sofa blocks, dining for 6 that stacks to 2—interfaces adapt on command.Verdict:The core absorbs peak demand—dinners, Zooms, storms—so private rings stay cool, like background threads.save pinDuplex Stack with Time-Zoned ZonesDesign Logic:Two levels partition lifestyles: night-shift suites below, day-shift suites above; circulation divides noise signatures.Flow:Street entry → split stair → quiet lower hall → garden nook; upper stair → bright gallery → terrace; parallel processes, no collisions.Sightlines:Long views upstairs for cognition; downstairs, compressed vistas and acoustic baffles for rest—info hierarchy by need state.Storage:Under-stair deep cache, bike vertical rails at entry, laundry wall with shared consumables tracked like inventory.Furniture Fit:Queen beds fit 10' x 11', wall desks fold to 12"; dining as leafable 4–8; terrace chairs stow flat—API constraints honored.Verdict:This stack survives shifting leases and seasons; resilience lives in the staggered clocks of its plan.save pinFinal TakeawayA shared accommodation floor plan isn’t a compromise; it’s an operating system that routes privacy and community with intent. Co-living layouts, roommate-friendly zoning, and flexible bedroom suites make small footprints feel high-bandwidth. The best shared apartments I design act like interfaces: predictable, legible, and generous at the edges. In my experience, the smartest shared homes of the near future won’t be bigger—just more precisely coded.Convert Now – Free & InstantPlease check with customer service before testing new feature.Free floor plannerEasily turn your PDF floor plans into 3D with AI-generated home layouts.Convert Now – Free & Instant