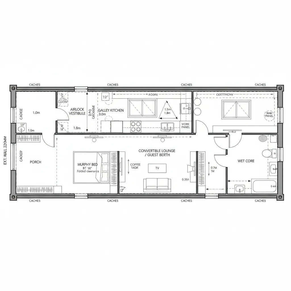
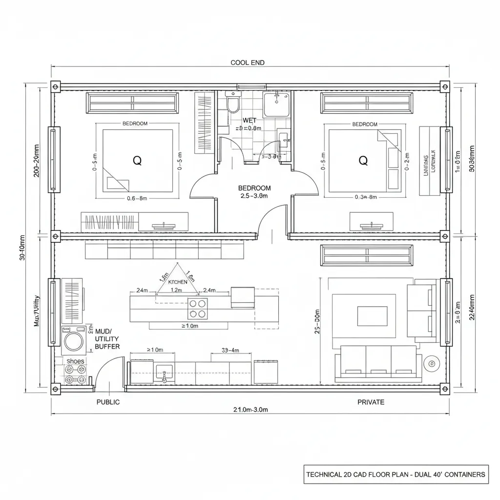
Shipping Container House Floor Plan: Interface-thinking for compact, future-ready living inside steel modulesAtlas P. MeridianDec 04, 2025Table of ContentsSide-by-Side Duo (2×40' modules)Linear Single (1×40' module)Offset T-Form (2×40' modules with crosspiece)Final TakeawayTable of ContentsSide-by-Side Duo (2×40' modules)Linear Single (1×40' module)Offset T-Form (2×40' modules with crosspiece)Final TakeawayFree floor plannerEasily turn your PDF floor plans into 3D with AI-generated home layouts.Convert Now – Free & InstantThe future isn’t distant; it’s compressing into our square footage and asking for better interfaces. Affordability and flexibility are colliding with climate anxiety and zoning friction, while data from NAHB shows smaller homes are rising as buyers trade size for intention. In that squeeze, a spatial reasoning toolkit becomes survival gear—and a shipping container house floor plan reads like early code for a leaner life.Side-by-Side Duo (2×40' modules)Design Logic:Two 40-foot modules paired laterally create a 14–16' interior width, a bandwidth sweet spot for daylight and zoning realities; the plan stages public to private like a clean commit history.Flow:Entry → mud/utility buffer → kitchen spine → living bay → sliding pocket to bedroom → bath at the cool end; zero dead loops, only forward execution.Sightlines:Longitudinal views run rail-straight; cross-cuts align windows for a luminous “bus bar” effect, UI layers from social foreground to quiet background.Storage:Toe-kick drawers, 24"-deep wall runs, bed platforms with lift-up lids; a cache that prefetches daily objects and minimizes I/O clutter.Furniture Fit:Modular sofa under 34" depth, 30" walkway clearances, a 72" table that docks to the island—APIs that keep the steel shell responsive.Verdict:Five-year outlook: adaptable zoning for WFH, ventilation upgrades, and easy insulation retrofits keep this duo agile under changing codes.save pinLinear Single (1×40' module)Design Logic:A single container becomes a serialized script: micro-entries, all-in-one galley, convertible lounge, sleeping nook—proof that constraint is a design compiler.Flow:Porch → airlock vestibule → galley with fold-down work panel → lounge/guest berth → wet core at the thermal anchor; branchless, latency low.Sightlines:End-to-end alignment amplifies perceived depth; clerestories act like status LEDs, broadcasting circadian cues along the axis.Storage:Ceiling-hung rails, 12" pantry columns, bath niches; caches sit at the edges to keep the core bandwidth clear.Furniture Fit:Murphy bed within 81" clearance, 18" deep media ledge, stools that nest; every millimeter negotiates with doors and gaskets.Verdict:For single dwellers or ADU use, this stays future-proof via modular add-ons—solar awnings, bolt-on decks, and plug-in battery nodes.save pinOffset T-Form (2×40' modules with crosspiece)Design Logic:An offset T unlocks zoning between social trunk and quiet crossbar; the junction node houses services, making upgrades hot-swappable.Flow:Approach along the stem → kitchen hub at the node → branch to living or bedroom wing; circulation reads like a routing table with low collisions.Sightlines:Diagonal vistas from entry to landscape; the crosspiece frames a double-aspect scene, UI hierarchy: horizon first, task second.Storage:Node-as-buffer: coat, laundry, mechanical wall; wings get built-in wardrobes and bench bays—distributed cache with predictable retrieval.Furniture Fit:L-shaped sectional fits the stem, 36" dine path around a 60" round, wardrobes at 24" clear; APIs stable even when guests spike traffic.Verdict:This form anticipates family scaling—add a nursery pod or studio wing without breaking the backbone services.save pinFinal TakeawayA shipping container house floor plan is less a box and more a protocol, compressing function without throttling delight. Variants like modular container homes and micro-home layouts show how precision, insulation strategy, and sightline choreography can outperform raw square footage. In my experience, the next wave of compact housing will optimize interfaces—flow, storage, and furniture APIs—long before it chases size, and what I keep seeing in my projects is that small spatial choices quietly rewrite daily life.Convert Now – Free & InstantPlease check with customer service before testing new feature.Free floor plannerEasily turn your PDF floor plans into 3D with AI-generated home layouts.Convert Now – Free & Instant